Promyczek



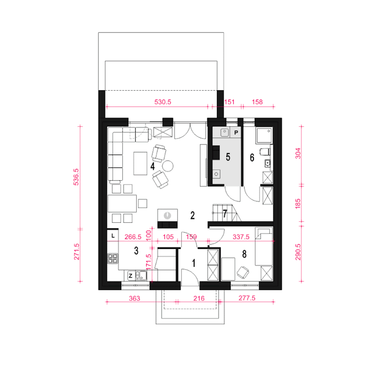
1. Wiatrołap | 3,60 m² |
2. Hol | 3,80 m² |
3. Kuchnia + spiżarnia | 9,90 m² |
4. Salon + jadalnia | 25,90 m² |
5. Kotłownia + pralnia | 4,20 m² |
6. łazienka | 4,70 m² |
7. Korytarz | 3,70 m² |
8. Schody | 4,30 m² |
9. Pokój | 8,50 m² |
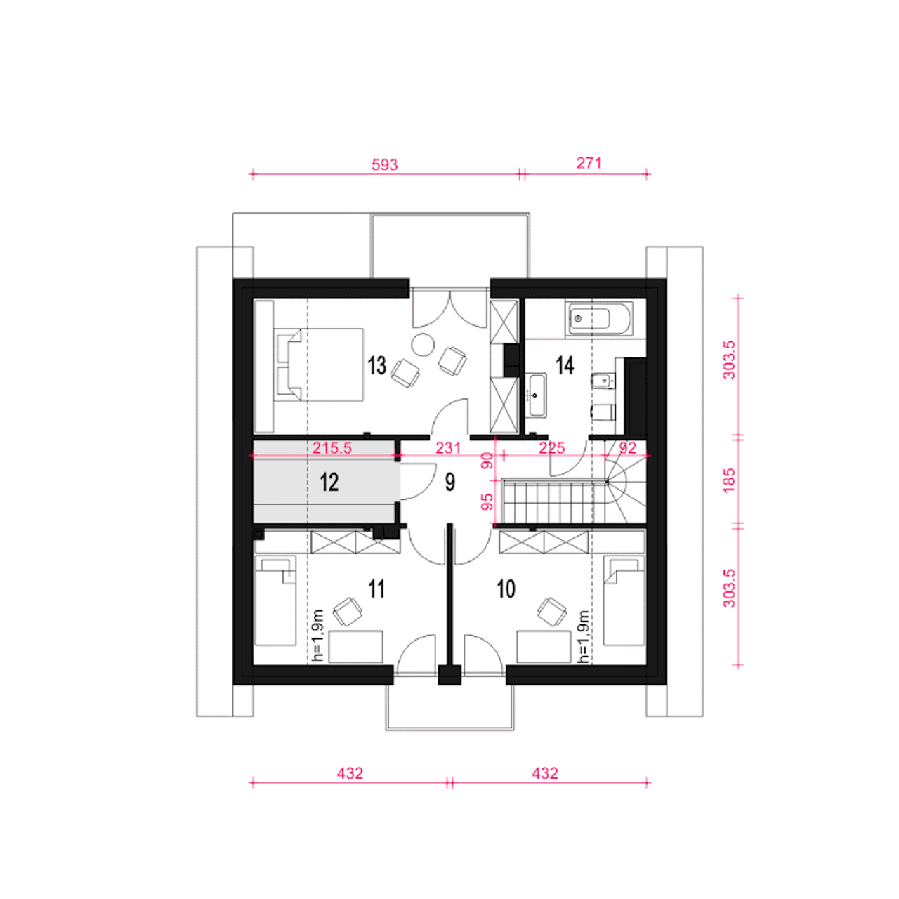
1. Przedpokój | 5,60 (5,60) m² |
2. Sypialnia | 9,70 (12,90) m² |
3. Sypialnia | 9,60 (12,70) m² |
4. Garderoba (strych) | 3,80 (5,70) m² |
5. Sypialnia | 14,30 (17,50) m² |
6. łazienka | 4,90 (7,20) m² |
Wypełnij formularz i otrzymaj rysunki w pdf z dokładnymi wymiarami budynku i pomieszczeń (długość, szerokość, wysokość) dla projektu Dom Dla Ciebie 6 bez garażu B
Ilość pokoi 5 |
Pow. użytkowa 108.4 m² |
Powierzchnia zabudowy 88.1 m² |
Kondygnacje parterowy+poddasze |
Garaż bez garażu |
Technologia murowany |
Szerokość działki 15.7 m |
Obiekt dom |
Typ domu jednorodzinny całoroczny |
Szerokość budynku 9.7 m |
Kominek kominek w projekcie |
Kąt nachylenia dachu 40 ° |
Funkcje dodatkowe z pralnią |
Długość budynku 9.1 m |
Piwnica bez podpiwniczenia |
Kubatura 322 m³ |
Rodzaj dachu dwuspadowy |
Powierzchnia dachu 151 m² |
Długość działki 17.1 m |
Wysokość budynku 8.5 m |
Bryła budynku prosta bryła |
Strop żelbetowy |
Styl budynku nowoczesny |
Liczba łazieniek 2 |
Kalenica prostopadła do drogi |
Koszty budowy tylko z kosztorysem, 200-250 tys. |
Ilość pokoi 5 |
Powierzchnia zabudowy 88.1 m² |
Garaż bez garażu |
Szerokość działki 15.7 m |
Typ domu jednorodzinny całoroczny |
Kominek kominek w projekcie |
Funkcje dodatkowe z pralnią |
Piwnica bez podpiwniczenia |
Rodzaj dachu dwuspadowy |
Długość działki 17.1 m |
Bryła budynku prosta bryła |
Styl budynku nowoczesny |
Kalenica prostopadła do drogi |
Pow. użytkowa 108.4 m² |
Kondygnacje parterowy+poddasze |
Technologia murowany |
Obiekt dom |
Szerokość budynku 9.7 m |
Kąt nachylenia dachu 40 ° |
Długość budynku 9.1 m |
Kubatura 322 m³ |
Powierzchnia dachu 151 m² |
Wysokość budynku 8.5 m |
Strop żelbetowy |
Liczba łazieniek 2 |
Koszty budowy tylko z kosztorysem, 200-250 tys. |
Kupując projekt w technologii murowanej powinieneś budować dom murowany. Zupełna zmiana technologii na szkieletową wymaga przeprojektowania całego budynku ( zmieniają się obciążenia, fundamenty, konstrukcja dachu). Wydamy zgodę na takie przeprojektowanie jednak wiążę się to z dużymi kosztami. Istnieją firmy wykonawcze, które podejmują się zmiany technologii budowy bezpłatnie przy skorzystaniu z ich usług wykonawczych. Zdarza się, że pracownia architektoniczna przygotowuje warianty konkretnego projektu przewidując także inne technologie. Prosimy o sprawdzenie czy istnieje poszukiwana wersja projektu, w zakładce - warianty projektu.
Zwężenie/poszerzenie budynku* to nic innego jak zmiana w projekcie. Istnieje możliwość wprowadzenia takich zmian, we własnym zakresie (podczas adaptacji). *zwężenie/poszerzenie budynku nie powinno stanowić problemu w przypadku domów o dachu dwuspadowym jeśli wiąże się to z wydłużeniem/skróceniem kalenicy dachu.
Poznaj praktyczne porady ekspertów, które ułatwią Ci każdy etap budowy i od wyboru wymarzonego domu po jego wykończenie. Zyskaj pewność, że podejmujesz najlepsze decyzje dzięki sprawdzonym wskazówkom od specjalistów z planz.pl
Wycena szacunkowa, w kwotach netto, nie zawiera instalacji.
bezpłatnie (0zł)
przelew zwykły / PayNow
przy odbiorze
3-5 dni roboczych (jeśli projekt nie jest koncepcją)
Wybierz wygodny dla Ciebie czas kontaktu z naszym Doradcą Technicznym.