Dom Dla Ciebie 3 z garażem 2-st. A3



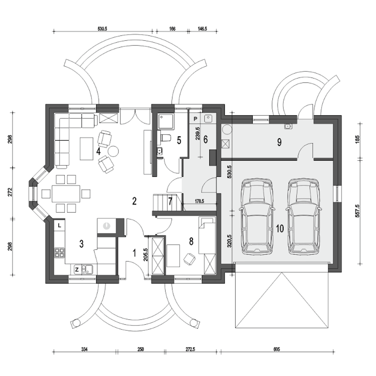
1. Wiatrołap | 5,00 m² |
2. Hol | 7,60 m² |
3. Kuchnia+spiżarnia | 9,00 m² |
4. Salon+jadalnia | 29,20 m² |
5. łazienka | 3,90 m² |
6. Pralnia* | 7,40 m² |
7. Schody | 3,50 m² |
8. Pokój | 9,10 m² |
9. Kotłownia* | 11,00 m² |
10. Garaż* | 33,40 m² |
1. Przedpokój | 6,50 (6,50) m² |
2. Sypialnia | 13,70 (17,20) m² |
3. Sypialnia | 14,00 (17,40) m² |
4. Sypialnia | 13,90 (17,40) m² |
5. łazienka | 7,00 (10,30) m² |
6. Strych* | 24,20 (45,30) m² |
Wypełnij formularz i otrzymaj rysunki w pdf z dokładnymi wymiarami budynku i pomieszczeń (długość, szerokość, wysokość) dla projektu Dom Dla Ciebie 3 z garażem 2-st. A1
Ilość pokoi 5 |
Pow. użytkowa 122.5 m² |
Powierzchnia zabudowy 149.5 m² |
Kondygnacje parterowy+poddasze |
Garaż 2 stanowiska |
Technologia murowany |
Szerokość działki 24.9 m |
Obiekt dom |
Typ domu jednorodzinny całoroczny |
Funkcje dodatkowe z pralnią |
Powierzchnia dachu 259.5 m² |
Rodzaj dachu dwuspadowy |
Wysokość budynku 8.7 m |
Długość działki 17.7 m |
Bryła budynku prosta bryła |
Styl budynku tradycyjny |
Liczba łazieniek 2 |
Kominek kominek w projekcie |
Kąt nachylenia dachu 40 ° |
Strop gęstożebrowy |
Szerokość budynku 16.9 m |
Kotłownia duża kotłownia |
Kalenica równoległa do drogi |
Długość budynku 9.7 m |
Rodzaj garażu przyklejony |
Piwnica bez podpiwniczenia |
Koszty budowy 300-350 tys., tylko z kosztorysem |
Ilość pokoi 5 |
Powierzchnia zabudowy 149.5 m² |
Garaż 2 stanowiska |
Szerokość działki 24.9 m |
Typ domu jednorodzinny całoroczny |
Powierzchnia dachu 259.5 m² |
Wysokość budynku 8.7 m |
Bryła budynku prosta bryła |
Liczba łazieniek 2 |
Kąt nachylenia dachu 40 ° |
Szerokość budynku 16.9 m |
Kalenica równoległa do drogi |
Rodzaj garażu przyklejony |
Koszty budowy 300-350 tys., tylko z kosztorysem |
Pow. użytkowa 122.5 m² |
Kondygnacje parterowy+poddasze |
Technologia murowany |
Obiekt dom |
Funkcje dodatkowe z pralnią |
Rodzaj dachu dwuspadowy |
Długość działki 17.7 m |
Styl budynku tradycyjny |
Kominek kominek w projekcie |
Strop gęstożebrowy |
Kotłownia duża kotłownia |
Długość budynku 9.7 m |
Piwnica bez podpiwniczenia |
Kupując projekt w technologii murowanej powinieneś budować dom murowany. Zupełna zmiana technologii na szkieletową wymaga przeprojektowania całego budynku ( zmieniają się obciążenia, fundamenty, konstrukcja dachu). Wydamy zgodę na takie przeprojektowanie jednak wiążę się to z dużymi kosztami. Istnieją firmy wykonawcze, które podejmują się zmiany technologii budowy bezpłatnie przy skorzystaniu z ich usług wykonawczych. Zdarza się, że pracownia architektoniczna przygotowuje warianty konkretnego projektu przewidując także inne technologie. Prosimy o sprawdzenie czy istnieje poszukiwana wersja projektu, w zakładce - warianty projektu.
Zwężenie/poszerzenie budynku* to nic innego jak zmiana w projekcie. Istnieje możliwość wprowadzenia takich zmian, we własnym zakresie (podczas adaptacji). *zwężenie/poszerzenie budynku nie powinno stanowić problemu w przypadku domów o dachu dwuspadowym jeśli wiąże się to z wydłużeniem/skróceniem kalenicy dachu.
Poznaj praktyczne porady ekspertów, które ułatwią Ci każdy etap budowy i od wyboru wymarzonego domu po jego wykończenie. Zyskaj pewność, że podejmujesz najlepsze decyzje dzięki sprawdzonym wskazówkom od specjalistów z planz.pl
Wycena szacunkowa, w kwotach netto, nie zawiera instalacji.
bezpłatnie (0zł)
przelew zwykły / PayNow
przy odbiorze
3-5 dni roboczych (jeśli projekt nie jest koncepcją)
Wybierz wygodny dla Ciebie czas kontaktu z naszym Doradcą Technicznym.