Dom Dla Ciebie 2 z garażem 1-st. A



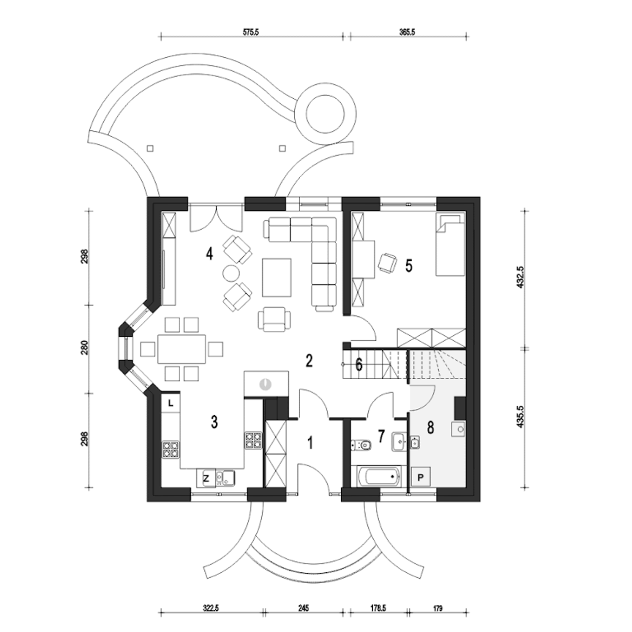
1. Wiatrołap | 5,10 m² |
2. Hol | 6,10 m² |
3. Kuchnia | 9,20 m² |
4. Salon + jadalnia | 32,60 m² |
5. Pokój | 15,20 m² |
6. Schody | 3,50 m² |
7. łazienka | 3,70 m² |
8. Pralnia | 5,80 m² |
9. Kotłownia | 6,60 m² |
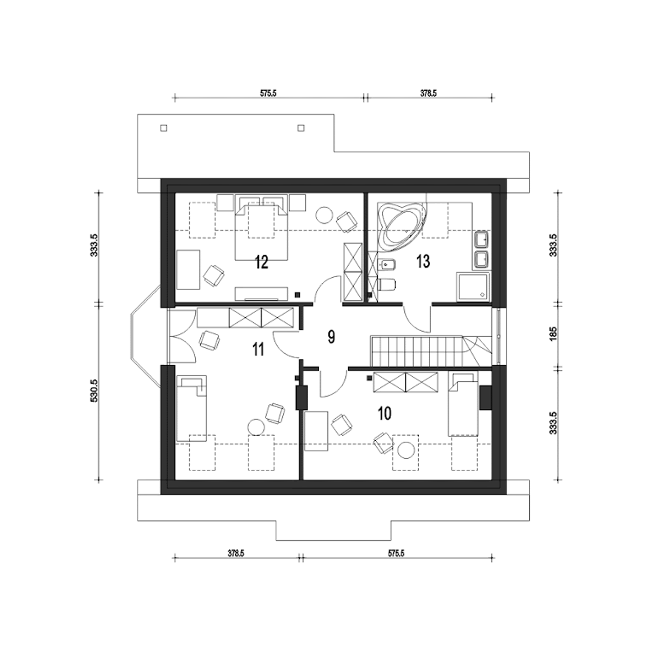
1. Przedpokój | 7,10 (7,10) m² |
2. Sypialnia | 12,70 (18,60) m² |
3. Sypialnia | 15,90 (19,80) m² |
4. Sypialnia | 13,10 (19,00) m² |
5. łazienka | 8,50 (12,40) m² |
Wypełnij formularz i otrzymaj rysunki w pdf z dokładnymi wymiarami budynku i pomieszczeń (długość, szerokość, wysokość) dla projektu Dom Dla Ciebie 2 w2 bez garażu B
Pow. użytkowa 135.6 m² |
Ilość pokoi 5 |
Powierzchnia zabudowy 104.7 m² |
Kondygnacje parterowy+poddasze |
Garaż bez garażu |
Technologia murowany |
Szerokość działki 19.5 m |
Obiekt dom |
Typ domu jednorodzinny całoroczny |
Długość działki 17.7 m |
Wysokość budynku 8.7 m |
Bryła budynku prosta bryła |
Liczba łazieniek 2 |
Styl budynku tradycyjny |
Kominek kominek w projekcie |
Strop gęstożebrowy |
Szerokość budynku 11.5 m |
Kotłownia duża kotłownia |
Kąt nachylenia dachu 40 ° |
Kalenica równoległa do drogi |
Długość budynku 9.7 m |
Piwnica bez podpiwniczenia |
Funkcje dodatkowe z pralnią |
Kubatura 391 m³ |
Rodzaj dachu dwuspadowy |
Powierzchnia dachu 188 m² |
Koszty budowy tylko z kosztorysem, 250-300 tys. |
Pow. użytkowa 135.6 m² |
Powierzchnia zabudowy 104.7 m² |
Garaż bez garażu |
Szerokość działki 19.5 m |
Typ domu jednorodzinny całoroczny |
Wysokość budynku 8.7 m |
Liczba łazieniek 2 |
Kominek kominek w projekcie |
Szerokość budynku 11.5 m |
Kąt nachylenia dachu 40 ° |
Długość budynku 9.7 m |
Funkcje dodatkowe z pralnią |
Rodzaj dachu dwuspadowy |
Koszty budowy tylko z kosztorysem, 250-300 tys. |
Ilość pokoi 5 |
Kondygnacje parterowy+poddasze |
Technologia murowany |
Obiekt dom |
Długość działki 17.7 m |
Bryła budynku prosta bryła |
Styl budynku tradycyjny |
Strop gęstożebrowy |
Kotłownia duża kotłownia |
Kalenica równoległa do drogi |
Piwnica bez podpiwniczenia |
Kubatura 391 m³ |
Powierzchnia dachu 188 m² |
Kupując projekt w technologii murowanej powinieneś budować dom murowany. Zupełna zmiana technologii na szkieletową wymaga przeprojektowania całego budynku ( zmieniają się obciążenia, fundamenty, konstrukcja dachu). Wydamy zgodę na takie przeprojektowanie jednak wiążę się to z dużymi kosztami. Istnieją firmy wykonawcze, które podejmują się zmiany technologii budowy bezpłatnie przy skorzystaniu z ich usług wykonawczych. Zdarza się, że pracownia architektoniczna przygotowuje warianty konkretnego projektu przewidując także inne technologie. Prosimy o sprawdzenie czy istnieje poszukiwana wersja projektu, w zakładce - warianty projektu.
Zwężenie/poszerzenie budynku* to nic innego jak zmiana w projekcie. Istnieje możliwość wprowadzenia takich zmian, we własnym zakresie (podczas adaptacji). *zwężenie/poszerzenie budynku nie powinno stanowić problemu w przypadku domów o dachu dwuspadowym jeśli wiąże się to z wydłużeniem/skróceniem kalenicy dachu.
Poznaj praktyczne porady ekspertów, które ułatwią Ci każdy etap budowy i od wyboru wymarzonego domu po jego wykończenie. Zyskaj pewność, że podejmujesz najlepsze decyzje dzięki sprawdzonym wskazówkom od specjalistów z planz.pl
Wycena szacunkowa, w kwotach netto, nie zawiera instalacji.
bezpłatnie (0zł)
przelew zwykły / PayNow
przy odbiorze
3-5 dni roboczych (jeśli projekt nie jest koncepcją)
Wybierz wygodny dla Ciebie czas kontaktu z naszym Doradcą Technicznym.