Dom Dla Ciebie 2 z garażem 1-st. A



1. Wiatrołap | 5,00 m² |
2. Hol | 8,60 m² |
3. Kuchnia + spiżarnia | 10,40 m² |
4. Salon + jadalnia | 30,70 m² |
5. łazienka | 4,20 m² |
6. Kotłownia + pralnia | 8,50 m² |
7. Schody | 3,60 m² |
8. Pokój | 11,00 m² |
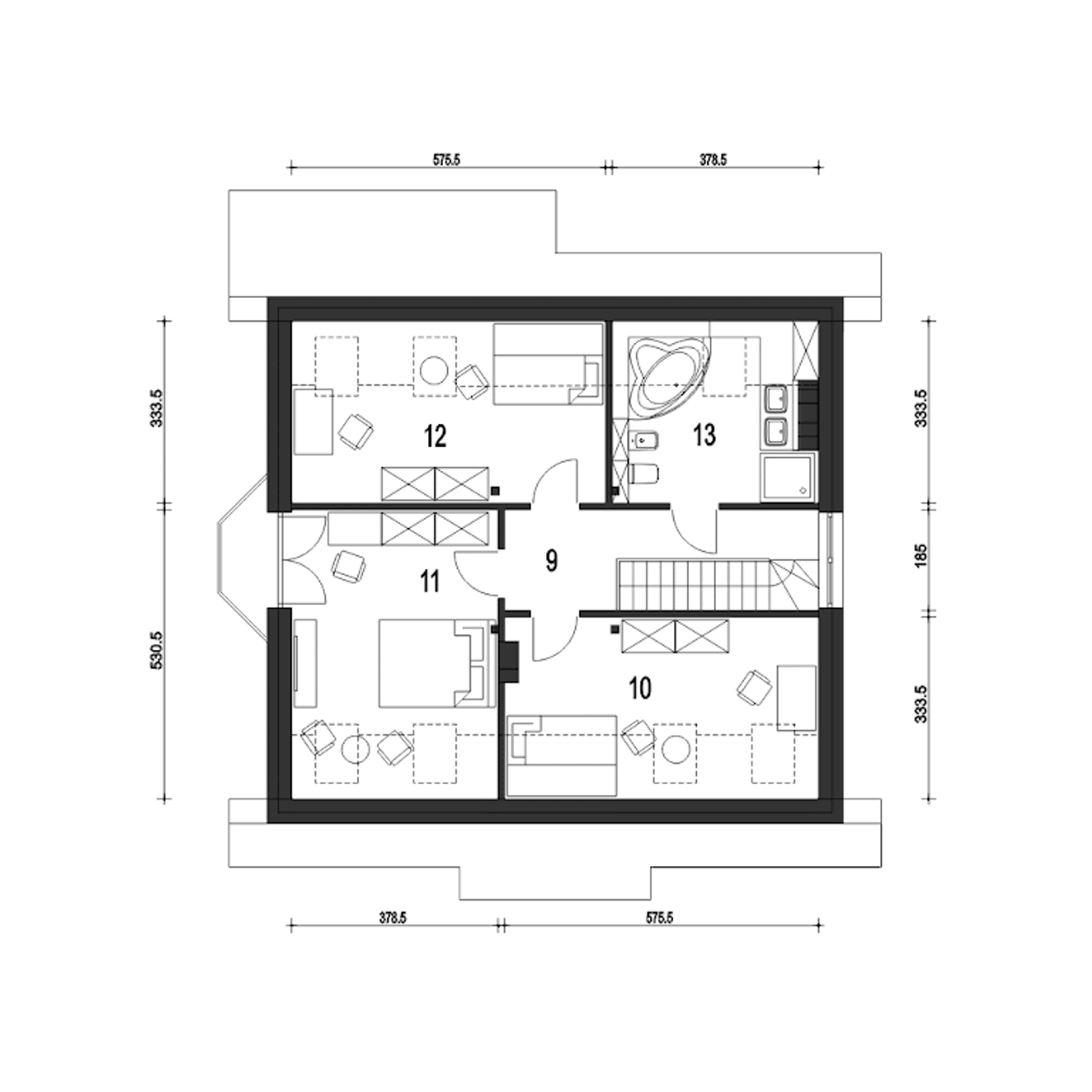
1. Przedpokój | 7,20 (7,20) m² |
2. Sypialnia | 12,80 (18,70) m² |
3. Sypialnia | 15,90 (19,80) m² |
4. Sypialnia | 13,00 (18,90) m² |
5. łazienka | 8,00 (11,80) m² |
Wypełnij formularz i otrzymaj rysunki w pdf z dokładnymi wymiarami budynku i pomieszczeń (długość, szerokość, wysokość) dla projektu Dom Dla Ciebie 2 bez garażu B
Ilość pokoi 5 |
Pow. użytkowa 130.4 m² |
Powierzchnia zabudowy 104.7 m² |
Kondygnacje parterowy+poddasze |
Garaż bez garażu |
Technologia murowany |
Szerokość działki 19.5 m |
Obiekt dom |
Typ domu jednorodzinny całoroczny |
Styl budynku tradycyjny |
Kominek kominek w projekcie |
Strop gęstożebrowy |
Szerokość budynku 11.5 m |
Kotłownia duża kotłownia |
Kąt nachylenia dachu 40 ° |
Kalenica równoległa do drogi |
Długość budynku 9.7 m |
Piwnica bez podpiwniczenia |
Funkcje dodatkowe z pralnią |
Kubatura 391 m³ |
Rodzaj dachu dwuspadowy |
Powierzchnia dachu 183 m² |
Długość działki 17.7 m |
Wysokość budynku 8.7 m |
Bryła budynku prosta bryła |
Liczba łazieniek 2 |
Koszty budowy tylko z kosztorysem, 250-300 tys. |
Ilość pokoi 5 |
Powierzchnia zabudowy 104.7 m² |
Garaż bez garażu |
Szerokość działki 19.5 m |
Typ domu jednorodzinny całoroczny |
Kominek kominek w projekcie |
Szerokość budynku 11.5 m |
Kąt nachylenia dachu 40 ° |
Długość budynku 9.7 m |
Funkcje dodatkowe z pralnią |
Rodzaj dachu dwuspadowy |
Długość działki 17.7 m |
Bryła budynku prosta bryła |
Koszty budowy tylko z kosztorysem, 250-300 tys. |
Pow. użytkowa 130.4 m² |
Kondygnacje parterowy+poddasze |
Technologia murowany |
Obiekt dom |
Styl budynku tradycyjny |
Strop gęstożebrowy |
Kotłownia duża kotłownia |
Kalenica równoległa do drogi |
Piwnica bez podpiwniczenia |
Kubatura 391 m³ |
Powierzchnia dachu 183 m² |
Wysokość budynku 8.7 m |
Liczba łazieniek 2 |
Kupując projekt w technologii murowanej powinieneś budować dom murowany. Zupełna zmiana technologii na szkieletową wymaga przeprojektowania całego budynku ( zmieniają się obciążenia, fundamenty, konstrukcja dachu). Wydamy zgodę na takie przeprojektowanie jednak wiążę się to z dużymi kosztami. Istnieją firmy wykonawcze, które podejmują się zmiany technologii budowy bezpłatnie przy skorzystaniu z ich usług wykonawczych. Zdarza się, że pracownia architektoniczna przygotowuje warianty konkretnego projektu przewidując także inne technologie. Prosimy o sprawdzenie czy istnieje poszukiwana wersja projektu, w zakładce - warianty projektu.
Zwężenie/poszerzenie budynku* to nic innego jak zmiana w projekcie. Istnieje możliwość wprowadzenia takich zmian, we własnym zakresie (podczas adaptacji). *zwężenie/poszerzenie budynku nie powinno stanowić problemu w przypadku domów o dachu dwuspadowym jeśli wiąże się to z wydłużeniem/skróceniem kalenicy dachu.
Poznaj praktyczne porady ekspertów, które ułatwią Ci każdy etap budowy i od wyboru wymarzonego domu po jego wykończenie. Zyskaj pewność, że podejmujesz najlepsze decyzje dzięki sprawdzonym wskazówkom od specjalistów z planz.pl
Wycena szacunkowa, w kwotach netto, nie zawiera instalacji.
bezpłatnie (0zł)
przelew zwykły / PayNow
przy odbiorze
3-5 dni roboczych (jeśli projekt nie jest koncepcją)
Wybierz wygodny dla Ciebie czas kontaktu z naszym Doradcą Technicznym.