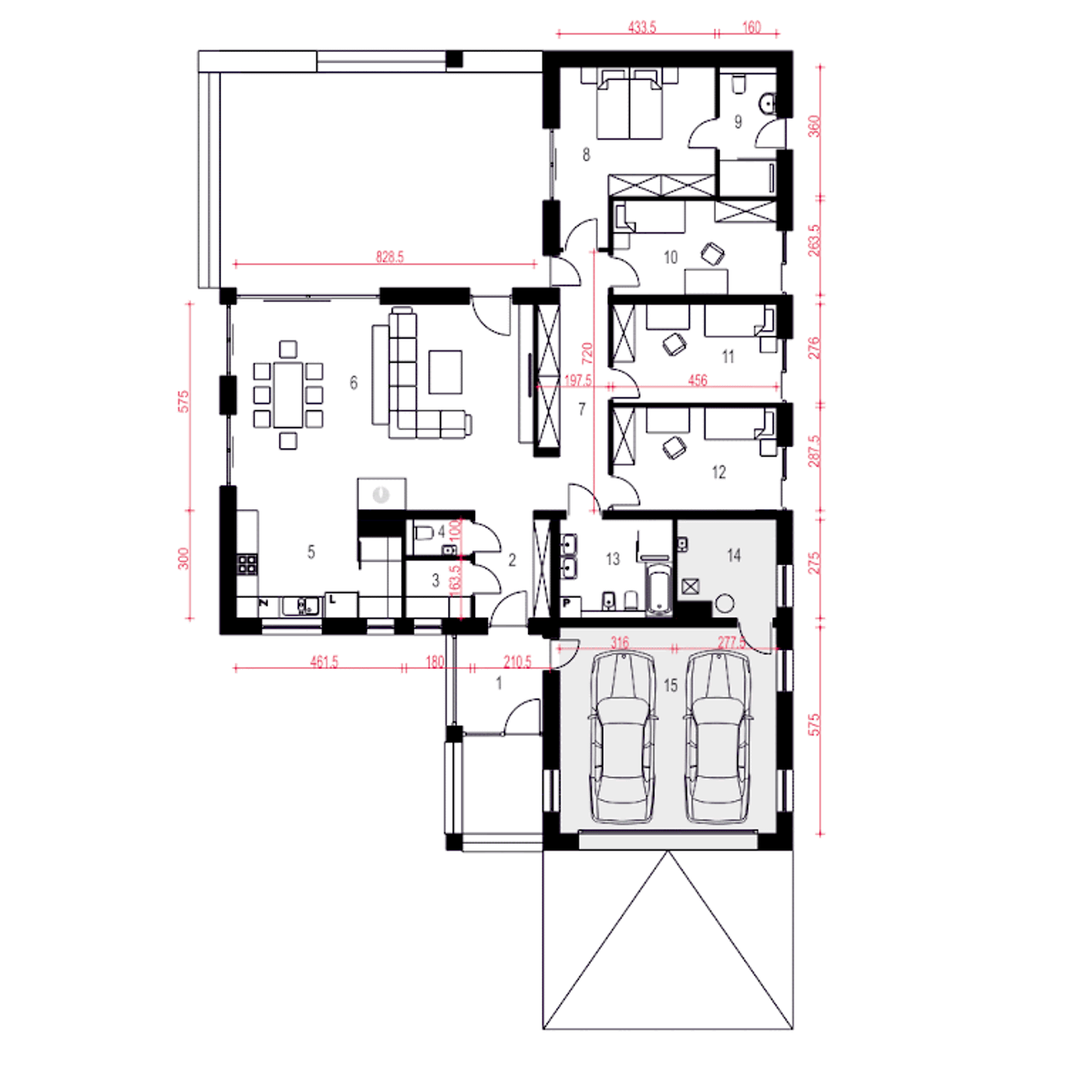
Dolomit z garażem 2-st. A



1. Wiatrołap | 5,60 m² |
2. Hol | 6,10 m² |
3. Garderoba | 2,80 m² |
4. Wc | 1,70 m² |
5. Kuchnia, spiżarnia | 12,80 m² |
6. Salon | 47,20 m² |
7. Korytarz | 13,20 m² |
8. Pokój | 17,30 m² |
9. łazienka | 5,60 m² |
10. Pokój | 11,80 m² |
11. Pokój | 12,40 m² |
12. Pokój | 12,90 m² |
13. łazienka | 8,50 m² |
14. Pom. techniczne + co | 7,00 m² |
15. Garaż | 34,40 m² |
Wypełnij formularz i otrzymaj rysunki w pdf z dokładnymi wymiarami budynku i pomieszczeń (długość, szerokość, wysokość) dla projektu Dolomit II z garażem 2-st. A
Ilość pokoi 5 |
Pow. użytkowa 157.9 m² |
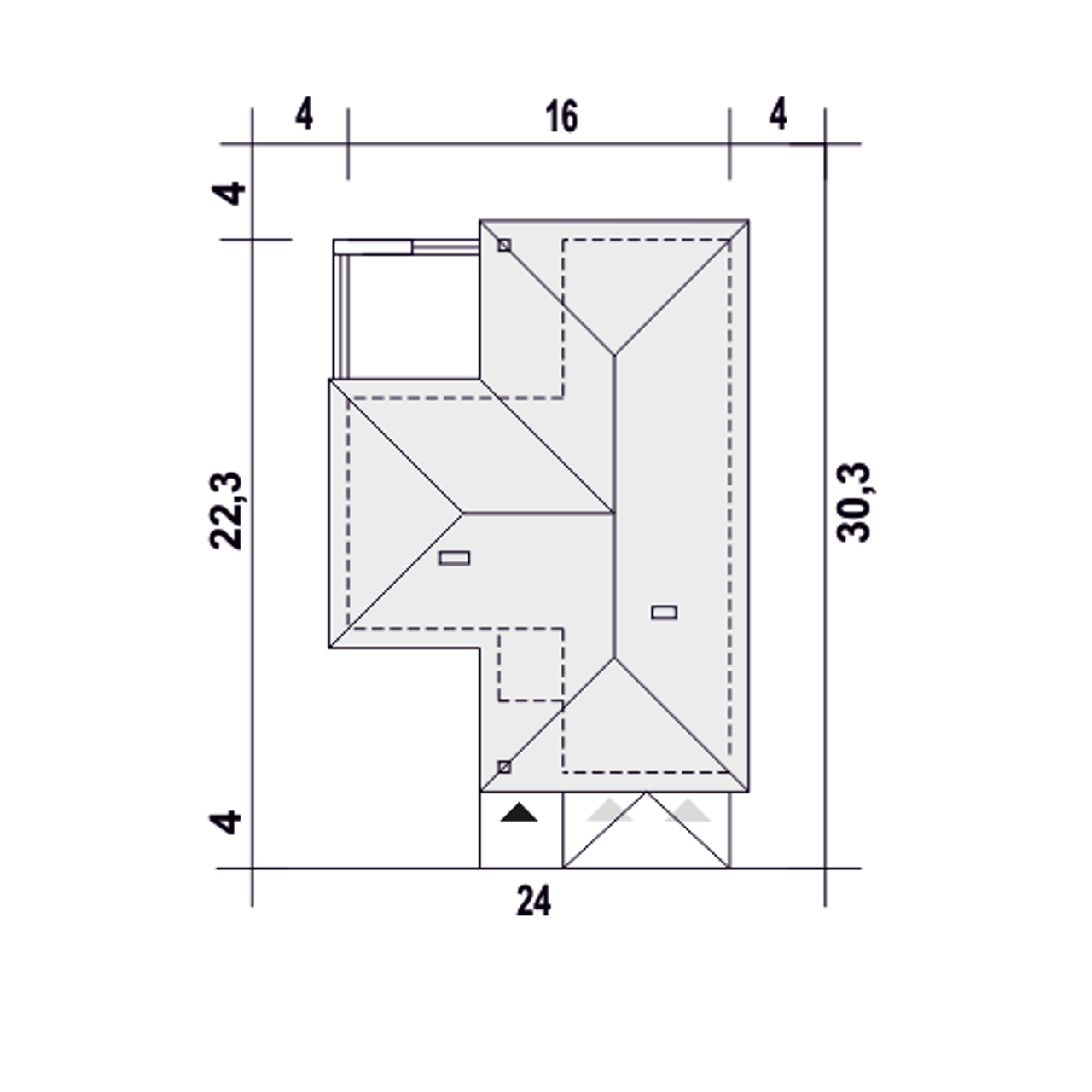
Powierzchnia zabudowy 250.7 m² |
Kondygnacje parterowy |
Garaż 2 stanowiska |
Technologia murowany |
Szerokość działki 24 m |
Obiekt dom |
Typ domu jednorodzinny całoroczny |
Kalenica równoległa do drogi |
Powierzchnia dachu 374.3 m² |
Rodzaj dachu wielospadowy |
Wysokość budynku 7.1 m |
Długość działki 30.3 m |
Bryła budynku plan litery T |
Styl budynku nowoczesny |
Liczba łazieniek 2 |
Kominek kominek w projekcie |
Kąt nachylenia dachu 25 ° |
Szerokość budynku 16 m |
Kotłownia duża kotłownia |
Strop gęstożebrowy |
Długość budynku 22.3 m |
Rodzaj garażu z przodu |
Piwnica bez podpiwniczenia |
Koszty budowy 450-500 tys., tylko z kosztorysem |
Ilość pokoi 5 |
Powierzchnia zabudowy 250.7 m² |
Garaż 2 stanowiska |
Szerokość działki 24 m |
Typ domu jednorodzinny całoroczny |
Powierzchnia dachu 374.3 m² |
Wysokość budynku 7.1 m |
Bryła budynku plan litery T |
Liczba łazieniek 2 |
Kąt nachylenia dachu 25 ° |
Kotłownia duża kotłownia |
Długość budynku 22.3 m |
Piwnica bez podpiwniczenia |
Pow. użytkowa 157.9 m² |
Kondygnacje parterowy |
Technologia murowany |
Obiekt dom |
Kalenica równoległa do drogi |
Rodzaj dachu wielospadowy |
Długość działki 30.3 m |
Styl budynku nowoczesny |
Kominek kominek w projekcie |
Szerokość budynku 16 m |
Strop gęstożebrowy |
Rodzaj garażu z przodu |
Koszty budowy 450-500 tys., tylko z kosztorysem |
Kupując projekt w technologii murowanej powinieneś budować dom murowany. Zupełna zmiana technologii na szkieletową wymaga przeprojektowania całego budynku ( zmieniają się obciążenia, fundamenty, konstrukcja dachu). Wydamy zgodę na takie przeprojektowanie jednak wiążę się to z dużymi kosztami. Istnieją firmy wykonawcze, które podejmują się zmiany technologii budowy bezpłatnie przy skorzystaniu z ich usług wykonawczych. Zdarza się, że pracownia architektoniczna przygotowuje warianty konkretnego projektu przewidując także inne technologie. Prosimy o sprawdzenie czy istnieje poszukiwana wersja projektu, w zakładce - warianty projektu.
Zwężenie/poszerzenie budynku* to nic innego jak zmiana w projekcie. Istnieje możliwość wprowadzenia takich zmian, we własnym zakresie (podczas adaptacji). *zwężenie/poszerzenie budynku nie powinno stanowić problemu w przypadku domów o dachu dwuspadowym jeśli wiąże się to z wydłużeniem/skróceniem kalenicy dachu.
Poznaj praktyczne porady ekspertów, które ułatwią Ci każdy etap budowy i od wyboru wymarzonego domu po jego wykończenie. Zyskaj pewność, że podejmujesz najlepsze decyzje dzięki sprawdzonym wskazówkom od specjalistów z planz.pl
Wycena szacunkowa, w kwotach netto, nie zawiera instalacji.
bezpłatnie (0zł)
przelew zwykły / PayNow
przy odbiorze
3-5 dni roboczych (jeśli projekt nie jest koncepcją)
Wybierz wygodny dla Ciebie czas kontaktu z naszym Doradcą Technicznym.