Doborowy - M239



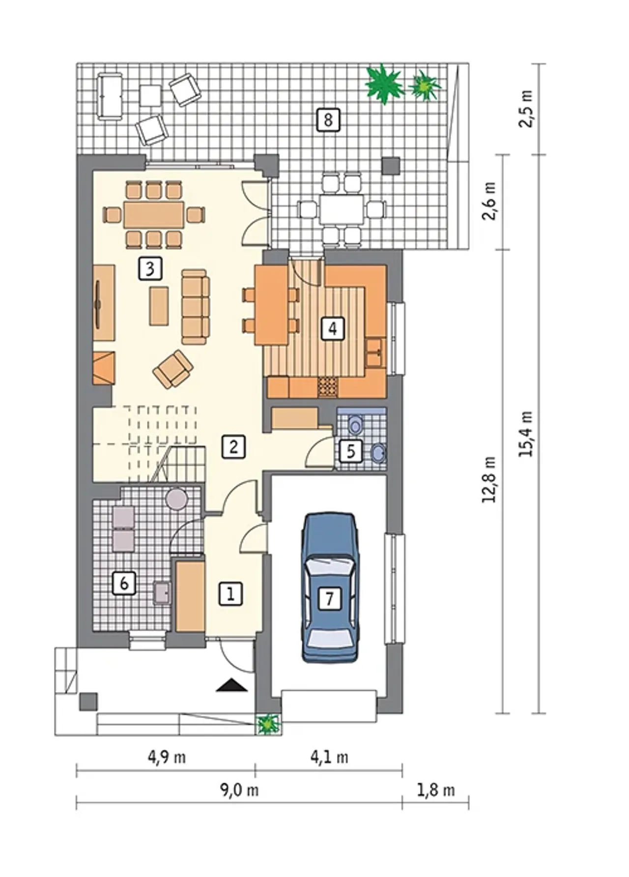
1. Przedsionek | 2,30 (2,30) m² |
2. Hol | 2,60 (2,60) m² |
3. Korytarz | 4,30 (4,30) m² |
4. Sypialnia | 13,00 (13,00) m² |
5. łazienka | 4,10 (4,10) m² |
6. Pokój dzienny | 32,80 (32,80) m² |
7. Kuchnia | 12,20 (12,20) m² |
8. Kotłownia | 5,70 (6,60) m² |
9. Garaż | 18,90 (18,90) m² |
10. Taras | 57,70 (57,70) m² |
Wypełnij formularz i otrzymaj rysunki w pdf z dokładnymi wymiarami budynku i pomieszczeń (długość, szerokość, wysokość) dla projektu Doborowy - wariant VIII - M239gD
Pow. użytkowa 159.4 m² |
Ilość pokoi 6 |
Powierzchnia zabudowy 138.1 m² |
Kondygnacje piętrowy |
Garaż 1 stanowisko |
Technologia murowany |
Szerokość działki 16 m |
Obiekt dom |
Typ domu jednorodzinny całoroczny |
Piwnica bez podpiwniczenia |
Kubatura 949.5 m³ |
Styl budynku nowoczesny |
Wysokość budynku 9.25 m |
Długość działki 23.4 m |
Strop żelbetowy |
Liczba łazieniek 2 |
Kąt nachylenia dachu 25 ° |
Kalenica bez znaczenia |
Rodzaj garażu w bryle |
Kominek kominek w projekcie |
Funkcje dodatkowe z pralnią |
Szerokość budynku 9 m |
Rodzaj dachu wielospadowy |
Taras z tarasem |
Długość budynku 15.4 m |
Koszty budowy 350-400 tys., tylko z kosztorysem |
Pow. użytkowa 159.4 m² |
Powierzchnia zabudowy 138.1 m² |
Garaż 1 stanowisko |
Szerokość działki 16 m |
Typ domu jednorodzinny całoroczny |
Kubatura 949.5 m³ |
Wysokość budynku 9.25 m |
Strop żelbetowy |
Kąt nachylenia dachu 25 ° |
Rodzaj garażu w bryle |
Funkcje dodatkowe z pralnią |
Rodzaj dachu wielospadowy |
Długość budynku 15.4 m |
Ilość pokoi 6 |
Kondygnacje piętrowy |
Technologia murowany |
Obiekt dom |
Piwnica bez podpiwniczenia |
Styl budynku nowoczesny |
Długość działki 23.4 m |
Liczba łazieniek 2 |
Kalenica bez znaczenia |
Kominek kominek w projekcie |
Szerokość budynku 9 m |
Taras z tarasem |
Koszty budowy 350-400 tys., tylko z kosztorysem |
Kupując projekt w technologii murowanej powinieneś budować dom murowany. Zupełna zmiana technologii na szkieletową wymaga przeprojektowania całego budynku ( zmieniają się obciążenia, fundamenty, konstrukcja dachu). Wydamy zgodę na takie przeprojektowanie jednak wiążę się to z dużymi kosztami. Istnieją firmy wykonawcze, które podejmują się zmiany technologii budowy bezpłatnie przy skorzystaniu z ich usług wykonawczych. Zdarza się, że pracownia architektoniczna przygotowuje warianty konkretnego projektu przewidując także inne technologie. Prosimy o sprawdzenie czy istnieje poszukiwana wersja projektu, w zakładce - warianty projektu.
Zwężenie/poszerzenie budynku* to nic innego jak zmiana w projekcie. Istnieje możliwość wprowadzenia takich zmian, we własnym zakresie (podczas adaptacji). *zwężenie/poszerzenie budynku nie powinno stanowić problemu w przypadku domów o dachu dwuspadowym jeśli wiąże się to z wydłużeniem/skróceniem kalenicy dachu.
Poznaj praktyczne porady ekspertów, które ułatwią Ci każdy etap budowy i od wyboru wymarzonego domu po jego wykończenie. Zyskaj pewność, że podejmujesz najlepsze decyzje dzięki sprawdzonym wskazówkom od specjalistów z planz.pl
Wycena szacunkowa, w kwotach netto, nie zawiera instalacji.
bezpłatnie (0zł)
przelew zwykły / PayNow
przy odbiorze
3-5 dni roboczych (jeśli projekt nie wymaga aktualizacji)
Wybierz wygodny dla Ciebie czas kontaktu z naszym Doradcą Technicznym.