- Promocja GRATISOWA do 03.10.2025 ➞ sprawdź zasady
- ✓ GRATIS: Wiertarka
- ✓ GRATIS: 16 projektów (drewutni, altany i wiaty)
- ✓ GRATIS: tablica i dziennik budowy
- ✓ GRATIS: przesyłka kurierska
- Potrzebujesz ADAPTACJI lub architekta do ZMIAN w projekcie? ➞ sprawdź jak pomożemy bez dodatkowej opłaty
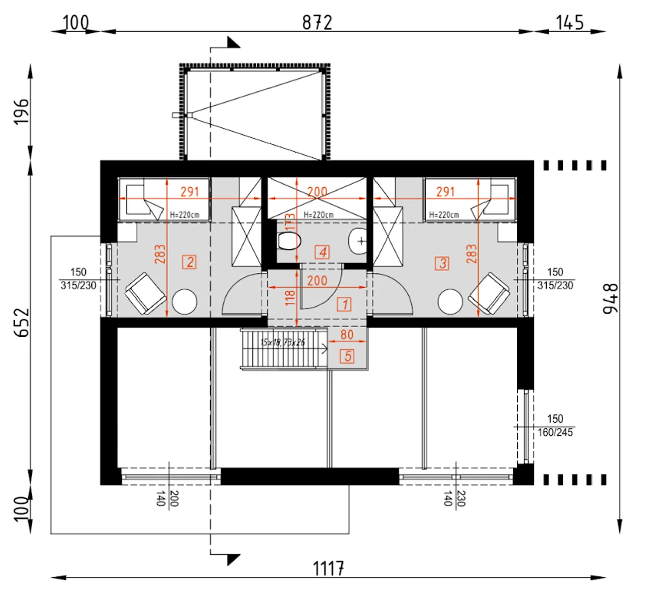
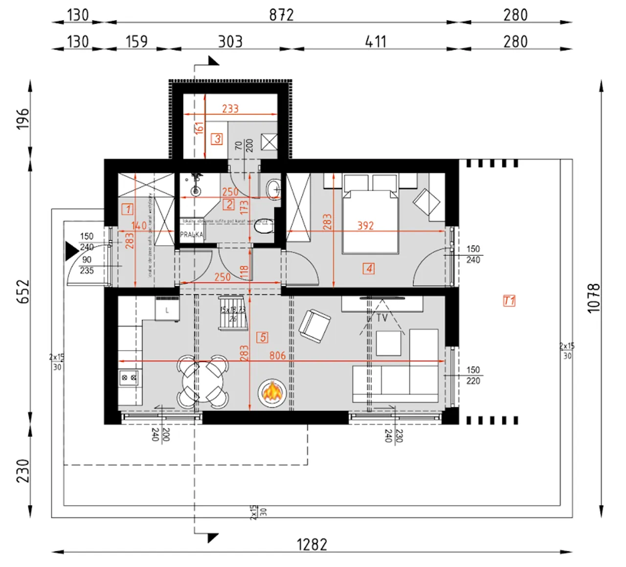
Rzuty gotowego projektu domu DM28 - WT2021 wersja drewniana
Zapoznaj się ze szczegółami projektu - pobierz bezpłatne rysunki do: DM28 - WT2021 wersja drewniana
Wypełnij formularz i otrzymaj rysunki w pdf z dokładnymi wymiarami budynku i pomieszczeń (długość, szerokość, wysokość) dla projektu DM28 - WT2021 wersja drewniana

Parametry Techniczne gotowego projektu domu DM28 - WT2021 wersja drewniana
Ilość pokoi 4 |
Pow. użytkowa 68.77 m² |
Powierzchnia zabudowy 62.83 m² |
Kondygnacje parterowy+poddasze |
Garaż bez garażu |
Technologia szkielet/drewniany |
Szerokość działki 17.02 m |
Obiekt dom |
Typ domu jednorodzinny całoroczny |
Długość budynku 6.52 m |
Piwnica bez podpiwniczenia |
Kubatura 304.4 m³ |
Wysokość budynku 6.94 m |
Kalenica równoległa do drogi |
Długość działki 15.48 m |
Styl budynku nowoczesny |
Liczba łazieniek 1 |
Kąt nachylenia dachu 30 ° |
Szerokość budynku 8.72 m |
Rodzaj dachu dwuspadowy |
Kominek kominek w projekcie |
Koszty budowy tylko z kosztorysem, 150-200 tys. |
Ilość pokoi 4 |
Powierzchnia zabudowy 62.83 m² |
Garaż bez garażu |
Szerokość działki 17.02 m |
Typ domu jednorodzinny całoroczny |
Piwnica bez podpiwniczenia |
Wysokość budynku 6.94 m |
Długość działki 15.48 m |
Liczba łazieniek 1 |
Szerokość budynku 8.72 m |
Kominek kominek w projekcie |
Pow. użytkowa 68.77 m² |
Kondygnacje parterowy+poddasze |
Technologia szkielet/drewniany |
Obiekt dom |
Długość budynku 6.52 m |
Kubatura 304.4 m³ |
Kalenica równoległa do drogi |
Styl budynku nowoczesny |
Kąt nachylenia dachu 30 ° |
Rodzaj dachu dwuspadowy |
Koszty budowy tylko z kosztorysem, 150-200 tys. |
Nasze prawdziwe opinie z Google
Opis projektu domu DM28 - WT2021 wersja drewniana
Technologia wykonania:
- Ściany zewnętrzne: drewniane z ociepleniem.
- Strop: drewniany.
- Pokrycie dachu: blacha trapezowa łączona na rąbek.
- Elewacja: blacha trapezowa łączona na rąbek, deskowanie.
- Ogrzewanie: klimatyzacja.
- Wentylacja: mechaniczna.
- Projekt zgodny z Wt2021.
Częste pytania
Czy mogę wprowadzić zmiany w projekcie?
Projekt jest murowany, a ja chcę budować drewniany
Kupując projekt w technologii murowanej powinieneś budować dom murowany. Zupełna zmiana technologii na szkieletową wymaga przeprojektowania całego budynku ( zmieniają się obciążenia, fundamenty, konstrukcja dachu). Wydamy zgodę na takie przeprojektowanie jednak wiążę się to z dużymi kosztami. Istnieją firmy wykonawcze, które podejmują się zmiany technologii budowy bezpłatnie przy skorzystaniu z ich usług wykonawczych. Zdarza się, że pracownia architektoniczna przygotowuje warianty konkretnego projektu przewidując także inne technologie. Prosimy o sprawdzenie czy istnieje poszukiwana wersja projektu, w zakładce - warianty projektu.
Co zrobić gdy wybrany dom nie mieści się na działce?
Zwężenie/poszerzenie budynku* to nic innego jak zmiana w projekcie. Istnieje możliwość wprowadzenia takich zmian, we własnym zakresie (podczas adaptacji). *zwężenie/poszerzenie budynku nie powinno stanowić problemu w przypadku domów o dachu dwuspadowym jeśli wiąże się to z wydłużeniem/skróceniem kalenicy dachu.
Jakie zmiany można wprowadzić w projekcie?
- Rozmieszczenie ścian działowych.
- Zmiany funkcji pomieszczeń.
- Modyfikacje wielkości, ilości i kształtu otworów okiennych i drzwiowych.
- Użycie innych materiałów na elementy konstrukcyjne budynku (ściany, stropy) przy zachowaniu wymagań konstrukcji, parametrów cieplnych budynku i elewacji.
- Wprowadzenie częściowego lub całkowitego podpiwniczenia budynku.
- Zmiana kąta nachylenia, kształtu i konstrukcji dachu.
- Zmiana sposobu ogrzewania i prowadzenia instalacji CO, zmiany instalacji wodno-kanalizacyjnej, gazowej, oraz elektrycznej (zachowując obowiązujące normy, zgodnie z prawem budowlanym).
- Zmiana materiałów wykończeniowych: posadzek, tynków, dachówki, izolacji cieplnej i przeciwwilgociowej (przy zachowaniu niezbędnych parametrów wytrzymałości oraz parametrów przenikania ciepła).
- Zmiany wynikające z dostosowania budynku do warunków gruntowych.
- Zmiany wymiarów fundamentów.
- Zmiany wymiarów przekrojów lub rozstawu elementów więźby dachowej wynikające z dostosowania budynku do strefy śniegowej lub wiatrowej.
- Zmiany szerokości schodów, liczby stopni i wymiarów schodów wewnętrznych oraz zewnętrznych.
- Zmiany pokrycia dachowego (uwzględniając istniejące spadki i ciężar).
- Zmiany kształtu, wielkości, usytuowania elementów takich jak tarasy, wiaty, murki.
- Zmiany wysokości ścianki kolankowej.
- Zmiany usytuowania i ilości kominów.
- Dobudowanie lub usunięcie garażu lub wiaty garażowej.
- Dobudowanie lub usunięcie lukarn.
- Dobudowanie lub usunięcie balkonów.
- Dobudowanie lub usunięcie wykuszy.
- Zabudowanie podcienia.
Poznaj praktyczne porady ekspertów, które ułatwią Ci każdy etap budowy i od wyboru wymarzonego domu po jego wykończenie. Zyskaj pewność, że podejmujesz najlepsze decyzje dzięki sprawdzonym wskazówkom od specjalistów z planz.pl
Co zawiera projekt
- ✓ 3 x projekt architektoniczno-budowlany ➞ szczegóły
- ✓ Projekty techniczne ➞ szczegóły
- ✓ charakterystyka energetyczna (do projektów domów)
- ✓ zgoda na zmiany w projekcie ➞ szczegóły
- ✓ GRATIS: Wiertarka (do projektów w cenie od 3000 zł)
- ✓ GRATIS: 16 projektów (drewutni, altany i wiaty)
- ✓ GRATIS: tablica i dziennik budowy
- ✓ GRATIS: przesyłka kurierska
Szacunkowy kosztorys dla projektu DM28 - WT2021 wersja drewniana


Wycena szacunkowa, w kwotach netto, nie zawiera instalacji.
Dodatki do projektu DM28 - WT2021 wersja drewniana
[Artinex] Dodatkowy egzemplarz projektu domu (490 zł)
[Artinex]Projekt wentylacji mechanicznej z rekuperacją (890 zł)
[Artinex] Szczegółowy kosztorys Inwestorski dom (990 zł)
[Artinex] Projekt ogrzewania powietrzną pompą ciepła + ogrzewanie podłogowe (1890 zł)
[Artinex] Projekt ogrzewania podłogowego (790 zł)
[Artinex] Projekt instalacji solarnej (990 zł)
[Artinex] Zamienna charakterystyka energetyczna (880 zł)
[Artinex] Projekt instalacji fotowoltaicznej (1590 zł)
[Artinex] Projekt ogrzewanie kominkiem z komorą powietrzną (2490 zł)
[Artinex] Szczegółowy Kosztorys Inwestorski garaż (690 zł)
[Artinex] Dodatkowy egzemplarz projektu garażu (390 zł)
[Artinex] Projekt płyty fundamentowej (1180 zł)
[Artinex] Projekt instalacji inteligentnych (2290 zł)
[Planz] Tablica budowlana (0 zł)
[Planz] Dziennik budowy (0 zł)
[Planz] Wiertarka udarowa (0 zł)
[Planz] Zgoda na zmiany w projekcie (0 zł)
[Planz] Projekty architektury ogrodowej (0 zł)
[Planz] Charakterystyka energetyczna, tylko dla domów całorocznych (0 zł)
Wysyłka i płatność za projekt DM28 - WT2021 wersja drewniana

Koszty wysyłki
bezpłatnie (0zł)

Formy płatności
przelew zwykły / PayNow
przy odbiorze

Czas oczekiwania
3-5 dni roboczych (jeśli projekt nie wymaga aktualizacji)
Komentarze / pytania do projektu domu DM28 - WT2021 wersja drewniana
Projekt w kategoriach
Zamów rozmowę
Wybierz wygodny dla Ciebie czas kontaktu z naszym Doradcą Technicznym.