22 299 20 00 (pn-nd 9.30 do 19.30)

Gotowy projekt domu DM2 - WT2021 wersja drewniana (ID: 34462)

3390 2026-01-18
DM2 - WT2021 wersja drewniana - 55.98m²
Dostawa w ciągu 3-10 dni
Gwarantujemy najniższą cenę
3390 zł
(4490 zł brutto)
TANIEJ 1100 zł do 12.01.2026
Najniższa cena z 30 dni przed obniżką: 3390 zł
3390 2026-01-18
W cenie projektu:
📣 GRATIS: WIERTARKA UDAROWA
  • Tablica + dziennik budowy
  • 16 projektów ogrodowych
  • Darmowa wysyłka (kurier, paczkomat, pobranie)
  • 30 dni na zwrot
  • Pozwolenie na zmiany z podpisem i pieczęcią autora
  • GRATIS: Wiertarka Udarowa
22 299 20 00 (pn-nd 9.30 do 19.30)

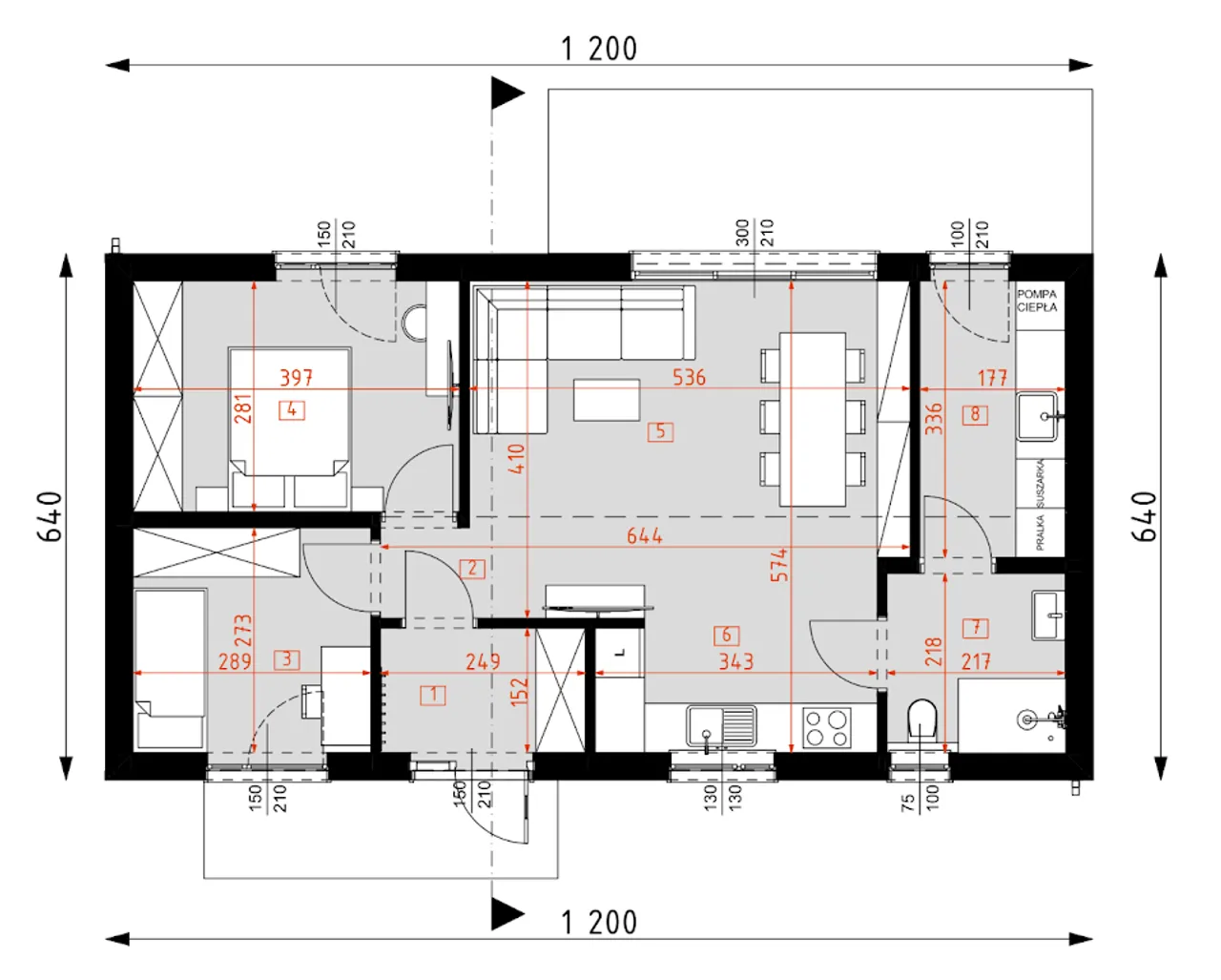
Rzuty gotowego projektu domu DM2 - WT2021 wersja drewniana

1. Wiatrołap 3,78 m²
2. Przedpokój 1,19 m²
3. Pokój 7,90 m²
4. Sypialnia 11,15 m²
5. Salon z jadalnią 21,70 m²
6. łazienka 4,73 m²
7. Kuchnia 5,53 m²
8. Pom. gospodarcze 5,95 m²

Zapoznaj się ze szczegółami projektu - zamów bezpłatne rysunki do: DM2 - WT2021 wersja drewniana

Wypełnij formularz i otrzymaj na podany adres e-mail rysunki w pdf z dokładnymi wymiarami budynku i pomieszczeń (długość, szerokość, wysokość) dla projektu DM2 - WT2021 wersja drewniana

Parametry Techniczne gotowego projektu domu DM2 - WT2021 wersja drewniana

Pow. użytkowa 55.98 m²
Powierzchnia zabudowy 76.8 m²
Kondygnacje parterowy
Garaż bez garażu
Technologia szkielet/drewniany
Szerokość działki 18 m
Obiekt dom
Typ domu jednorodzinny całoroczny
Długość działki 14.4 m
Kalenica równoległa do drogi
Styl budynku nowoczesny
Kubatura 263.16 m³
Kominek kominek opcjonalnie
Wysokość budynku 3.85 m
Piwnica bez podpiwniczenia
Rodzaj dachu dwuspadowy

Nasze prawdziwe opinie z Google

Opis projektu domu DM2 - WT2021 wersja drewniana

DM2 - WT2021 wersja drewniana – nowoczesny dom parterowy

Projekt DM2 - WT2021 wersja drewniana to parterowy dom jednorodzinny stworzony z myślą o całorocznym, wygodnym życiu na jednej kondygnacji. Nowoczesny charakter bryły, dach dwuspadowy z kalenicą równoległą do drogi oraz technologia szkieletowa tworzą spójną propozycję dla inwestorów szukających funkcjonalnego, ekonomicznego i szybkiego w realizacji domu.

Dom jednorodzinny bez garażu, bez podpiwniczenia, świetnie odnajduje się na działkach o klasycznym układzie z dojazdem od frontu. W praktyce często wybierany jest przez rodziny z dziećmi, pary planujące przyszłość na przedmieściach oraz osoby, które chcą przejść z mieszkania w bloku do własnego, niewymuszenie nowoczesnego domu.

Dlaczego warto wybrać projekt domu DM2 - WT2021 wersja drewniana?

  • Parterowy układ funkcjonalny: Życie toczy się na jednej kondygnacji, bez schodów, co sprzyja wygodzie starszych osób, dzieci oraz domowników o ograniczonej mobilności.
  • Nowoczesny styl budynku: Prosta, współczesna forma z dachem dwuspadowym dobrze wpisuje się w aktualne warunki zabudowy na wielu działkach podmiejskich.
  • Technologia szkieletowa/drewniana: Lekka konstrukcja przyspiesza budowę, ułatwia precyzyjne docieplenie i pomaga osiągnąć wymagania WT2021 w zakresie energooszczędności.
  • Brak garażu i piwnicy: Rezygnacja z kosztownych części podziemnych oraz wbudowanego garażu obniża koszt inwestycji i upraszcza etap fundamentów.
  • Kominek jako opcja: Możliwość zaprojektowania kominka daje szansę na stworzenie nastrojowej strefy dziennej, szczególnie cenionej w chłodniejsze miesiące.

Jak sprawdzi się ten dom na konkretnej działce?

Dom wybudowany na podstawie projektu DM2 - WT2021 wersja drewniana będzie szczególnie trafionym wyborem na działkach w zabudowie jednorodzinnej, gdzie miejscowy plan wymaga dachu dwuspadowego i kalenicy równoległej do drogi. Taki układ ułatwia logiczne usytuowanie budynku względem wjazdu, ogrodu i stron świata, a także często przyspiesza uzyskanie pozwolenia na budowę.

Brak podpiwniczenia sprzyja lokalizacjom z wyższym poziomem wód gruntowych lub słabszym gruntem, gdzie realizacja piwnicy byłaby kosztowna i wymagająca. Technologia szkieletowa/drewniana dobrze sprawdza się w miejscowościach o chłodniejszych zimach, ponieważ pozwala na zastosowanie grubych warstw izolacji przy stosunkowo niewielkiej grubości ściany, co przekłada się na mniejsze zapotrzebowanie na energię.

Dom jednorodzinny całoroczny – funkcjonalna alternatywa dla mieszkania

Projekt opracowano jako dom jednorodzinny całoroczny, więc układ funkcjonalny przygotowany jest z myślą o codziennym, intensywnym użytkowaniu. Brak garażu wewnątrz bryły ułatwia elastyczne zagospodarowanie części ogrodowej – wielu inwestorów decyduje się na wiatę lub wolnostojący budynek gospodarczy, dopasowany do realnych potrzeb.

W praktyce projekt chętnie wybierają także inwestorzy budujący pierwszy dom „systemem gospodarczym”. Prosta konstrukcja dachu dwuspadowego, klarowna forma parterowa oraz brak skomplikowanych załamań bryły sprzyjają sprawnej organizacji prac i współpracy z lokalnymi ekipami wykonawczymi.

Najważniejsze atuty projektu w skrócie

  • Dom parterowy bez schodów – wygodny dla dzieci, seniorów i osób z ograniczoną mobilnością.
  • Nowoczesny dwuspadowy dach – łatwiejszy w realizacji i akceptowalny w wielu MPZP.
  • Technologia drewniana/szkieletowa – szybki montaż, dobra izolacyjność przegród, łatwe docieplenie.
  • Brak piwnicy i garażu – niższy koszt inwestycji oraz prostsze fundamentowanie.
  • Opcjonalny kominek – nastrojowa strefa dzienna i dodatkowe źródło ciepła.

Nie odkładaj decyzji – wybierz projekt DM2 - WT2021 wersja drewniana, dopasuj go do lokalnych warunków zabudowy i rozpocznij przygotowania do budowy własnego, nowoczesnego domu jednorodzinnego.



Dodatki do projektu DM2 - WT2021 wersja drewniana

Dodatki możesz kupić razem z projektem lub dokupić po czasie

[Artinex] Dodatkowy egzemplarz projektu domu (490 zł)

[Artinex]Projekt wentylacji mechanicznej z rekuperacją (890 zł)

[Artinex] Szczegółowy kosztorys Inwestorski dom (990 zł)

[Artinex] Projekt ogrzewania powietrzną pompą ciepła + ogrzewanie podłogowe (1890 zł)

[Artinex] Projekt ogrzewania podłogowego (790 zł)

[Artinex] Projekt instalacji solarnej (990 zł)

[Artinex] Zamienna charakterystyka energetyczna (880 zł)

[Artinex] Projekt instalacji fotowoltaicznej (1590 zł)

[Artinex] Projekt ogrzewanie kominkiem z komorą powietrzną (2490 zł)

[Artinex] Szczegółowy Kosztorys Inwestorski garaż (690 zł)

[Artinex] Dodatkowy egzemplarz projektu garażu (390 zł)

[Artinex] Projekt płyty fundamentowej (1180 zł)

[Artinex] Projekt instalacji inteligentnych (2290 zł)

[Planz] Tablica budowlana (0 zł)

[Planz] Dziennik budowy (0 zł)

[Planz] Wiertarka udarowa (0 zł)

[Planz] Zgoda na zmiany w projekcie (0 zł)

[Planz] Projekty architektury ogrodowej (0 zł)

[Planz] Charakterystyka energetyczna, tylko dla domów całorocznych (0 zł)

Wysyłka i płatność za projekt DM2 - WT2021 wersja drewniana

Koszty wysyłki

bezpłatnie (0zł)

Formy płatności

przelew zwykły / PayNow
przy odbiorze

Czas oczekiwania

3-5 dni roboczych (jeśli projekt nie wymaga aktualizacji)

Komentarze / pytania do projektu domu DM2 - WT2021 wersja drewniana

Anna

Projekt domu DM2 - WT2021 w wersji drewnianej to prawdziwe dzieło nowoczesnej architektury. Elewacja urzeka zastosowaniem naturalnych materiałów, które dodają jej wyjątkowego uroku. Wnętrza zachwycają swoją funkcjonalnością i przestronnością, a każdy szczegół jest starannie zaplanowany, co budzi uznanie. Struktura z drewnianymi elementami wnosi ciepło i przytulność do przestrzeni. Minimalistyczna estetyka jest niezwykle inspirująca. Układ pomieszczeń jest przemyślany i zapewnia wysoki komfort. Widoczne jest nowoczesne podejście do energooszczędności. Ten projekt z pewnością zasługuje na uwagę i poważnie rozważam jego zakup oraz budowę tego domu.

FAQ

Czy możliwe jest zastosowanie alternatywnego źródła ogrzewania, np. pompy ciepła zamiast standardowego ogrzewania lub montaż kominka?

Czy projekt domu DM2 - WT2021 wersja drewniana zawiera możliwość zmiany materiałów, np. na murowane ściany zamiast szkieletu drewnianego?

Czy w projekcie można wprowadzić zmiany w układzie funkcjonalnym pomieszczeń, np. przekształcić jedno z pomieszczeń na gabinet lub powiększyć salon?

PRACOWNIA: Artinex