TK36



Wypełnij formularz i otrzymaj rysunki w pdf z dokładnymi wymiarami budynku i pomieszczeń (długość, szerokość, wysokość) dla projektu Dawid G1
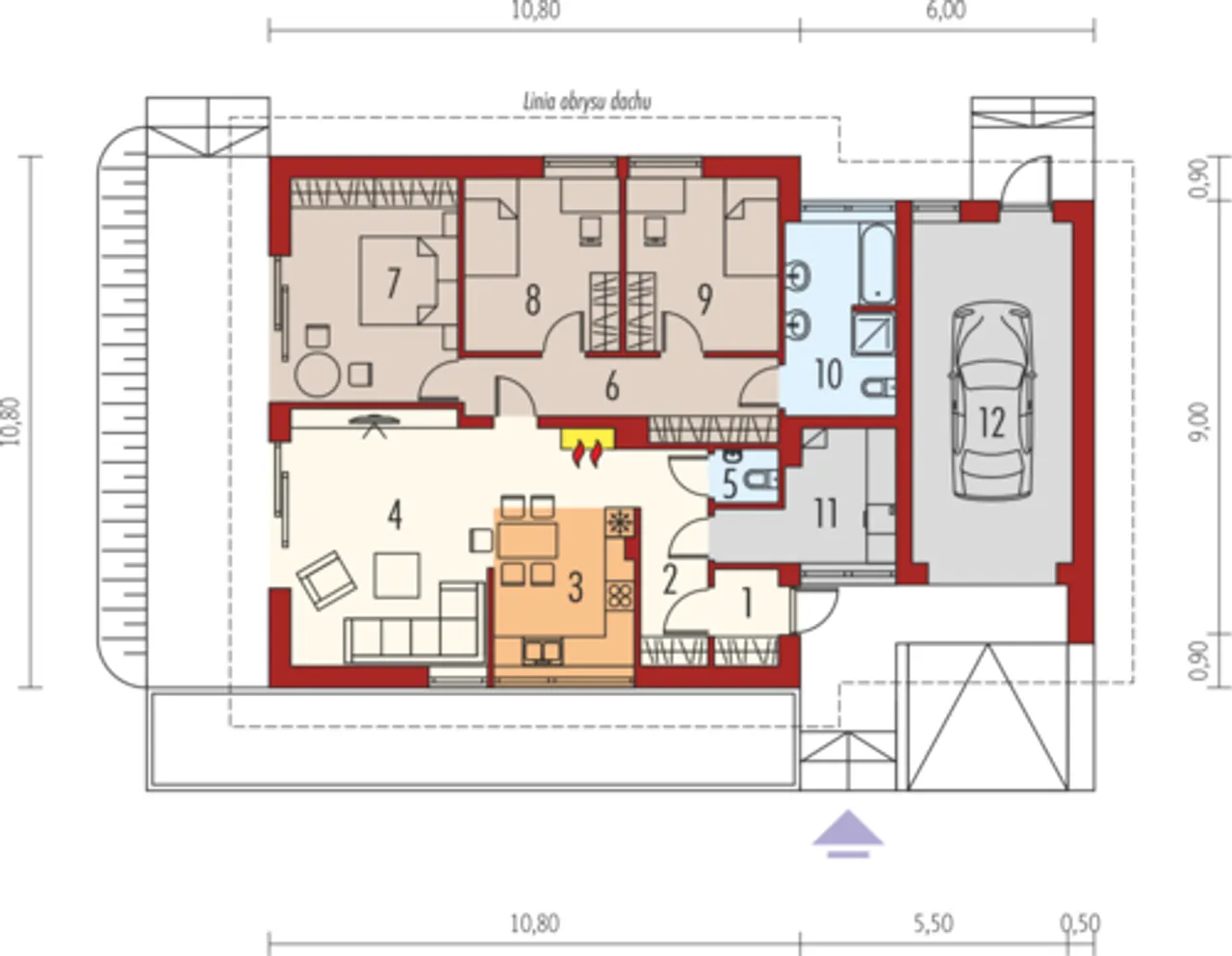
Ilość pokoi 3 |
Pow. użytkowa 99.89 m² |
Powierzchnia zabudowy 172.59 m² |
Kondygnacje parterowy |
Garaż 1 stanowisko |
Technologia murowany |
Szerokość działki 23.8 m |
Obiekt dom |
Typ domu jednorodzinny całoroczny |
Powierzchnia dachu 253 m² |
Rodzaj dachu wielospadowy |
Długość działki 18.8 m |
Ogrzewanie gaz, paliwo stałe |
Wysokość budynku 6.95 m |
Liczba łazieniek 1 |
Styl budynku tradycyjny |
Kominek kominek w projekcie |
Szerokość budynku 16.8 m |
Kotłownia duża kotłownia |
Kąt nachylenia dachu 30 ° |
Strop gęstożebrowy |
Długość budynku 10.8 m |
Piwnica bez podpiwniczenia |
Kalenica bez znaczenia |
Kubatura 400.72 m³ |
Rodzaj garażu przyklejony |
Koszty budowy tylko z kosztorysem, 250-300 tys. |
Ilość pokoi 3 |
Powierzchnia zabudowy 172.59 m² |
Garaż 1 stanowisko |
Szerokość działki 23.8 m |
Typ domu jednorodzinny całoroczny |
Rodzaj dachu wielospadowy |
Ogrzewanie gaz, paliwo stałe |
Liczba łazieniek 1 |
Kominek kominek w projekcie |
Kotłownia duża kotłownia |
Strop gęstożebrowy |
Piwnica bez podpiwniczenia |
Kubatura 400.72 m³ |
Koszty budowy tylko z kosztorysem, 250-300 tys. |
Pow. użytkowa 99.89 m² |
Kondygnacje parterowy |
Technologia murowany |
Obiekt dom |
Powierzchnia dachu 253 m² |
Długość działki 18.8 m |
Wysokość budynku 6.95 m |
Styl budynku tradycyjny |
Szerokość budynku 16.8 m |
Kąt nachylenia dachu 30 ° |
Długość budynku 10.8 m |
Kalenica bez znaczenia |
Rodzaj garażu przyklejony |
Kupując projekt w technologii murowanej powinieneś budować dom murowany. Zupełna zmiana technologii na szkieletową wymaga przeprojektowania całego budynku ( zmieniają się obciążenia, fundamenty, konstrukcja dachu). Wydamy zgodę na takie przeprojektowanie jednak wiążę się to z dużymi kosztami. Istnieją firmy wykonawcze, które podejmują się zmiany technologii budowy bezpłatnie przy skorzystaniu z ich usług wykonawczych. Zdarza się, że pracownia architektoniczna przygotowuje warianty konkretnego projektu przewidując także inne technologie. Prosimy o sprawdzenie czy istnieje poszukiwana wersja projektu, w zakładce - warianty projektu.
Zwężenie/poszerzenie budynku* to nic innego jak zmiana w projekcie. Istnieje możliwość wprowadzenia takich zmian, we własnym zakresie (podczas adaptacji). *zwężenie/poszerzenie budynku nie powinno stanowić problemu w przypadku domów o dachu dwuspadowym jeśli wiąże się to z wydłużeniem/skróceniem kalenicy dachu.
Poznaj praktyczne porady ekspertów, które ułatwią Ci każdy etap budowy i od wyboru wymarzonego domu po jego wykończenie. Zyskaj pewność, że podejmujesz najlepsze decyzje dzięki sprawdzonym wskazówkom od specjalistów z planz.pl
Wycena szacunkowa, w kwotach netto, nie zawiera instalacji.
bezpłatnie (0zł)
przelew zwykły / PayNow
przy odbiorze
3-5 dni roboczych (jeśli projekt nie wymaga aktualizacji)
Wybierz wygodny dla Ciebie czas kontaktu z naszym Doradcą Technicznym.