Daktyl II z garażem 1-st. A



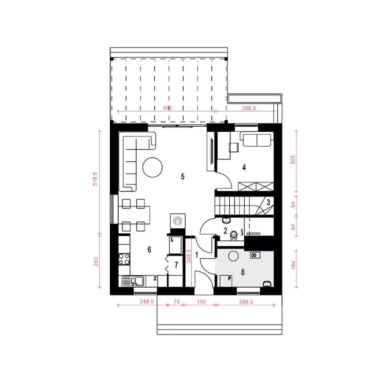
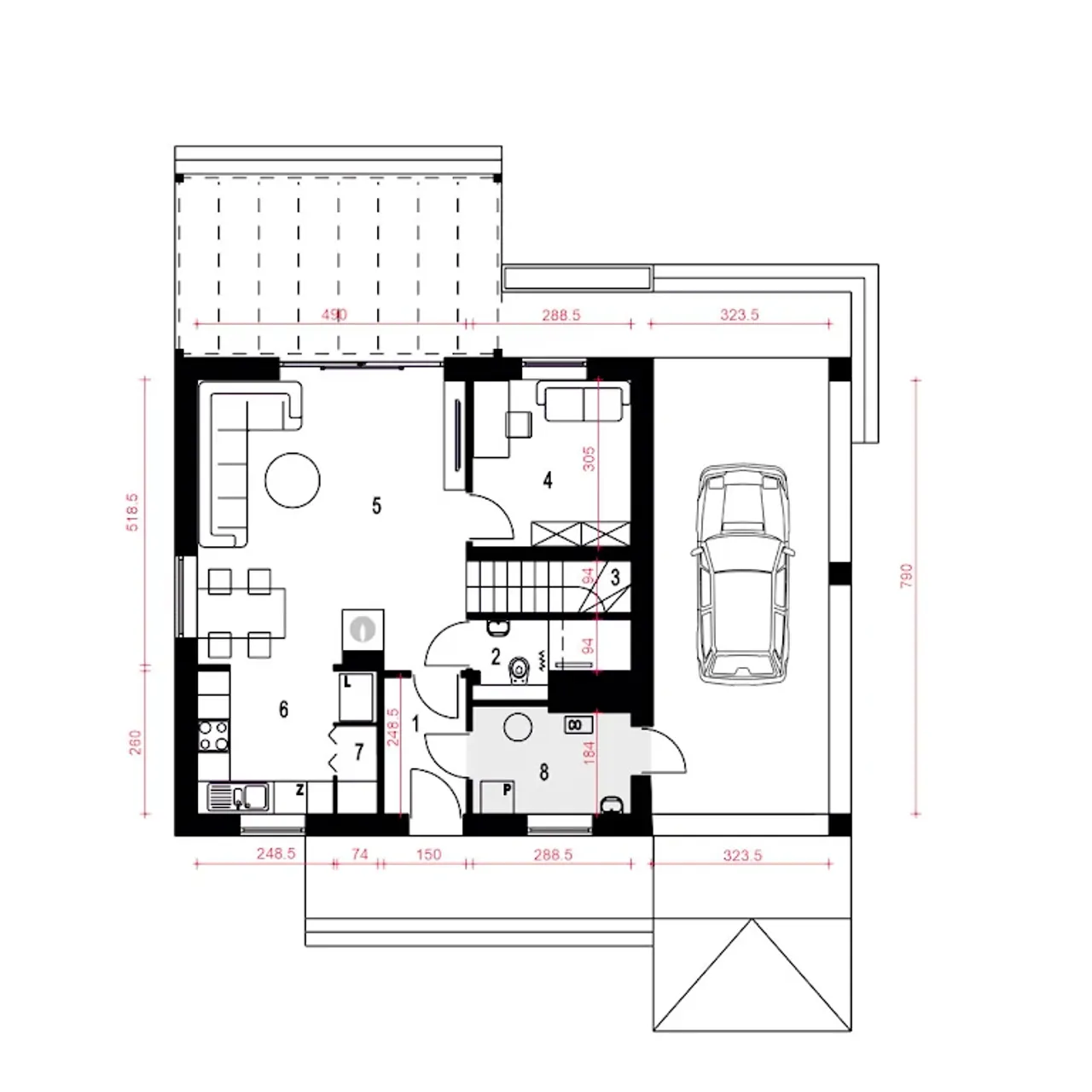
1. Wiatrołap | 3,60 m² |
2. łazienka | 3,30 m² |
3. Schody | 4,00 m² |
4. Pokój | 8,60 m² |
5. Salon | 25,40 m² |
6. Kuchnia | 7,00 m² |
7. Spiżarnia | 1,10 m² |
8. Pom. techniczne co | 5,50 m² |
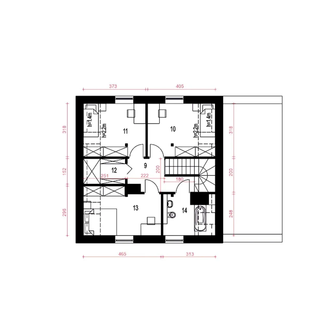
1. Hol | 5,90 (5,90) m² |
2. Pokój | 10,90 (12,80) m² |
3. Pokój | 9,90 (11,80) m² |
4. Garderoba | 2,90 (3,80) m² |
5. Pokój | 10,90 (12,70) m² |
6. łazienka | 5,60 (6,90) m² |
Wypełnij formularz i otrzymaj rysunki w pdf z dokładnymi wymiarami budynku i pomieszczeń (długość, szerokość, wysokość) dla projektu Daktyl II bez garażu B
Pow. użytkowa 99.1 m² |
Ilość pokoi 5 |
Powierzchnia zabudowy 76.2 m² |
Kondygnacje parterowy+poddasze |
Garaż bez garażu |
Technologia murowany |
Szerokość działki 16.9 m |
Obiekt dom |
Typ domu jednorodzinny całoroczny |
Styl budynku nowoczesny |
Liczba łazieniek 2 |
Kąt nachylenia dachu 45 ° |
Szerokość budynku 8.9 m |
Kominek kominek w projekcie |
Strop gęstożebrowy |
Długość budynku 8.9 m |
Rodzaj dachu dwuspadowy |
Piwnica bez podpiwniczenia |
Kalenica równoległa do drogi |
Powierzchnia dachu 109.5 m² |
Przechowywanie w kuchni spiżarnia |
Wysokość budynku 9.2 m |
Długość działki 16.9 m |
Bryła budynku prosta bryła |
Koszty budowy 300-350 tys., tylko z kosztorysem |
Pow. użytkowa 99.1 m² |
Powierzchnia zabudowy 76.2 m² |
Garaż bez garażu |
Szerokość działki 16.9 m |
Typ domu jednorodzinny całoroczny |
Liczba łazieniek 2 |
Szerokość budynku 8.9 m |
Strop gęstożebrowy |
Rodzaj dachu dwuspadowy |
Kalenica równoległa do drogi |
Przechowywanie w kuchni spiżarnia |
Długość działki 16.9 m |
Koszty budowy 300-350 tys., tylko z kosztorysem |
Ilość pokoi 5 |
Kondygnacje parterowy+poddasze |
Technologia murowany |
Obiekt dom |
Styl budynku nowoczesny |
Kąt nachylenia dachu 45 ° |
Kominek kominek w projekcie |
Długość budynku 8.9 m |
Piwnica bez podpiwniczenia |
Powierzchnia dachu 109.5 m² |
Wysokość budynku 9.2 m |
Bryła budynku prosta bryła |
Kupując projekt w technologii murowanej powinieneś budować dom murowany. Zupełna zmiana technologii na szkieletową wymaga przeprojektowania całego budynku ( zmieniają się obciążenia, fundamenty, konstrukcja dachu). Wydamy zgodę na takie przeprojektowanie jednak wiążę się to z dużymi kosztami. Istnieją firmy wykonawcze, które podejmują się zmiany technologii budowy bezpłatnie przy skorzystaniu z ich usług wykonawczych. Zdarza się, że pracownia architektoniczna przygotowuje warianty konkretnego projektu przewidując także inne technologie. Prosimy o sprawdzenie czy istnieje poszukiwana wersja projektu, w zakładce - warianty projektu.
Zwężenie/poszerzenie budynku* to nic innego jak zmiana w projekcie. Istnieje możliwość wprowadzenia takich zmian, we własnym zakresie (podczas adaptacji). *zwężenie/poszerzenie budynku nie powinno stanowić problemu w przypadku domów o dachu dwuspadowym jeśli wiąże się to z wydłużeniem/skróceniem kalenicy dachu.
Poznaj praktyczne porady ekspertów, które ułatwią Ci każdy etap budowy i od wyboru wymarzonego domu po jego wykończenie. Zyskaj pewność, że podejmujesz najlepsze decyzje dzięki sprawdzonym wskazówkom od specjalistów z planz.pl
Wycena szacunkowa, w kwotach netto, nie zawiera instalacji.
bezpłatnie (0zł)
przelew zwykły / PayNow
przy odbiorze
3-5 dni roboczych (jeśli projekt nie jest koncepcją)
Wybierz wygodny dla Ciebie czas kontaktu z naszym Doradcą Technicznym.