Gotowy projekt domu D445 - WT2021 wersja drewniana (ID: 35056)
D445 - WT2021 wersja drewniana
5000
2026-01-24
Możliwy dłuzszy czas realizacji
Gwarantujemy najniższą cenę
D445 - WT2021 wersja drewniana - 133.1m²
Możliwy dłuzszy czas realizacji
Gwarantujemy najniższą cenę
5000 zł
W cenie projektu:
📣 GRATIS: WIERTARKA UDAROWA
- Tablica + dziennik budowy
- 16 projektów ogrodowych
- Darmowa wysyłka (kurier, paczkomat, pobranie)
- 30 dni na zwrot
- Pozwolenie na zmiany z podpisem i pieczęcią autora
- GRATIS: Wiertarka Udarowa
22 299 20 00 (pn-nd 9.30 do 19.30)
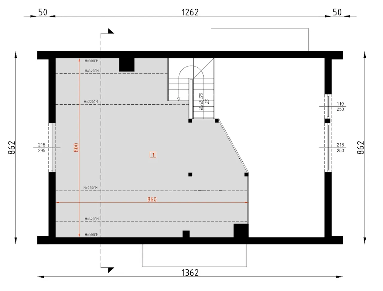
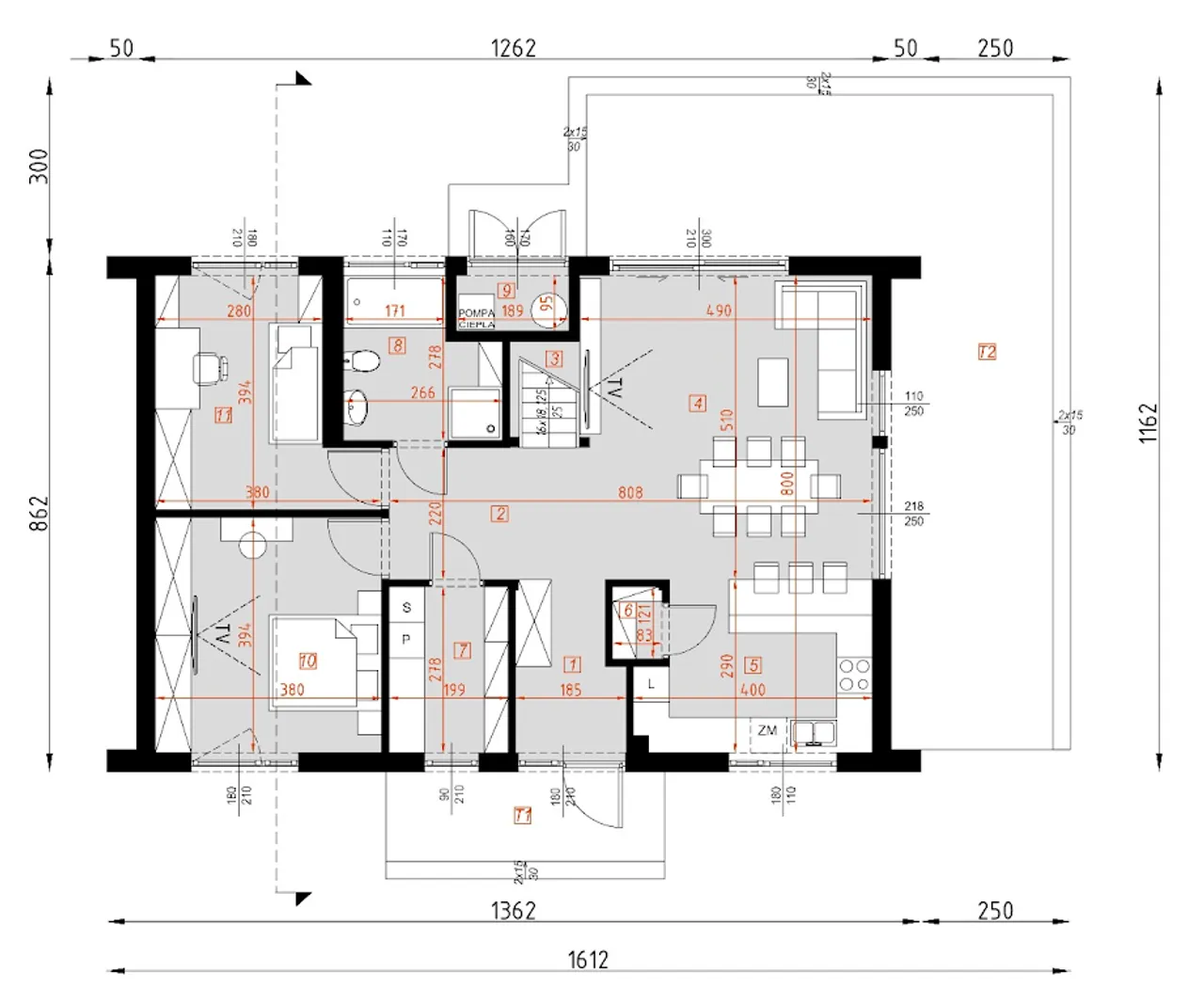
Rzuty gotowego projektu domu D445 - WT2021 wersja drewniana
Zapoznaj się ze szczegółami projektu - zamów bezpłatne rysunki do: D445 - WT2021 wersja drewniana
Wypełnij formularz i otrzymaj na podany adres e-mail rysunki w pdf z dokładnymi wymiarami budynku i pomieszczeń (długość, szerokość, wysokość) dla projektu D445 - WT2021 wersja drewniana
Parametry Techniczne gotowego projektu domu D445 - WT2021 wersja drewniana
| Pow. użytkowa 133.1 m² |
| Powierzchnia zabudowy 109.52 m² |
| Kondygnacje parterowy |
| Garaż bez garażu |
| Technologia szkielet/drewniany |
| Szerokość działki 20.62 m |
| Obiekt dom |
| Typ domu jednorodzinny całoroczny |
| Długość działki 16.62 m |
| Kąt nachylenia dachu 30 ° |
| Rodzaj dachu dwuspadowy |
| Kubatura 597.6 m³ |
| Kominek kominek opcjonalnie |
| Wysokość budynku 7.02 m |
| Piwnica bez podpiwniczenia |
| Styl budynku nowoczesny |
| Kalenica równoległa do drogi |
| Pow. użytkowa 133.1 m² |
| Kondygnacje parterowy |
| Technologia szkielet/drewniany |
| Obiekt dom |
| Długość działki 16.62 m |
| Rodzaj dachu dwuspadowy |
| Kominek kominek opcjonalnie |
| Piwnica bez podpiwniczenia |
| Kalenica równoległa do drogi |
| Powierzchnia zabudowy 109.52 m² |
| Garaż bez garażu |
| Szerokość działki 20.62 m |
| Typ domu jednorodzinny całoroczny |
| Kąt nachylenia dachu 30 ° |
| Kubatura 597.6 m³ |
| Wysokość budynku 7.02 m |
| Styl budynku nowoczesny |
Nasze prawdziwe opinie z Google
Opis projektu domu D445 - WT2021 wersja drewniana
Technologia wykonania:
- Ściany zewnętrzne: drewniane z ociepleniem.
- Konstrukcja dachu: krokwiowa.
- Strop: drewniany pokrycie dachu: blacha stalowa łączona na rąbek.
- Elewacja: deskowanie, panele elewacyjne imitujące drewno.
- Ogrzewanie: pompa ciepła EP70 kWh/m2.rok.
- Projekt zgodny z WT2021.
Dodatki do projektu D445 - WT2021 wersja drewniana
Dodatki możesz kupić razem z projektem lub dokupić po czasie
[Artinex] Dodatkowy egzemplarz projektu domu (490 zł)
Wersja projektu przydatna do nanoszenia zmian w programie komputerowym. Dodatkowy egzemplarz projektu ułatwia pracę architektowi adaptującemu. Dodatkowy egzemplarz projektu można przekazać jednocześnie kilku fachowcom.
[Artinex]Projekt wentylacji mechanicznej z rekuperacją (890 zł)
System wentylacji mechanicznej z rekuperacją to innowacyjne rozwiązanie, które zastępuje tradycyjną wentylację. Rekuperator pozwala na odzyskiwanie ciepła z powietrza wywiewanego, wykorzystując je do ogrzewania powietrza nawiewanego. Dzięki temu system zapewnia nie tylko stałe dostawy świeżego powietrza, ale także jego filtrację, oczyszczając z kurzu i pyłów, co gwarantuje czystość i odpowiedni poziom nawilżenia powietrza.
Podsumowując, wentylacja mechaniczna z rekuperacją oferuje wiele korzyści. Podnosi standard domu, jest korzystniejsza dla zdrowia i samopoczucia mieszkańców niż tradycyjna wentylacja grawitacyjna. Zwiększa energooszczędność budynku, działa niezależnie od warunków atmosferycznych, co przekłada się na większą wydajność i brak strat ciepła, a także pozytywnie wpływa na rachunki za ogrzewanie. Ważne jest, by pamiętać, że instalacja tego typu systemu może wymagać dokonania zmian w projekcie domu.
[Artinex] Szczegółowy kosztorys Inwestorski dom (990 zł)
Aktualny kosztorys do projektu domu.
[Artinex] Projekt ogrzewania powietrzną pompą ciepła + ogrzewanie podłogowe (1890 zł)
Ogrzewanie podłogowe to nowoczesna i oszczędna metoda ogrzewania, która zyskuje na popularności jako główny system grzewczy lub jako uzupełnienie tradycyjnych grzejników. Ta forma ogrzewania oferuje wiele zalet: zapewnia równomierne ogrzewanie całego pomieszczenia, generuje niższe koszty eksploatacyjne, a brak kaloryferów zwiększa dostępną powierzchnię użytkową, co sprawia, że jest przyjazna dla alergików. Ciepło jest utrzymywane przy podłodze, co sprawia, że dom jest bardziej komfortowy, szczególnie dla dzieci.
System ten idealnie współgra z pompą ciepła, nowoczesnym urządzeniem grzewczym wykorzystującym energię z ziemi, powietrza i wody. Pompę ciepła cechuje niskotemperaturowa praca, co sprawia, że jest bezpieczna, ekologiczna, a jej eksploatacja jest tańsza niż ogrzewanie na paliwo stałe czy gaz. Wysoka efektywność i kompatybilność z ogrzewaniem podłogowym czynią tę kombinację szczególnie polecany wybór dla nowoczesnych domów.
[Artinex] Projekt ogrzewania podłogowego (790 zł)
Ogrzewanie podłogowe doskonale funkcjonuje jako główny system grzewczy lub jako uzupełnienie tradycyjnych grzejników. Oferuje równomierne ogrzewanie całego pomieszczenia, co przekłada się na niższe koszty eksploatacyjne. Brak kaloryferów zwiększa dostępną przestrzeń użytkową, co jest dodatkowym atutem. Ogrzewanie podłogowe jest także przyjazne dla alergików. Zapewnia, że podłoga i powietrze przy niej są ciepłe, co czyni dom bardziej komfortowym dla dzieci. Warto pamiętać, że instalacja tego systemu może wymagać modyfikacji projektu domu.
[Artinex] Projekt instalacji solarnej (990 zł)
Projekt instalacji solarnej do ciepłej wody.
Projekt instalacji solarnej ma na celu zmniejszenie zużycia energii nieodnawialnej, co przekłada się na poprawę charakterystyki energetycznej budynku. Jest to krok w kierunku zwiększenia efektywności energetycznej oraz promowania zrównoważonego rozwoju.
Projekt ten szczegółowo opisuje różne komponenty i aspekty systemu solarnego. Zawiera opis techniczny instalacji, który obejmuje zarówno ogólne zasady działania, jak i specyfikacje techniczne. W projekcie znajduje się również lista urządzeń potrzebnych do montażu i funkcjonowania systemu, wraz z ich dokładnymi specyfikacjami. Schemat technologiczny przedstawia wizualizację układu oraz sposób połączenia poszczególnych elementów systemu.
Kluczowym elementem dokumentacji jest rozmieszczenie kolektorów słonecznych. Projekt określa optymalne umiejscowienie tych urządzeń, aby maksymalizować ich efektywność. Zawiera również dokładny opis sposobu mocowania kolektorów
[Artinex] Zamienna charakterystyka energetyczna (880 zł)
Zamienna charakterystyka energetyczna przy zamiennym rozwiązaniu ogrzewania lub zmian w projekcie
[Artinex] Projekt instalacji fotowoltaicznej (1590 zł)
Systemy fotowoltaiczne są niezwykle uniwersalne, lecz każda instalacja wymaga indywidualnego podejścia, aby osiągnąć maksymalną wydajność. Kluczowe jest dostosowanie systemu do specyficznych warunków panujących w miejscu montażu oraz przestrzeganie najlepszych praktyk instalacyjnych.
Dokumentacją, która definiuje te szczegółowe zasady, jest projekt instalacji fotowoltaicznej. Projekt ten zawiera kompleksowe informacje niezbędne do prawidłowej instalacji i optymalizacji pracy systemu PV. Zawiera analizę lokalizacji, ocenę dostępności światła słonecznego oraz inne czynniki środowiskowe, które mogą wpływać na wydajność paneli słonecznych.
Projekt instalacji fotowoltaicznej obejmuje także szczegółowe schematy montażu, specyfikację techniczną urządzeń oraz zalecenia dotyczące bezpiecznego i efektywnego połączenia komponentów. Jest to fundament dla instalatorów, umożliwiający wykonanie pracy zgodnie z obowiązującymi normami i zapewnienie, że system będzie działał na najwyższym poziomie wydajności.
[Artinex] Projekt ogrzewanie kominkiem z komorą powietrzną (2490 zł)
Projekt ogrzewanie kominkiem z komorą powietrzną na pelet + zasobnik na pelet z automatycznym podajnikiem + ogrzewanie powietrzne kanałowe
[Artinex] Szczegółowy Kosztorys Inwestorski garaż (690 zł)
Aktualny kosztorys do projektu garażu.
[Artinex] Dodatkowy egzemplarz projektu garażu (390 zł)
Dodatkowy egzemplarz projektu garażu.
[Artinex] Projekt płyty fundamentowej (1180 zł)
Projekt płyty fundamentowej. Cena może ulec zmianie w zależności od warunków gruntowych (w przypadku, gdyby płyta miała być dostosowana do warunków gruntowych danej działki)
[Artinex] Projekt instalacji inteligentnych (2290 zł)
Projekt instalacji inteligentnych to nowoczesne podejście do zarządzania domem. Dzięki zaawansowanym systemom sterowania, instalacje te umożliwiają automatyzację oświetlenia, ogrzewania, wentylacji czy systemów bezpieczeństwa. Dzięki dopasowaniu do indywidualnych potrzeb użytkownika zwiększają funkcjonalność przestrzeni, jednocześnie wspierając ekologiczne rozwiązania i optymalizację kosztów eksploatacji.
[Planz] Tablica budowlana (0 zł)
Decydując się na zakup projektu domu w planz.pl, każdy nasz klient otrzyma wyjątkowy bonus, elastyczną i odporną na warunki atmosferyczne tablicę budowlaną o wymiarach 90x70 cm. Ta praktyczna tablica jest niezbędnym elementem na każdym placu budowy. Dzięki swojej elastyczności i odporności, tablica ta stanie się trwałym i widocznym punktem orientacyjnym dla ekipy budowlanej oraz inspektorów. Wybierz planz.pl i ciesz się nie tylko profesjonalnym projektem, ale i dodatkami, które ułatwią realizację Twojej budowy.
[Planz] Dziennik budowy (0 zł)
Przy zakupie projektu domu na planz.pl otrzymasz dziennik budowy gratis – niezbędny dokument urzędowy, który szczegółowo rejestruje przebieg prac budowlanych. Jest on wymagany przez Prawo Budowlane i służy nie tylko do porządkowania procesu budowy, ale również jako dowód w ewentualnych sporach. Dziennik w formacie A4 z ponumerowanymi stronami ułatwia chronologiczne dokonywanie wpisów. Każdy egzemplarz posiada unikatowy numer i jest urzędowo rejestrowany. Nasz dziennik budowy jest do tego atrakcyjny wizualnie, w twardej okładce.
[Planz] Wiertarka udarowa (0 zł)
Wybierając projekt domu na planz.pl, otrzymasz praktyczny prezent. Dla każdego, kto zdecyduje się na zakup projektu o wartości przekraczającej 3000 zł, przygotowaliśmy specjalny bonus: wiertarkę gratis! To doskonałe narzędzie, które z pewnością przyda się podczas prac wykończeniowych lub drobnych napraw w nowym domu.
[Planz] Zgoda na zmiany w projekcie (0 zł)
Do każdego projektu załączamy zgodę na podstawowe zmiany (np. rodzaj i umiejscowienie okien i drzwi, przestawienie ścian działowych, zmiana materiałów wykończeniowych). Rozszerzona zgoda na zmiany jest również bezpłatna, szczegółowy zakres dodatkowych zmian w projekcie prosimy podać na formularzu zamówienia, w polu komentarz. GRATIS!!!
[Planz] Projekty architektury ogrodowej (0 zł)
16 gotowych projektów drewnianej architektury ogrodowej w wersji elektronicznej. Wśród nich:
Altana 3x3m, Zadaszenie 2,34x1,2m (typ 1,typ 2, typ 3), Drewutnia 2,78x1,44 m, Domek ogrodowy 2,78x1,44 m, Garaż Jodła 6,01x3,76 m, Garaż, Sosna 6,01x6,27 m, Ambona myśliwska (typ 1,typ 2), Wiata Grillowa 5x5 m, Wiata Grillowa 6x4 m, Brama (typ 1, typ 2, typ 3), Szoposzklarnia.
Cena: 0zł
[Planz] Charakterystyka energetyczna, tylko dla domów całorocznych (0 zł)
Dotyczy tylko projektów domów całorocznych. Charakterystyka energetyczna w projekcie domu, znana również jako świadectwo charakterystyki energetycznej lub certyfikat energetyczny, to dokument oceniający efektywność energetyczną budynku. Określa ona, ile energii (na ogrzewanie, wentylację, ciepłą wodę użytkową i oświetlenie) będzie potrzebował dany budynek do prawidłowego funkcjonowania w standardowych warunkach użytkowania. Charakterystyka ta jest wyrażana w kWh na metr kwadratowy powierzchni użytkowej budynku na rok (kWh/(m²·rok)).
Opracowanie charakterystyki energetycznej jest wymagane, zarówno dla nowo budowanych domów, jak i przy sprzedaży nieruchomości.
Wysyłka i płatność za projekt D445 - WT2021 wersja drewniana
Koszty wysyłki
bezpłatnie (0zł)
Formy płatności
przelew zwykły / PayNow
przy odbiorze
Czas oczekiwania
3-5 dni roboczych (jeśli projekt nie wymaga aktualizacji)
Projekt w kategoriach
PRACOWNIA:
Artinex
Zamów rozmowę
Wybierz wygodny dla Ciebie czas kontaktu z naszym Doradcą Technicznym.
parterowy
bez garażu
szkielet/drewniany
[Artinex]Projekt wentylacji mechanicznej z rekuperacją (890 zł)
[Artinex] Projekt ogrzewania powietrzną pompą ciepła + ogrzewanie podłogowe (1890 zł)
[Artinex] Projekt instalacji solarnej (990 zł)
[Artinex] Szczegółowy Kosztorys Inwestorski garaż (690 zł)
[Artinex] Projekt płyty fundamentowej (1180 zł)
[Planz] Tablica budowlana (0 zł)
[Planz] Wiertarka udarowa (0 zł)
[Planz] Projekty architektury ogrodowej (0 zł)