D80 - Filip wersja drewniana



1. Hol | 6,21 m² |
2. Salon | 22,45 m² |
3. Kuchnia | 7,52 m² |
4. łazienka | 4,51 m² |
5. Pokój | 10,52 m² |
6. Schody | 2,22 m² |
7. Pom. techniczne | 1,21 m² |
8. Taras 1 | 3,76 m² |
9. Taras 2 | 17,96 m² |
10. Taras 3 | 5,32 m² |
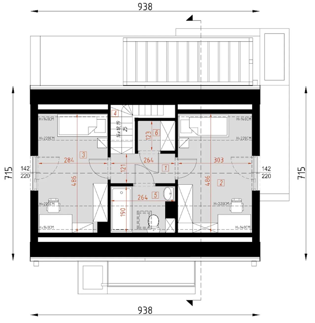
1. Korytarz | 3,20 m² |
2. Pokój | 11,01 m² |
3. Pokój | 10,28 m² |
4. Schody | 1,12 m² |
5. łazienka | 3,24 m² |
6. Schowek | 1,25 m² |
Wypełnij formularz i otrzymaj rysunki w pdf z dokładnymi wymiarami budynku i pomieszczeń (długość, szerokość, wysokość) dla projektu D335 - WT2021
Pow. użytkowa 83.53 m² |
Powierzchnia zabudowy 67.09 m² |
Kondygnacje parterowy+poddasze |
Garaż bez garażu |
Technologia szkielet/drewniany |
Szerokość działki 17.38 m |
Obiekt dom |
Typ domu jednorodzinny całoroczny |
Kąt nachylenia dachu 40 ° |
Rodzaj dachu dwuspadowy |
Kubatura 379 m³ |
Kominek kominek w projekcie |
Wysokość budynku 7.1 m |
Piwnica bez podpiwniczenia |
Bryła budynku prosta bryła |
Kalenica równoległa do drogi |
Styl budynku nowoczesny |
Długość działki 15.15 m |
Koszty budowy tylko z kosztorysem, 200-250 tys. |
Pow. użytkowa 83.53 m² |
Kondygnacje parterowy+poddasze |
Technologia szkielet/drewniany |
Obiekt dom |
Kąt nachylenia dachu 40 ° |
Kubatura 379 m³ |
Wysokość budynku 7.1 m |
Bryła budynku prosta bryła |
Styl budynku nowoczesny |
Koszty budowy tylko z kosztorysem, 200-250 tys. |
Powierzchnia zabudowy 67.09 m² |
Garaż bez garażu |
Szerokość działki 17.38 m |
Typ domu jednorodzinny całoroczny |
Rodzaj dachu dwuspadowy |
Kominek kominek w projekcie |
Piwnica bez podpiwniczenia |
Kalenica równoległa do drogi |
Długość działki 15.15 m |
Kupując projekt w technologii murowanej powinieneś budować dom murowany. Zupełna zmiana technologii na szkieletową wymaga przeprojektowania całego budynku ( zmieniają się obciążenia, fundamenty, konstrukcja dachu). Wydamy zgodę na takie przeprojektowanie jednak wiążę się to z dużymi kosztami. Istnieją firmy wykonawcze, które podejmują się zmiany technologii budowy bezpłatnie przy skorzystaniu z ich usług wykonawczych. Zdarza się, że pracownia architektoniczna przygotowuje warianty konkretnego projektu przewidując także inne technologie. Prosimy o sprawdzenie czy istnieje poszukiwana wersja projektu, w zakładce - warianty projektu.
Zwężenie/poszerzenie budynku* to nic innego jak zmiana w projekcie. Istnieje możliwość wprowadzenia takich zmian, we własnym zakresie (podczas adaptacji). *zwężenie/poszerzenie budynku nie powinno stanowić problemu w przypadku domów o dachu dwuspadowym jeśli wiąże się to z wydłużeniem/skróceniem kalenicy dachu.
Poznaj praktyczne porady ekspertów, które ułatwią Ci każdy etap budowy i od wyboru wymarzonego domu po jego wykończenie. Zyskaj pewność, że podejmujesz najlepsze decyzje dzięki sprawdzonym wskazówkom od specjalistów z planz.pl
Wycena szacunkowa, w kwotach netto, nie zawiera instalacji.
bezpłatnie (0zł)
przelew zwykły / PayNow
przy odbiorze
3-5 dni roboczych (jeśli projekt nie wymaga aktualizacji)
Wybierz wygodny dla Ciebie czas kontaktu z naszym Doradcą Technicznym.