D334B - WT2021



1. Wiatrołap | 1,93 m² |
2. Kuchnia | 4,84 m² |
3. Salon z jadalnią | 17,82 m² |
4. Hol | 6,25 m² |
5. Gabinet | 8,25 m² |
6. łazienka | 2,38 m² |
7. Schody | 1,17 m² |
8. Pom. gospodarcze | 2,70 m² |
9. Garaż | 16,14 m² |
10. Taras | 13,11 m² |
11. Taras | 16,77 m² |
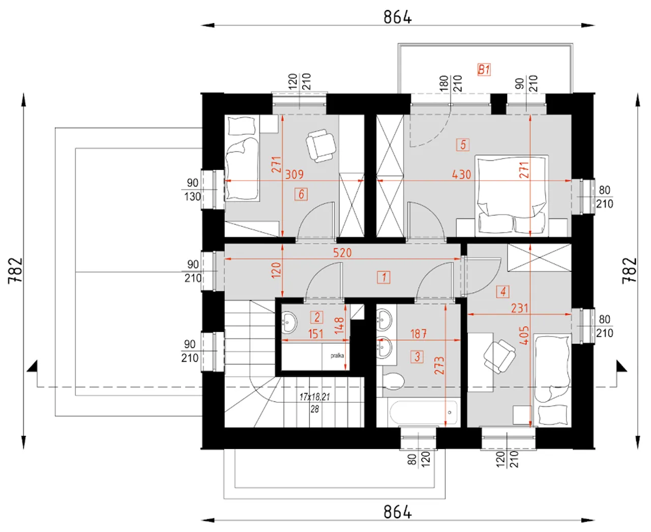
1. Korytarz | 6,19 m² |
2. Pralnia | 2,31 m² |
3. łazienka | 5,01 m² |
4. Pokój | 9,22 m² |
5. Pokój | 11,50 m² |
6. Pokój | 8,25 m² |
7. Balkon | 4,22 m² |
Wypełnij formularz i otrzymaj rysunki w pdf z dokładnymi wymiarami budynku i pomieszczeń (długość, szerokość, wysokość) dla projektu D334A - WT2021
Ilość pokoi 5 |
Pow. użytkowa 82.81 m² |
Powierzchnia zabudowy 87.1 m² |
Kondygnacje piętrowy |
Garaż 1 stanowisko |
Technologia murowany |
Szerokość działki 18.84 m |
Obiekt dom |
Typ domu jednorodzinny całoroczny |
Funkcje dodatkowe z pralnią |
Kubatura 552.1 m³ |
Rodzaj garażu przyklejony |
Powierzchnia dachu 92.4 m² |
Rodzaj dachu dwuspadowy |
Długość działki 15.82 m |
Wysokość budynku 8 m |
Bryła budynku prosta bryła |
Liczba łazieniek 2 |
Styl budynku nowoczesny |
Kominek kominek opcjonalnie |
Szerokość budynku 11.84 m |
Taras z tarasem |
Kąt nachylenia dachu 20 ° |
Kalenica prostopadła do drogi |
Długość budynku 7.82 m |
Piwnica bez podpiwniczenia |
Koszty budowy tylko z kosztorysem, 200-250 tys. |
Ilość pokoi 5 |
Powierzchnia zabudowy 87.1 m² |
Garaż 1 stanowisko |
Szerokość działki 18.84 m |
Typ domu jednorodzinny całoroczny |
Kubatura 552.1 m³ |
Powierzchnia dachu 92.4 m² |
Długość działki 15.82 m |
Bryła budynku prosta bryła |
Styl budynku nowoczesny |
Szerokość budynku 11.84 m |
Kąt nachylenia dachu 20 ° |
Długość budynku 7.82 m |
Koszty budowy tylko z kosztorysem, 200-250 tys. |
Pow. użytkowa 82.81 m² |
Kondygnacje piętrowy |
Technologia murowany |
Obiekt dom |
Funkcje dodatkowe z pralnią |
Rodzaj garażu przyklejony |
Rodzaj dachu dwuspadowy |
Wysokość budynku 8 m |
Liczba łazieniek 2 |
Kominek kominek opcjonalnie |
Taras z tarasem |
Kalenica prostopadła do drogi |
Piwnica bez podpiwniczenia |
Kupując projekt w technologii murowanej powinieneś budować dom murowany. Zupełna zmiana technologii na szkieletową wymaga przeprojektowania całego budynku ( zmieniają się obciążenia, fundamenty, konstrukcja dachu). Wydamy zgodę na takie przeprojektowanie jednak wiążę się to z dużymi kosztami. Istnieją firmy wykonawcze, które podejmują się zmiany technologii budowy bezpłatnie przy skorzystaniu z ich usług wykonawczych. Zdarza się, że pracownia architektoniczna przygotowuje warianty konkretnego projektu przewidując także inne technologie. Prosimy o sprawdzenie czy istnieje poszukiwana wersja projektu, w zakładce - warianty projektu.
Zwężenie/poszerzenie budynku* to nic innego jak zmiana w projekcie. Istnieje możliwość wprowadzenia takich zmian, we własnym zakresie (podczas adaptacji). *zwężenie/poszerzenie budynku nie powinno stanowić problemu w przypadku domów o dachu dwuspadowym jeśli wiąże się to z wydłużeniem/skróceniem kalenicy dachu.
Poznaj praktyczne porady ekspertów, które ułatwią Ci każdy etap budowy i od wyboru wymarzonego domu po jego wykończenie. Zyskaj pewność, że podejmujesz najlepsze decyzje dzięki sprawdzonym wskazówkom od specjalistów z planz.pl
Wycena szacunkowa, w kwotach netto, nie zawiera instalacji.
bezpłatnie (0zł)
przelew zwykły / PayNow
przy odbiorze
3-5 dni roboczych (jeśli projekt nie wymaga aktualizacji)
Wybierz wygodny dla Ciebie czas kontaktu z naszym Doradcą Technicznym.