TK2GP1



1. Wiatrołap | 3,00 m² |
2. Hall | 5,76 m² |
3. łazienka | 4,20 m² |
4. Pokój | 10,98 m² |
5. Salon / jadalnia | 20,45 m² |
6. Kuchnia | 5,83 m² |
7. Spiżarnia | 1,05 m² |
8. Pom. techniczne | 3,71 m² |
9. Garaż | 28,00 m² |
10. Schody | 2,13 m² |
11. Taras | 7,20 m² |
12. Taras | 11,95 m² |
13. Taras | 5,00 m² |
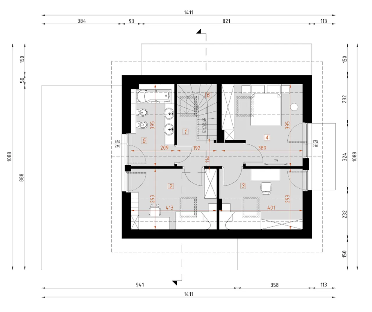
1. Korytarz | 4,89 m² |
2. Pokój | 8,20 (11,94) m² |
3. Pokój | 7,98 (11,67) m² |
4. Pokój | 10,30 (13,91) m² |
5. łazienka | 6,31 (8,25) m² |
6. Schody | 4,51 m² |
7. Balkon | 3,66 m² |
Wypełnij formularz i otrzymaj rysunki w pdf z dokładnymi wymiarami budynku i pomieszczeń (długość, szerokość, wysokość) dla projektu D306 - WT2021
Pow. użytkowa 95.59 m² |
Ilość pokoi 5 |
Powierzchnia zabudowy 111.02 m² |
Kondygnacje parterowy+poddasze |
Garaż 1 stanowisko |
Technologia murowany |
Szerokość działki 21.11 m |
Obiekt dom |
Typ domu jednorodzinny całoroczny |
Strop żelbetowy |
Kubatura 593.72 m³ |
Rodzaj dachu dwuspadowy |
Kalenica równoległa do drogi |
Wysokość budynku 7.38 m |
Przechowywanie w kuchni spiżarnia |
Długość działki 17.48 m |
Bryła budynku prosta bryła |
Funkcje dodatkowe z wykuszem |
Styl budynku nowoczesny |
Liczba łazieniek 2 |
Kominek kominek w projekcie |
Kąt nachylenia dachu 37 ° |
Szerokość budynku 14.11 m |
Taras z tarasem |
Długość budynku 9.48 m |
Rodzaj garażu przyklejony |
Piwnica bez podpiwniczenia |
Koszty budowy tylko z kosztorysem, 200-250 tys. |
Pow. użytkowa 95.59 m² |
Powierzchnia zabudowy 111.02 m² |
Garaż 1 stanowisko |
Szerokość działki 21.11 m |
Typ domu jednorodzinny całoroczny |
Kubatura 593.72 m³ |
Kalenica równoległa do drogi |
Przechowywanie w kuchni spiżarnia |
Bryła budynku prosta bryła |
Styl budynku nowoczesny |
Kominek kominek w projekcie |
Szerokość budynku 14.11 m |
Długość budynku 9.48 m |
Piwnica bez podpiwniczenia |
Ilość pokoi 5 |
Kondygnacje parterowy+poddasze |
Technologia murowany |
Obiekt dom |
Strop żelbetowy |
Rodzaj dachu dwuspadowy |
Wysokość budynku 7.38 m |
Długość działki 17.48 m |
Funkcje dodatkowe z wykuszem |
Liczba łazieniek 2 |
Kąt nachylenia dachu 37 ° |
Taras z tarasem |
Rodzaj garażu przyklejony |
Koszty budowy tylko z kosztorysem, 200-250 tys. |
Kupując projekt w technologii murowanej powinieneś budować dom murowany. Zupełna zmiana technologii na szkieletową wymaga przeprojektowania całego budynku ( zmieniają się obciążenia, fundamenty, konstrukcja dachu). Wydamy zgodę na takie przeprojektowanie jednak wiążę się to z dużymi kosztami. Istnieją firmy wykonawcze, które podejmują się zmiany technologii budowy bezpłatnie przy skorzystaniu z ich usług wykonawczych. Zdarza się, że pracownia architektoniczna przygotowuje warianty konkretnego projektu przewidując także inne technologie. Prosimy o sprawdzenie czy istnieje poszukiwana wersja projektu, w zakładce - warianty projektu.
Zwężenie/poszerzenie budynku* to nic innego jak zmiana w projekcie. Istnieje możliwość wprowadzenia takich zmian, we własnym zakresie (podczas adaptacji). *zwężenie/poszerzenie budynku nie powinno stanowić problemu w przypadku domów o dachu dwuspadowym jeśli wiąże się to z wydłużeniem/skróceniem kalenicy dachu.
Poznaj praktyczne porady ekspertów, które ułatwią Ci każdy etap budowy i od wyboru wymarzonego domu po jego wykończenie. Zyskaj pewność, że podejmujesz najlepsze decyzje dzięki sprawdzonym wskazówkom od specjalistów z planz.pl
Wycena szacunkowa, w kwotach netto, nie zawiera instalacji.
bezpłatnie (0zł)
przelew zwykły / PayNow
przy odbiorze
3-5 dni roboczych (jeśli projekt nie wymaga aktualizacji)
Wybierz wygodny dla Ciebie czas kontaktu z naszym Doradcą Technicznym.