D85 - Jarosław



1. Wiatrołap | 2,72 m² |
2. Hol | 1,86 m² |
3. Pokój | 10,31 m² |
4. łazienka | 4,57 m² |
5. Kuchnia | 5,42 m² |
6. Salon + jadalnia | 13,05 m² |
7. Schody | 1,77 m² |
8. Pom. techniczne | 3,74 m² |
9. Garaż | 21,52 m² |
10. Taras | 7,89 m² |
11. Taras | 30,21 m² |
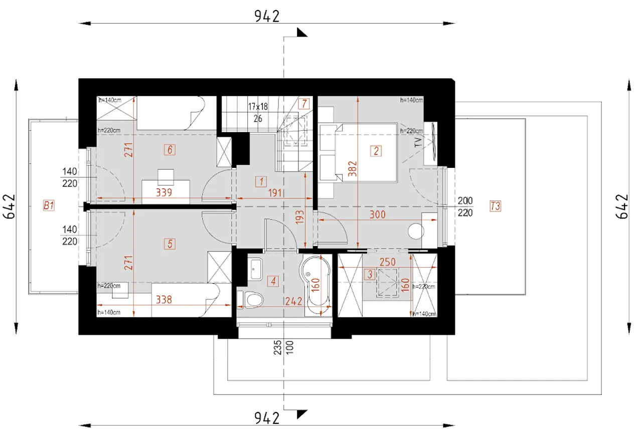
1. Korytarz | 4,43 m² |
2. Pokój | 9,90 (11,22) m² |
3. Garderoba | 2,90 (3,99) m² |
4. łazienka | 3,63 m² |
5. Pokój | 7,68 (9,18) m² |
6. Pokój | 7,37 (8,79) m² |
7. Schody | 2,00 m² |
8. Balkon | 5,01 m² |
9. Taras | 7,67 m² |
Wypełnij formularz i otrzymaj rysunki w pdf z dokładnymi wymiarami budynku i pomieszczeń (długość, szerokość, wysokość) dla projektu D304 - WT2021
Ilość pokoi 5 |
Pow. użytkowa 77.61 m² |
Powierzchnia zabudowy 88.29 m² |
Kondygnacje parterowy+poddasze |
Garaż 1 stanowisko |
Technologia murowany |
Szerokość działki 20.08 m |
Obiekt dom |
Typ domu jednorodzinny całoroczny |
Długość budynku 7.92 m |
Piwnica bez podpiwniczenia |
Funkcje dodatkowe z lukarnami |
Kubatura 423.23 m³ |
Rodzaj garażu przyklejony |
Powierzchnia dachu 79.12 m² |
Rodzaj dachu dwuspadowy |
Długość działki 15.92 m |
Wysokość budynku 7.58 m |
Bryła budynku prosta bryła |
Liczba łazieniek 2 |
Styl budynku nowoczesny |
Kominek kominek w projekcie |
Strop żelbetowy |
Szerokość budynku 13.08 m |
Taras z tarasem |
Kąt nachylenia dachu 40 ° |
Kalenica równoległa do drogi |
Koszty budowy tylko z kosztorysem, 150-200 tys. |
Ilość pokoi 5 |
Powierzchnia zabudowy 88.29 m² |
Garaż 1 stanowisko |
Szerokość działki 20.08 m |
Typ domu jednorodzinny całoroczny |
Piwnica bez podpiwniczenia |
Kubatura 423.23 m³ |
Powierzchnia dachu 79.12 m² |
Długość działki 15.92 m |
Bryła budynku prosta bryła |
Styl budynku nowoczesny |
Strop żelbetowy |
Taras z tarasem |
Kalenica równoległa do drogi |
Pow. użytkowa 77.61 m² |
Kondygnacje parterowy+poddasze |
Technologia murowany |
Obiekt dom |
Długość budynku 7.92 m |
Funkcje dodatkowe z lukarnami |
Rodzaj garażu przyklejony |
Rodzaj dachu dwuspadowy |
Wysokość budynku 7.58 m |
Liczba łazieniek 2 |
Kominek kominek w projekcie |
Szerokość budynku 13.08 m |
Kąt nachylenia dachu 40 ° |
Koszty budowy tylko z kosztorysem, 150-200 tys. |
Kupując projekt w technologii murowanej powinieneś budować dom murowany. Zupełna zmiana technologii na szkieletową wymaga przeprojektowania całego budynku ( zmieniają się obciążenia, fundamenty, konstrukcja dachu). Wydamy zgodę na takie przeprojektowanie jednak wiążę się to z dużymi kosztami. Istnieją firmy wykonawcze, które podejmują się zmiany technologii budowy bezpłatnie przy skorzystaniu z ich usług wykonawczych. Zdarza się, że pracownia architektoniczna przygotowuje warianty konkretnego projektu przewidując także inne technologie. Prosimy o sprawdzenie czy istnieje poszukiwana wersja projektu, w zakładce - warianty projektu.
Zwężenie/poszerzenie budynku* to nic innego jak zmiana w projekcie. Istnieje możliwość wprowadzenia takich zmian, we własnym zakresie (podczas adaptacji). *zwężenie/poszerzenie budynku nie powinno stanowić problemu w przypadku domów o dachu dwuspadowym jeśli wiąże się to z wydłużeniem/skróceniem kalenicy dachu.
Poznaj praktyczne porady ekspertów, które ułatwią Ci każdy etap budowy i od wyboru wymarzonego domu po jego wykończenie. Zyskaj pewność, że podejmujesz najlepsze decyzje dzięki sprawdzonym wskazówkom od specjalistów z planz.pl
Wycena szacunkowa, w kwotach netto, nie zawiera instalacji.
bezpłatnie (0zł)
przelew zwykły / PayNow
przy odbiorze
3-5 dni roboczych (jeśli projekt nie wymaga aktualizacji)
Wybierz wygodny dla Ciebie czas kontaktu z naszym Doradcą Technicznym.