D298A - WT2021



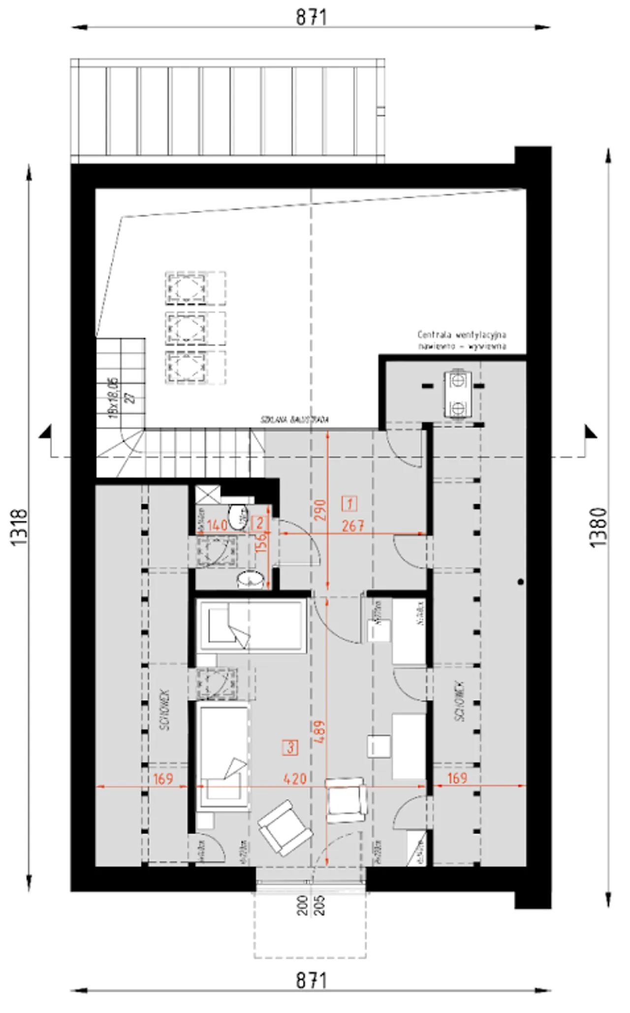
1. Hol | 11,77 m² |
2. Pokój | 10,81 m² |
3. Pokój | 12,87 m² |
4. Salon | 19,07 m² |
5. Schody | 1,22 m² |
6. Kuchnia + jadalnia | 13,19 m² |
7. Pom. techniczne | 0,74 m² |
8. Spiżarnia | 2,73 m² |
9. łazienka | 5,55 m² |
10. łazienka | 3,96 m² |
11. Gabinet | 8,14 m² |
12. Taras | 3,04 m² |
13. Taras | 24,08 m² |
Wypełnij formularz i otrzymaj rysunki w pdf z dokładnymi wymiarami budynku i pomieszczeń (długość, szerokość, wysokość) dla projektu D298B - WT2021
Ilość pokoi 5 |
Pow. użytkowa 112.78 m² |
Powierzchnia zabudowy 115.28 m² |
Kondygnacje parterowy+poddasze |
Garaż bez garażu |
Technologia murowany |
Szerokość działki 15.71 m |
Obiekt dom |
Typ domu jednorodzinny całoroczny |
Piwnica bez podpiwniczenia |
Kalenica prostopadła do drogi |
Kubatura 624.2 m³ |
Funkcje dodatkowe z antresolą |
Powierzchnia dachu 144.23 m² |
Rodzaj dachu dwuspadowy |
Długość działki 21.8 m |
Ogrzewanie pompa ciepła |
Wysokość budynku 7.26 m |
Liczba łazieniek 2 |
Bryła budynku prosta bryła |
Kominek kominek w projekcie |
Szerokość budynku 8.71 m |
Styl budynku nowoczesny |
Taras z tarasem |
Kąt nachylenia dachu 40 ° |
Strop drewniany |
Długość budynku 13.18 m |
Koszty budowy tylko z kosztorysem, 200-250 tys. |
Ilość pokoi 5 |
Powierzchnia zabudowy 115.28 m² |
Garaż bez garażu |
Szerokość działki 15.71 m |
Typ domu jednorodzinny całoroczny |
Kalenica prostopadła do drogi |
Funkcje dodatkowe z antresolą |
Rodzaj dachu dwuspadowy |
Ogrzewanie pompa ciepła |
Liczba łazieniek 2 |
Kominek kominek w projekcie |
Styl budynku nowoczesny |
Kąt nachylenia dachu 40 ° |
Długość budynku 13.18 m |
Pow. użytkowa 112.78 m² |
Kondygnacje parterowy+poddasze |
Technologia murowany |
Obiekt dom |
Piwnica bez podpiwniczenia |
Kubatura 624.2 m³ |
Powierzchnia dachu 144.23 m² |
Długość działki 21.8 m |
Wysokość budynku 7.26 m |
Bryła budynku prosta bryła |
Szerokość budynku 8.71 m |
Taras z tarasem |
Strop drewniany |
Koszty budowy tylko z kosztorysem, 200-250 tys. |
Kupując projekt w technologii murowanej powinieneś budować dom murowany. Zupełna zmiana technologii na szkieletową wymaga przeprojektowania całego budynku ( zmieniają się obciążenia, fundamenty, konstrukcja dachu). Wydamy zgodę na takie przeprojektowanie jednak wiążę się to z dużymi kosztami. Istnieją firmy wykonawcze, które podejmują się zmiany technologii budowy bezpłatnie przy skorzystaniu z ich usług wykonawczych. Zdarza się, że pracownia architektoniczna przygotowuje warianty konkretnego projektu przewidując także inne technologie. Prosimy o sprawdzenie czy istnieje poszukiwana wersja projektu, w zakładce - warianty projektu.
Zwężenie/poszerzenie budynku* to nic innego jak zmiana w projekcie. Istnieje możliwość wprowadzenia takich zmian, we własnym zakresie (podczas adaptacji). *zwężenie/poszerzenie budynku nie powinno stanowić problemu w przypadku domów o dachu dwuspadowym jeśli wiąże się to z wydłużeniem/skróceniem kalenicy dachu.
Poznaj praktyczne porady ekspertów, które ułatwią Ci każdy etap budowy i od wyboru wymarzonego domu po jego wykończenie. Zyskaj pewność, że podejmujesz najlepsze decyzje dzięki sprawdzonym wskazówkom od specjalistów z planz.pl
Wycena szacunkowa, w kwotach netto, nie zawiera instalacji.
bezpłatnie (0zł)
przelew zwykły / PayNow
przy odbiorze
3-5 dni roboczych (jeśli projekt nie wymaga aktualizacji)
Wybierz wygodny dla Ciebie czas kontaktu z naszym Doradcą Technicznym.