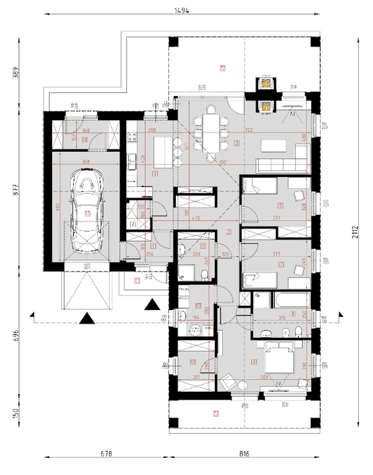
Tymek AP garaż



1. Wiatrołap | 4,10 m² |
2. Komunikacja | 14,01 m² |
3. Kuchnia | 10,53 m² |
4. Spiżarnia | 1,97 m² |
5. Salon + jadalnia | 32,31 m² |
6. Sypialnia | 10,97 m² |
7. Sypialnia | 11,02 m² |
8. łazienka | 7,54 m² |
9. Sypialnia | 17,11 m² |
10. Garderoba | 5,47 m² |
11. łazienka | 5,18 m² |
12. Pralnia + kotłownia | 5,33 m² |
13. Garaż | 21,79 m² |
14. Schowek gospodarczy | 5,61 m² |
15. Taras | 2,45 m² |
16. Taras | 36,50 m² |
17. Taras | 11,70 m² |
Wypełnij formularz i otrzymaj rysunki w pdf z dokładnymi wymiarami budynku i pomieszczeń (długość, szerokość, wysokość) dla projektu D293
Pow. użytkowa 120.21 m² |
Ilość pokoi 4 |
Powierzchnia zabudowy 193.21 m² |
Kondygnacje parterowy |
Garaż 1 stanowisko |
Technologia murowany |
Szerokość działki 21.94 m |
Obiekt dom |
Typ domu jednorodzinny całoroczny |
Piwnica bez podpiwniczenia |
Kalenica bez znaczenia |
Kubatura 944 m³ |
Rodzaj dachu dwuspadowy |
Wysokość budynku 6.12 m |
Przechowywanie w kuchni spiżarnia |
Długość działki 25.45 m |
Bryła budynku plan litery L |
Funkcje dodatkowe z pralnią |
Styl budynku nowoczesny |
Liczba łazieniek 2 |
Kominek kominek w projekcie |
Kąt nachylenia dachu 35 ° |
Szerokość budynku 14.94 m |
Taras z tarasem |
Strop drewniany |
Długość budynku 19.95 m |
Rodzaj garażu w bryle |
Koszty budowy 300-350 tys., tylko z kosztorysem |
Pow. użytkowa 120.21 m² |
Powierzchnia zabudowy 193.21 m² |
Garaż 1 stanowisko |
Szerokość działki 21.94 m |
Typ domu jednorodzinny całoroczny |
Kalenica bez znaczenia |
Rodzaj dachu dwuspadowy |
Przechowywanie w kuchni spiżarnia |
Bryła budynku plan litery L |
Styl budynku nowoczesny |
Kominek kominek w projekcie |
Szerokość budynku 14.94 m |
Strop drewniany |
Rodzaj garażu w bryle |
Ilość pokoi 4 |
Kondygnacje parterowy |
Technologia murowany |
Obiekt dom |
Piwnica bez podpiwniczenia |
Kubatura 944 m³ |
Wysokość budynku 6.12 m |
Długość działki 25.45 m |
Funkcje dodatkowe z pralnią |
Liczba łazieniek 2 |
Kąt nachylenia dachu 35 ° |
Taras z tarasem |
Długość budynku 19.95 m |
Koszty budowy 300-350 tys., tylko z kosztorysem |
Kupując projekt w technologii murowanej powinieneś budować dom murowany. Zupełna zmiana technologii na szkieletową wymaga przeprojektowania całego budynku ( zmieniają się obciążenia, fundamenty, konstrukcja dachu). Wydamy zgodę na takie przeprojektowanie jednak wiążę się to z dużymi kosztami. Istnieją firmy wykonawcze, które podejmują się zmiany technologii budowy bezpłatnie przy skorzystaniu z ich usług wykonawczych. Zdarza się, że pracownia architektoniczna przygotowuje warianty konkretnego projektu przewidując także inne technologie. Prosimy o sprawdzenie czy istnieje poszukiwana wersja projektu, w zakładce - warianty projektu.
Zwężenie/poszerzenie budynku* to nic innego jak zmiana w projekcie. Istnieje możliwość wprowadzenia takich zmian, we własnym zakresie (podczas adaptacji). *zwężenie/poszerzenie budynku nie powinno stanowić problemu w przypadku domów o dachu dwuspadowym jeśli wiąże się to z wydłużeniem/skróceniem kalenicy dachu.
Poznaj praktyczne porady ekspertów, które ułatwią Ci każdy etap budowy i od wyboru wymarzonego domu po jego wykończenie. Zyskaj pewność, że podejmujesz najlepsze decyzje dzięki sprawdzonym wskazówkom od specjalistów z planz.pl
Wycena szacunkowa, w kwotach netto, nie zawiera instalacji.
bezpłatnie (0zł)
przelew zwykły / PayNow
przy odbiorze
3-5 dni roboczych (jeśli projekt nie wymaga aktualizacji)
Wybierz wygodny dla Ciebie czas kontaktu z naszym Doradcą Technicznym.