D292D - WT2021



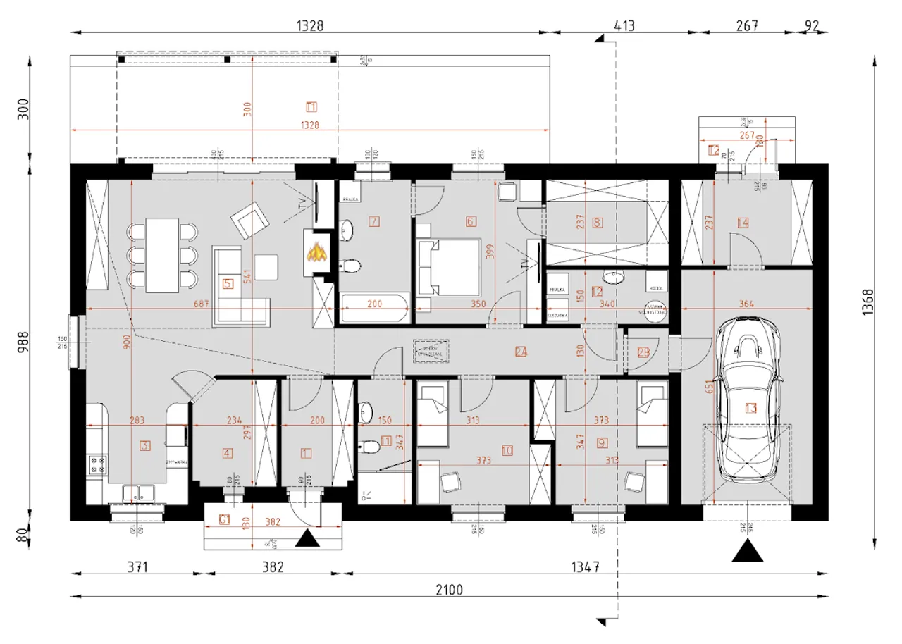
1. Wiatrołap | 5,90 m² |
2. Komunikacja | 14,68 m² |
3. śluza | 1,47 m² |
4. Kuchnia + jadalnia | 15,09 m² |
5. Spiżarnia | 6,67 m² |
6. Salon | 28,26 m² |
7. Sypialnia | 13,97 m² |
8. łazienka | 8,00 m² |
9. Garderoba | 8,07 m² |
10. Pokój | 11,87 m² |
11. Pokój | 11,87 m² |
12. łazienka | 5,20 m² |
13. Kotłownia | 5,09 m² |
14. Garaż | 23,70 m² |
15. Schowek gospodarczy | 8,65 m² |
16. Taras | 39,85 m² |
17. Taras | 3,47 m² |
18. Ganek | 4,97 m² |
Wypełnij formularz i otrzymaj rysunki w pdf z dokładnymi wymiarami budynku i pomieszczeń (długość, szerokość, wysokość) dla projektu D292C - WT2021
Pow. użytkowa 131.05 m² |
Ilość pokoi 4 |
Powierzchnia zabudowy 205.52 m² |
Kondygnacje parterowy |
Garaż 1 stanowisko |
Technologia murowany |
Szerokość działki 28 m |
Obiekt dom |
Typ domu jednorodzinny całoroczny |
Szerokość budynku 21 m |
Taras z tarasem |
Kąt nachylenia dachu 18 ° |
Długość budynku 9.38 m |
Piwnica bez podpiwniczenia |
Strop drewniany |
Kubatura 856.2 m³ |
Rodzaj garażu w bryle |
Kalenica równoległa do drogi |
Powierzchnia dachu 210.7 m² |
Rodzaj dachu dwuspadowy |
Długość działki 18.38 m |
Funkcje dodatkowe z dwoma wejściami |
Wysokość budynku 4.64 m |
Bryła budynku prosta bryła |
Liczba łazieniek 2 |
Styl budynku nowoczesny |
Kominek kominek w projekcie |
Koszty budowy 300-350 tys., tylko z kosztorysem |
Pow. użytkowa 131.05 m² |
Powierzchnia zabudowy 205.52 m² |
Garaż 1 stanowisko |
Szerokość działki 28 m |
Typ domu jednorodzinny całoroczny |
Taras z tarasem |
Długość budynku 9.38 m |
Strop drewniany |
Rodzaj garażu w bryle |
Powierzchnia dachu 210.7 m² |
Długość działki 18.38 m |
Wysokość budynku 4.64 m |
Liczba łazieniek 2 |
Kominek kominek w projekcie |
Ilość pokoi 4 |
Kondygnacje parterowy |
Technologia murowany |
Obiekt dom |
Szerokość budynku 21 m |
Kąt nachylenia dachu 18 ° |
Piwnica bez podpiwniczenia |
Kubatura 856.2 m³ |
Kalenica równoległa do drogi |
Rodzaj dachu dwuspadowy |
Funkcje dodatkowe z dwoma wejściami |
Bryła budynku prosta bryła |
Styl budynku nowoczesny |
Koszty budowy 300-350 tys., tylko z kosztorysem |
Kupując projekt w technologii murowanej powinieneś budować dom murowany. Zupełna zmiana technologii na szkieletową wymaga przeprojektowania całego budynku ( zmieniają się obciążenia, fundamenty, konstrukcja dachu). Wydamy zgodę na takie przeprojektowanie jednak wiążę się to z dużymi kosztami. Istnieją firmy wykonawcze, które podejmują się zmiany technologii budowy bezpłatnie przy skorzystaniu z ich usług wykonawczych. Zdarza się, że pracownia architektoniczna przygotowuje warianty konkretnego projektu przewidując także inne technologie. Prosimy o sprawdzenie czy istnieje poszukiwana wersja projektu, w zakładce - warianty projektu.
Zwężenie/poszerzenie budynku* to nic innego jak zmiana w projekcie. Istnieje możliwość wprowadzenia takich zmian, we własnym zakresie (podczas adaptacji). *zwężenie/poszerzenie budynku nie powinno stanowić problemu w przypadku domów o dachu dwuspadowym jeśli wiąże się to z wydłużeniem/skróceniem kalenicy dachu.
Poznaj praktyczne porady ekspertów, które ułatwią Ci każdy etap budowy i od wyboru wymarzonego domu po jego wykończenie. Zyskaj pewność, że podejmujesz najlepsze decyzje dzięki sprawdzonym wskazówkom od specjalistów z planz.pl
Wycena szacunkowa, w kwotach netto, nie zawiera instalacji.
bezpłatnie (0zł)
przelew zwykły / PayNow
przy odbiorze
3-5 dni roboczych (jeśli projekt nie wymaga aktualizacji)
Wybierz wygodny dla Ciebie czas kontaktu z naszym Doradcą Technicznym.