L-14 szkieletowy



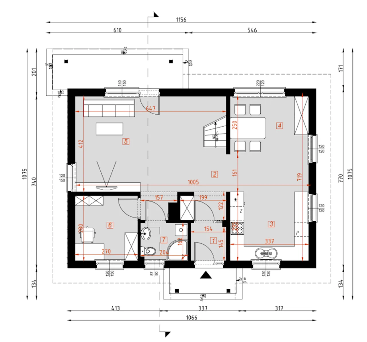
1. Przedsionek | 2,45 m² |
2. Hall | 6,90 m² |
3. Kuchnia | 9,90 m² |
4. Jadalnia | 13,70 m² |
5. Salon | 20,80 m² |
6. Gabinet | 7,50 m² |
7. łazienka | 3,27 m² |
8. Taras 1 | 10,90 m² |
9. Taras 2 | 4,63 m² |
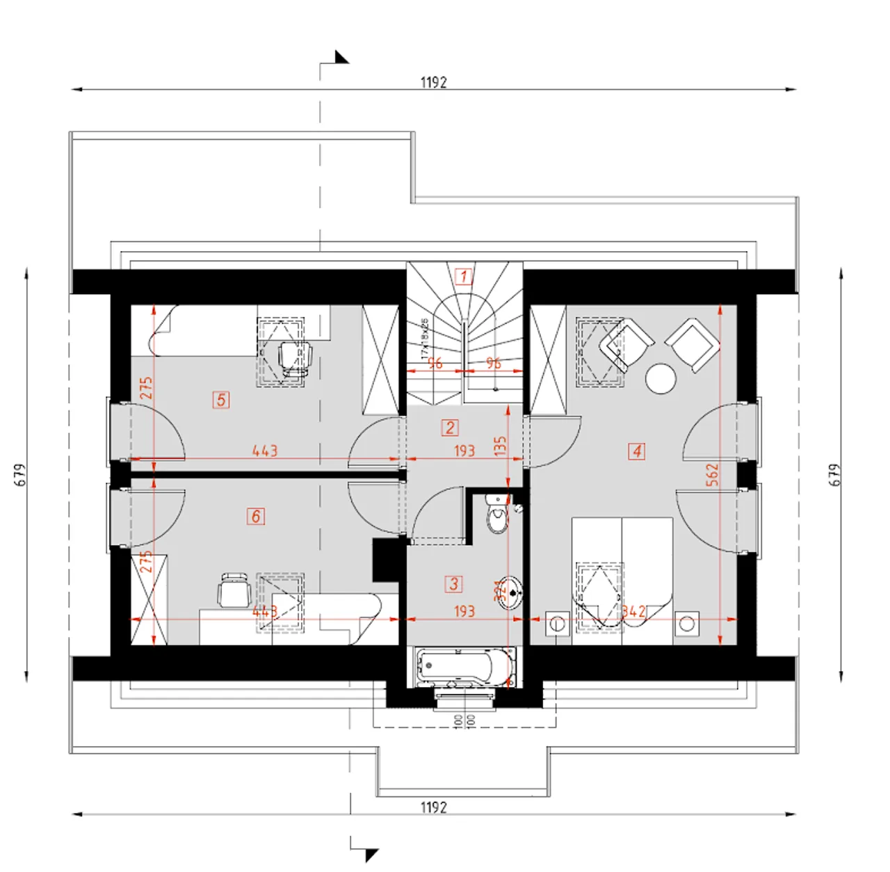
1. Schody | 4,19 (4,19) m² |
2. Korytarz | 3,42 (3,42) m² |
3. łazienka | 5,27 (5,27) m² |
4. Pokój | 14,30 (19,20) m² |
5. Pokój | 9,03 (12,19) m² |
6. Pokój | 8,73 (11,88) m² |
Wypełnij formularz i otrzymaj rysunki w pdf z dokładnymi wymiarami budynku i pomieszczeń (długość, szerokość, wysokość) dla projektu D29 - Maryla
Pow. użytkowa 109.58 m² |
Ilość pokoi 5 |
Powierzchnia zabudowy 80.27 m² |
Kondygnacje parterowy+poddasze |
Garaż bez garażu |
Technologia szkielet/drewniany |
Szerokość działki 18.66 m |
Obiekt dom |
Typ domu jednorodzinny całoroczny |
Wysokość budynku 7.13 m |
Kalenica równoległa do drogi |
Długość działki 15.7 m |
Styl budynku tradycyjny |
Funkcje dodatkowe z lukarnami |
Liczba łazieniek 2 |
Kąt nachylenia dachu 35 ° |
Kominek kominek opcjonalnie |
Szerokość budynku 10.66 m |
Rodzaj dachu dwuspadowy |
Taras z tarasem |
Długość budynku 7.7 m |
Piwnica bez podpiwniczenia |
Kubatura 465 m³ |
Bryła budynku prosta bryła |
Koszty budowy tylko z kosztorysem, 250-300 tys. |
Pow. użytkowa 109.58 m² |
Powierzchnia zabudowy 80.27 m² |
Garaż bez garażu |
Szerokość działki 18.66 m |
Typ domu jednorodzinny całoroczny |
Kalenica równoległa do drogi |
Styl budynku tradycyjny |
Liczba łazieniek 2 |
Kominek kominek opcjonalnie |
Rodzaj dachu dwuspadowy |
Długość budynku 7.7 m |
Kubatura 465 m³ |
Koszty budowy tylko z kosztorysem, 250-300 tys. |
Ilość pokoi 5 |
Kondygnacje parterowy+poddasze |
Technologia szkielet/drewniany |
Obiekt dom |
Wysokość budynku 7.13 m |
Długość działki 15.7 m |
Funkcje dodatkowe z lukarnami |
Kąt nachylenia dachu 35 ° |
Szerokość budynku 10.66 m |
Taras z tarasem |
Piwnica bez podpiwniczenia |
Bryła budynku prosta bryła |
Kupując projekt w technologii murowanej powinieneś budować dom murowany. Zupełna zmiana technologii na szkieletową wymaga przeprojektowania całego budynku ( zmieniają się obciążenia, fundamenty, konstrukcja dachu). Wydamy zgodę na takie przeprojektowanie jednak wiążę się to z dużymi kosztami. Istnieją firmy wykonawcze, które podejmują się zmiany technologii budowy bezpłatnie przy skorzystaniu z ich usług wykonawczych. Zdarza się, że pracownia architektoniczna przygotowuje warianty konkretnego projektu przewidując także inne technologie. Prosimy o sprawdzenie czy istnieje poszukiwana wersja projektu, w zakładce - warianty projektu.
Zwężenie/poszerzenie budynku* to nic innego jak zmiana w projekcie. Istnieje możliwość wprowadzenia takich zmian, we własnym zakresie (podczas adaptacji). *zwężenie/poszerzenie budynku nie powinno stanowić problemu w przypadku domów o dachu dwuspadowym jeśli wiąże się to z wydłużeniem/skróceniem kalenicy dachu.
Poznaj praktyczne porady ekspertów, które ułatwią Ci każdy etap budowy i od wyboru wymarzonego domu po jego wykończenie. Zyskaj pewność, że podejmujesz najlepsze decyzje dzięki sprawdzonym wskazówkom od specjalistów z planz.pl
Wycena szacunkowa, w kwotach netto, nie zawiera instalacji.
bezpłatnie (0zł)
przelew zwykły / PayNow
przy odbiorze
3-5 dni roboczych (jeśli projekt nie wymaga aktualizacji)
Wybierz wygodny dla Ciebie czas kontaktu z naszym Doradcą Technicznym.