Dom przy Sielskiej 2



1. Przedsionek | 3,14 m² |
2. Holl | 10,71 m² |
3. Kuchnia | 7,17 m² |
4. Jadalnia | 9,84 m² |
5. Salon | 19,71 m² |
6. łazienka | 5,15 m² |
7. Sypialnia | 11,54 m² |
8. Kotłownia | 3,15 m² |
9. Taras | 38,55 m² |
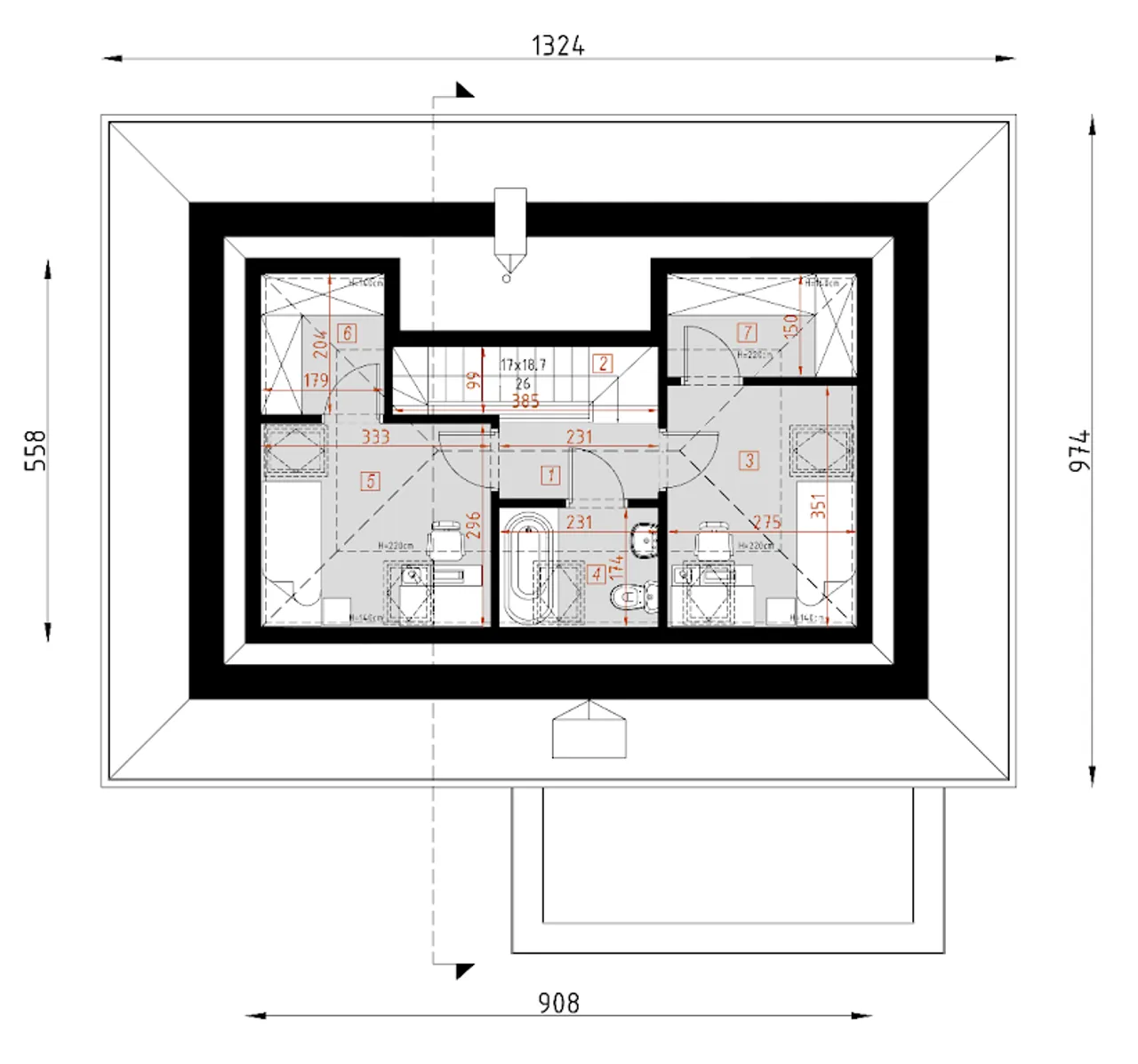
1. Holl | 2,56 (2,56) m² |
2. Schody | 3,91 (3,91) m² |
3. Sypialnia | 6,56 (9,65) m² |
4. łazienka | 2,67 (4,03) m² |
5. Sypialnia | 6,76 (9,86) m² |
6. Garderoba | 2,00 (3,65) m² |
7. Garderoba | 2,21 (4,11) m² |
Wypełnij formularz i otrzymaj rysunki w pdf z dokładnymi wymiarami budynku i pomieszczeń (długość, szerokość, wysokość) dla projektu D236 - WT2021
Pow. użytkowa 93.93 m² |
Ilość pokoi 4 |
Powierzchnia zabudowy 96.37 m² |
Kondygnacje parterowy+poddasze |
Garaż bez garażu |
Technologia murowany |
Szerokość działki 19.88 m |
Obiekt dom |
Typ domu jednorodzinny całoroczny |
Wysokość budynku 7.31 m |
Długość działki 16.98 m |
Bryła budynku prosta bryła |
Strop drewniany |
Styl budynku nowoczesny |
Liczba łazieniek 2 |
Kalenica równoległa do drogi |
Kominek kominek w projekcie |
Kąt nachylenia dachu 38 ° |
Szerokość budynku 11.88 m |
Taras z tarasem |
Długość budynku 8.38 m |
Rodzaj dachu wielospadowy |
Piwnica bez podpiwniczenia |
Kubatura 552 m³ |
Koszty budowy tylko z kosztorysem, 200-250 tys. |
Pow. użytkowa 93.93 m² |
Powierzchnia zabudowy 96.37 m² |
Garaż bez garażu |
Szerokość działki 19.88 m |
Typ domu jednorodzinny całoroczny |
Długość działki 16.98 m |
Strop drewniany |
Liczba łazieniek 2 |
Kominek kominek w projekcie |
Szerokość budynku 11.88 m |
Długość budynku 8.38 m |
Piwnica bez podpiwniczenia |
Koszty budowy tylko z kosztorysem, 200-250 tys. |
Ilość pokoi 4 |
Kondygnacje parterowy+poddasze |
Technologia murowany |
Obiekt dom |
Wysokość budynku 7.31 m |
Bryła budynku prosta bryła |
Styl budynku nowoczesny |
Kalenica równoległa do drogi |
Kąt nachylenia dachu 38 ° |
Taras z tarasem |
Rodzaj dachu wielospadowy |
Kubatura 552 m³ |
Kupując projekt w technologii murowanej powinieneś budować dom murowany. Zupełna zmiana technologii na szkieletową wymaga przeprojektowania całego budynku ( zmieniają się obciążenia, fundamenty, konstrukcja dachu). Wydamy zgodę na takie przeprojektowanie jednak wiążę się to z dużymi kosztami. Istnieją firmy wykonawcze, które podejmują się zmiany technologii budowy bezpłatnie przy skorzystaniu z ich usług wykonawczych. Zdarza się, że pracownia architektoniczna przygotowuje warianty konkretnego projektu przewidując także inne technologie. Prosimy o sprawdzenie czy istnieje poszukiwana wersja projektu, w zakładce - warianty projektu.
Zwężenie/poszerzenie budynku* to nic innego jak zmiana w projekcie. Istnieje możliwość wprowadzenia takich zmian, we własnym zakresie (podczas adaptacji). *zwężenie/poszerzenie budynku nie powinno stanowić problemu w przypadku domów o dachu dwuspadowym jeśli wiąże się to z wydłużeniem/skróceniem kalenicy dachu.
Poznaj praktyczne porady ekspertów, które ułatwią Ci każdy etap budowy i od wyboru wymarzonego domu po jego wykończenie. Zyskaj pewność, że podejmujesz najlepsze decyzje dzięki sprawdzonym wskazówkom od specjalistów z planz.pl
Wycena szacunkowa, w kwotach netto, nie zawiera instalacji.
bezpłatnie (0zł)
przelew zwykły / PayNow
przy odbiorze
3-5 dni roboczych (jeśli projekt nie wymaga aktualizacji)
Wybierz wygodny dla Ciebie czas kontaktu z naszym Doradcą Technicznym.