22 299 20 00 (pn-nd 9.30 do 19.30)

Gotowy projekt domu D215 (ID: 34976)

3800 2026-01-19
D215 - 66.91m²
Dostawa w ciągu 3-10 dni
Gwarantujemy najniższą cenę
3800 zł
W cenie projektu:
📣 GRATIS: WIERTARKA UDAROWA
  • Tablica + dziennik budowy
  • 16 projektów ogrodowych
  • Darmowa wysyłka (kurier, paczkomat, pobranie)
  • 30 dni na zwrot
  • Pozwolenie na zmiany z podpisem i pieczęcią autora
  • GRATIS: Wiertarka Udarowa
22 299 20 00 (pn-nd 9.30 do 19.30)

Rzuty gotowego projektu domu D215

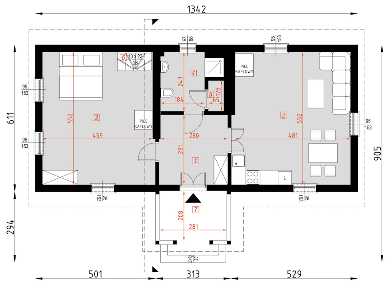
1. Sień 8,33 m²
2. Salon z aneksem kuchennym 27,00 m²
3. Pokój sypialny 24,40 m²
4. łazienka 5,17 m²
5. Pom. gospodarcze 0,90 m²
6. Schody 1,11 m²
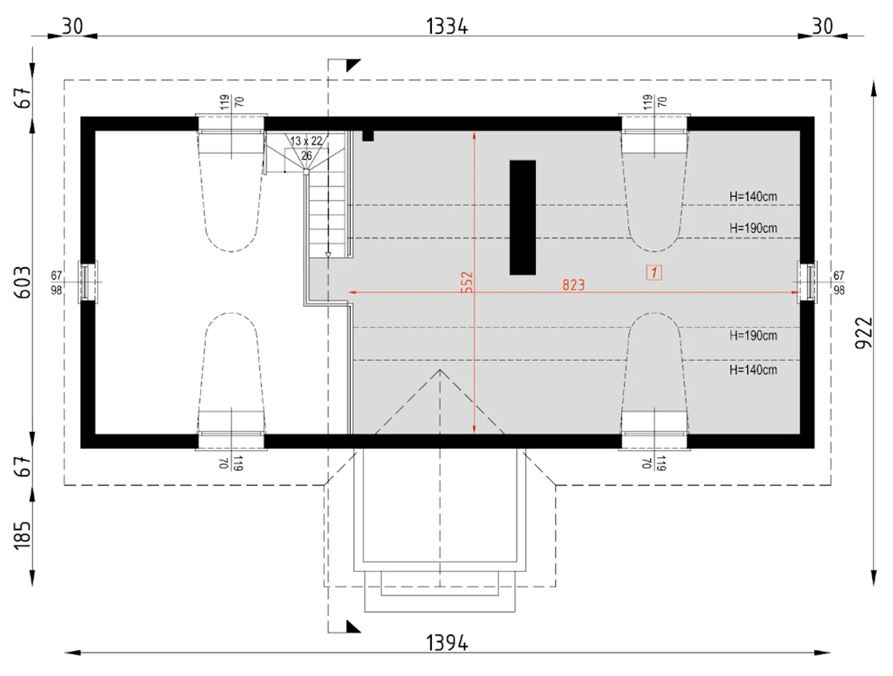
1. Poddasze do adaptacji 18,03 m²

Zapoznaj się ze szczegółami projektu - zamów bezpłatne rysunki do: D215

Wypełnij formularz i otrzymaj na podany adres e-mail rysunki w pdf z dokładnymi wymiarami budynku i pomieszczeń (długość, szerokość, wysokość) dla projektu D215

Parametry Techniczne gotowego projektu domu D215

Pow. użytkowa 66.91 m²
Powierzchnia zabudowy 90.88 m²
Kondygnacje parterowy
Garaż bez garażu
Technologia szkielet/drewniany
Szerokość działki 21.42 m
Obiekt dom
Typ domu letniskowy
Kąt nachylenia dachu 36 °
Długość działki 16.31 m
Rodzaj dachu dwuspadowy
Kubatura 400.2 m³
Kalenica równoległa do drogi
Kominek kominek w projekcie
Styl budynku tradycyjny
Wysokość budynku 6.19 m
Piwnica bez podpiwniczenia

Nasze prawdziwe opinie z Google

Opis projektu domu D215

Projekt domu letniskowego D215 - tradycyjny dom drewniany

Projekt domu letniskowego D215 to tradycyjny, parterowy dom drewniany idealny na działki rekreacyjne i tereny podmiejskie. Prosta bryła, dach dwuspadowy i klasyczna linia kalenicy równoległej do drogi nadają mu ponadczasowy charakter, który dobrze wpisuje się zarówno w krajobraz wiejski, jak i leśną polanę.

Dom wybudowany na podstawie projektu D215 będzie praktycznym azylem na weekendowe wyjazdy i dłuższy wypoczynek. W praktyce często wybierany jest przez rodziny szukające solidnego, drewnianego domu letniskowego bez garażu, nastawionego na rekreację, prostą eksploatację i szybkie wzniesienie konstrukcji.

Najważniejsze atuty projektu domu letniskowego

  • Tradycyjny dach dwuspadowy: Ułatwia odprowadzanie śniegu i deszczu, co podnosi trwałość pokrycia i ogranicza prace serwisowe.
  • Kąt nachylenia dachu 36°: Tworzy korzystne warunki do ocieplenia połaci i montażu pokrycia lekkiego, dobrze sprawdzającego się w domach rekreacyjnych.
  • Parterowa zabudowa: Ułatwia użytkowanie osobom starszym i dzieciom, bez konieczności wchodzenia po schodach.
  • Kominek w projekcie: Dodaje wnętrzu nastrojowości i pozwala wydłużyć sezon użytkowania domu na chłodniejsze miesiące.
  • Technologia szkieletowa/drewniana: Przyspiesza budowę, daje dobrą izolacyjność przegród i tworzy przyjemny, naturalny mikroklimat we wnętrzu.

Dla kogo przeznaczony jest ten dom letniskowy?

Projekt domu letniskowego w technologii szkieletowej pasuje szczególnie do terenów o charakterze rekreacyjnym - działek nad jeziorem, w górach, w sąsiedztwie lasów czy w spokojnych gminach podmiejskich. Brak piwnicy i garażu sprzyja lokowaniu budynku na mniejszych parcelach, gdzie kluczowa jest oszczędna zabudowa i maksymalne wykorzystanie części ogrodowej.

Dom parterowy sprawdzi się u inwestorów, którzy cenią prostotę rozwiązań i niewielki zakres formalności. Tradycyjny styl budynku ułatwia uzyskanie pozytywnych uzgodnień na obszarach o ściśle określonych wytycznych miejscowego planu, zwłaszcza tam, gdzie zalecany jest dach dwuspadowy i spokojna, stonowana architektura.

Charakterystyka architektoniczna i użytkowa

Dom w stylu tradycyjnym oparto na prostej, parterowej bryle bez podpiwniczenia. Kalenica ustawiona równolegle do drogi tworzy czytelną linię zabudowy, co ułatwia wpasowanie domu w większość standardowych działek z dojazdem od frontu. Taki układ pomaga w logicznym rozplanowaniu ogrodu, tarasu i dojść pieszych.

Technologia szkieletowa/drewniana doskonale współgra z funkcją letniskową. Lekka konstrukcja drewniana skraca czas realizacji inwestycji i pozwala przystosować dom do intensywnego sezonowego użytkowania. Kominek ujęty w projekcie staje się naturalnym sercem strefy dziennej - tworzy miejsce spotkań i sprzyja spędzaniu wieczorów w cieple ognia, nawet poza szczytem sezonu wakacyjnego.

Dlaczego warto wybrać ten tradycyjny dom drewniany?

  • Łatwe wpasowanie w otoczenie: Tradycyjny styl i dach dwuspadowy dobrze korelują z zabudową wsi, terenów górskich oraz ogrodów działkowych.
  • Funkcja typowo rekreacyjna: Brak garażu i piwnicy sprzyja koncentracji na części wypoczynkowej domu i ogrodu.
  • Bezproblemowe użytkowanie: Parterowy układ domu ogranicza bariery architektoniczne i ułatwia codzienne korzystanie z przestrzeni.
  • Możliwość budowy na wielu typach gruntów: Niewielkie gabaryty i prosta konstrukcja sprzyjają realizacji również na działkach o nieco gorszych warunkach gruntowych.

Podsumowanie korzyści z wyboru projektu

  • Dom letniskowy dostosowany do rekreacji całorocznej: Kominek i dobra izolacyjność przegród wspierają użytkowanie także poza latem.
  • Rozsądne koszty budowy: Technologia drewniana i brak podpiwniczenia redukują zakres robót i ilość materiałów.
  • Architektura zgodna z wieloma wytycznymi MPZP: Klasyczny dach dwuspadowy i tradycyjna forma ułatwiają procedury urzędowe.

Nie zwlekaj, wybierz projekt domu letniskowego D215 i przejdź od planów do budowy funkcjonalnego, tradycyjnego domu drewnianego na swojej działce. Warto postawić na sprawdzony, parterowy układ z kominkiem, który od pierwszego sezonu stanie się wygodną bazą wypoczynkową.



Dodatki do projektu D215

Dodatki możesz kupić razem z projektem lub dokupić po czasie

[Artinex] Dodatkowy egzemplarz projektu domu (490 zł)

[Artinex]Projekt wentylacji mechanicznej z rekuperacją (890 zł)

[Artinex] Szczegółowy kosztorys Inwestorski dom (990 zł)

[Artinex] Projekt ogrzewania powietrzną pompą ciepła + ogrzewanie podłogowe (1890 zł)

[Artinex] Projekt ogrzewania podłogowego (790 zł)

[Artinex] Projekt instalacji solarnej (990 zł)

[Artinex] Zamienna charakterystyka energetyczna (880 zł)

[Artinex] Projekt instalacji fotowoltaicznej (1590 zł)

[Artinex] Projekt ogrzewanie kominkiem z komorą powietrzną (2490 zł)

[Artinex] Szczegółowy Kosztorys Inwestorski garaż (690 zł)

[Artinex] Dodatkowy egzemplarz projektu garażu (390 zł)

[Artinex] Projekt płyty fundamentowej (1180 zł)

[Artinex] Projekt instalacji inteligentnych (2290 zł)

[Planz] Tablica budowlana (0 zł)

[Planz] Dziennik budowy (0 zł)

[Planz] Wiertarka udarowa (0 zł)

[Planz] Zgoda na zmiany w projekcie (0 zł)

[Planz] Projekty architektury ogrodowej (0 zł)

[Planz] Charakterystyka energetyczna, tylko dla domów całorocznych (0 zł)

Wysyłka i płatność za projekt D215

Koszty wysyłki

bezpłatnie (0zł)

Formy płatności

przelew zwykły / PayNow
przy odbiorze

Czas oczekiwania

3-5 dni roboczych (jeśli projekt nie wymaga aktualizacji)

Komentarze / pytania do projektu domu D215

Anna

Projekt domu D215 to prawdziwa perełka współczesnej architektury. Imponuje swoją wyjątkową bryłą. Elegancka elewacja i duże okna, które zapewniają obfitość światła, przyciągają uwagę. Nowoczesny design nie pozostaje niezauważony. Przestronny układ wnętrz daje ogromne możliwości różnorodnej aranżacji. Parter i piętro tworzą spójną, harmonijną całość. Wnętrza zaprojektowano z myślą o funkcjonalności i praktyczności. Taras to idealne miejsce na relaks. Poważnie rozważam zakup tego projektu i budowę takiego domu.

FAQ

Czy mogę zmienić funkcję niektórych pomieszczeń, np. wydzielić dodatkowy pokój z części strefy dziennej?

Czy w projekcie D215 można zmienić technologię z szkieletu drewnianego na murowaną?

Jakie są możliwości ogrzewania domu D215 poza kominkiem – czy można przystosować go do użytkowania całorocznego?

PRACOWNIA: Artinex