TK58



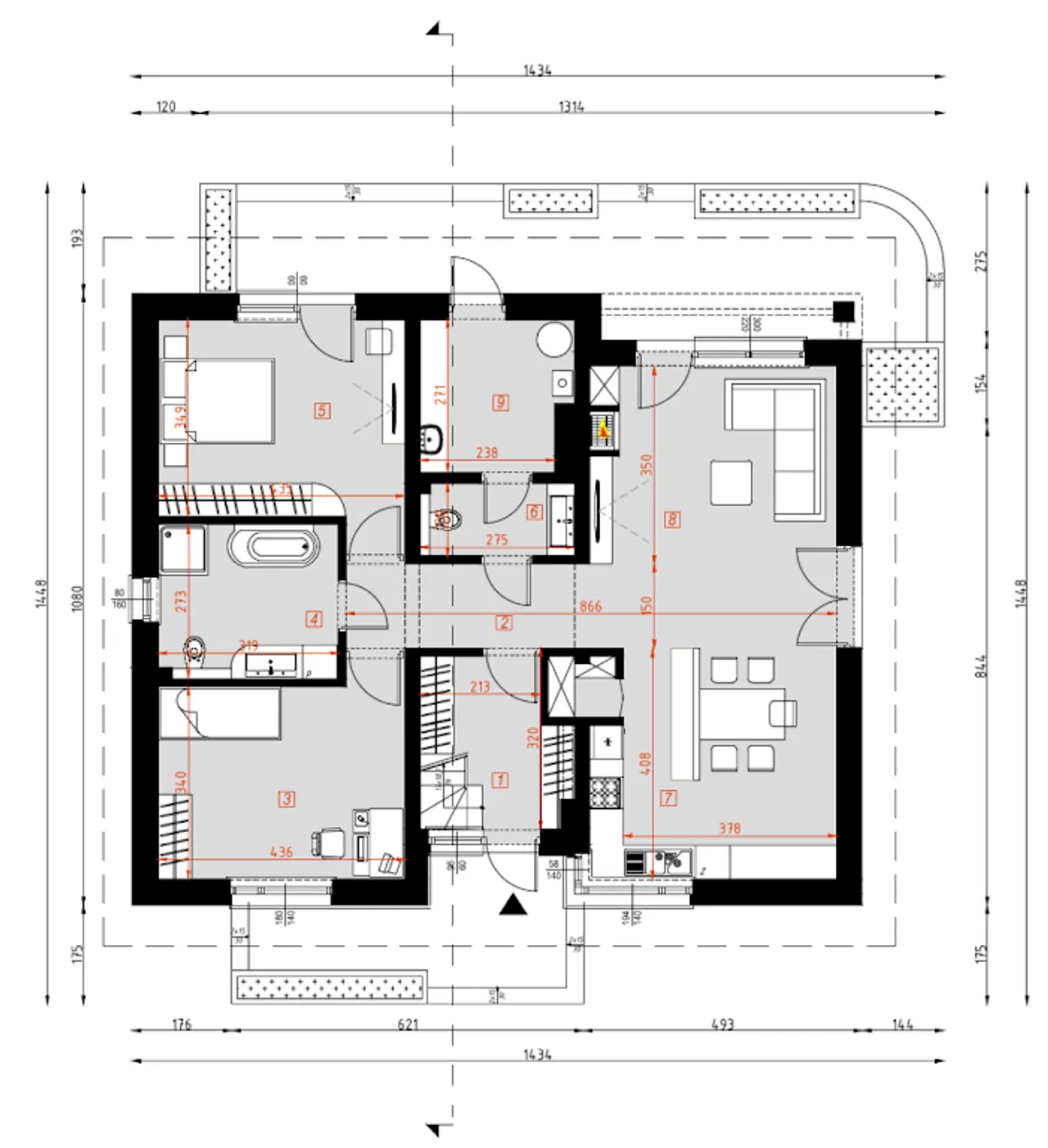
1. Przedsionek | 5,41 m² |
2. Hall | 6,43 m² |
3. Pokój | 15,44 m² |
4. łazienka | 8,81 m² |
5. Pokój | 16,00 m² |
6. Wc | 3,57 m² |
7. Kuchnia + spiżarnia | 12,57 m² |
8. Salon + jadalnia | 27,48 m² |
9. Kotłownia | 7,10 m² |
10. Taras | 11,26 m² |
11. Taras | 28,20 m² |
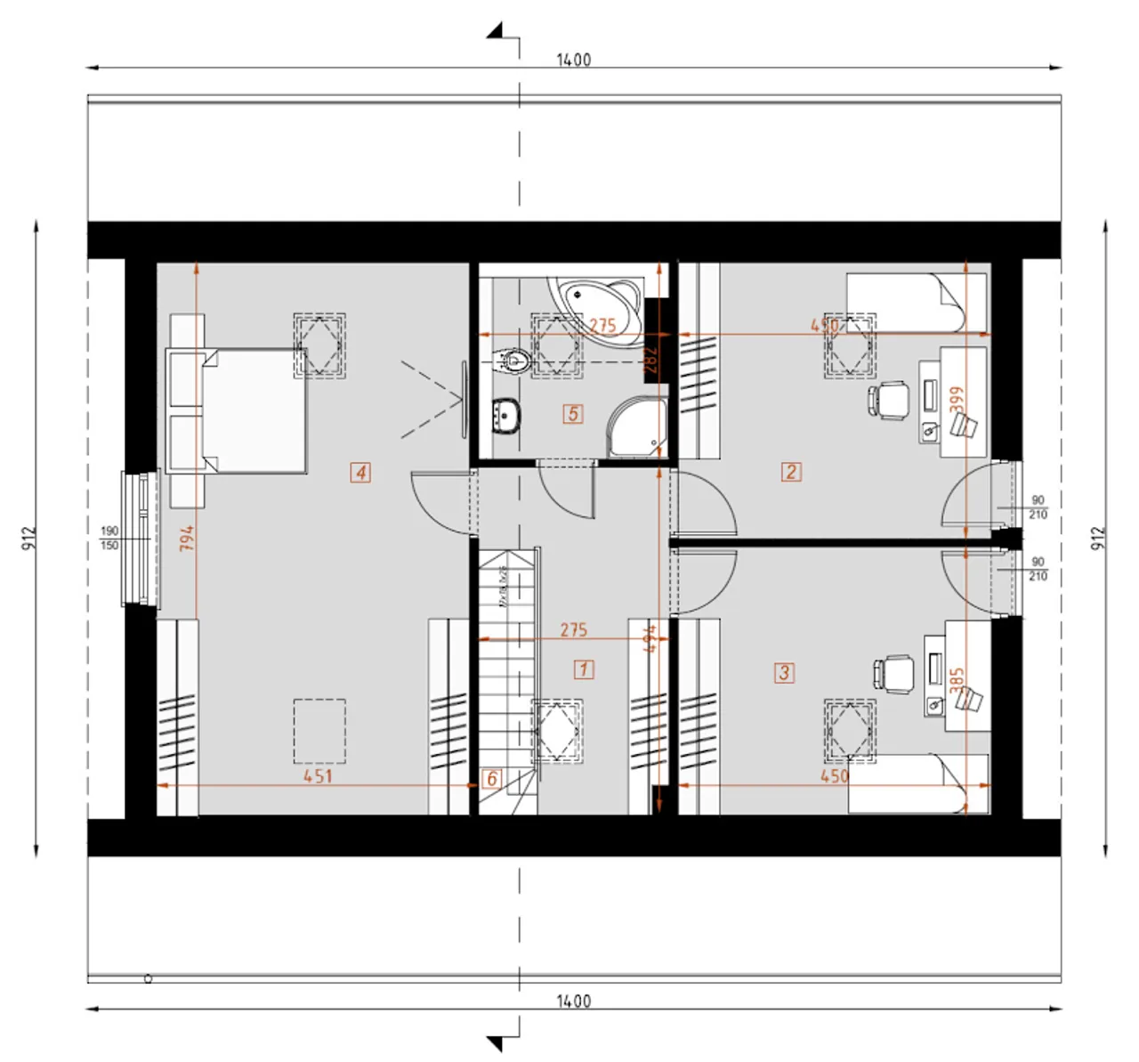
1. Korytarz | 9,22 (10,18) m² |
2. Pokój | 13,56 (18,59) m² |
3. Pokój | 13,00 (21,63) m² |
4. Pokój | 26,30 (44,44) m² |
5. łazienka | 5,00 (10,00) m² |
6. Schody | 3,35 (3,35) m² |
Wypełnij formularz i otrzymaj rysunki w pdf z dokładnymi wymiarami budynku i pomieszczeń (długość, szerokość, wysokość) dla projektu D214
Ilość pokoi 6 |
Pow. użytkowa 166.14 m² |
Powierzchnia zabudowy 131 m² |
Kondygnacje parterowy+poddasze |
Garaż bez garażu |
Technologia murowany |
Szerokość działki 20.9 m |
Obiekt dom |
Typ domu jednorodzinny całoroczny |
Szerokość budynku 12.9 m |
Taras z tarasem |
Kąt nachylenia dachu 40 ° |
Kalenica równoległa do drogi |
Długość budynku 10.8 m |
Piwnica bez podpiwniczenia |
Funkcje dodatkowe z dwoma wejściami |
Kubatura 814 m³ |
Rodzaj dachu dwuspadowy |
Powierzchnia dachu 228.5 m² |
Długość działki 18.8 m |
Liczba łazieniek 2 |
Wysokość budynku 8.31 m |
Bryła budynku prosta bryła |
Kominek kominek w projekcie |
Styl budynku tradycyjny |
Kotłownia duża kotłownia |
Strop gęstożebrowy |
Koszty budowy 350-400 tys., tylko z kosztorysem |
Ilość pokoi 6 |
Powierzchnia zabudowy 131 m² |
Garaż bez garażu |
Szerokość działki 20.9 m |
Typ domu jednorodzinny całoroczny |
Taras z tarasem |
Kalenica równoległa do drogi |
Piwnica bez podpiwniczenia |
Kubatura 814 m³ |
Powierzchnia dachu 228.5 m² |
Liczba łazieniek 2 |
Bryła budynku prosta bryła |
Styl budynku tradycyjny |
Strop gęstożebrowy |
Pow. użytkowa 166.14 m² |
Kondygnacje parterowy+poddasze |
Technologia murowany |
Obiekt dom |
Szerokość budynku 12.9 m |
Kąt nachylenia dachu 40 ° |
Długość budynku 10.8 m |
Funkcje dodatkowe z dwoma wejściami |
Rodzaj dachu dwuspadowy |
Długość działki 18.8 m |
Wysokość budynku 8.31 m |
Kominek kominek w projekcie |
Kotłownia duża kotłownia |
Koszty budowy 350-400 tys., tylko z kosztorysem |
Kupując projekt w technologii murowanej powinieneś budować dom murowany. Zupełna zmiana technologii na szkieletową wymaga przeprojektowania całego budynku ( zmieniają się obciążenia, fundamenty, konstrukcja dachu). Wydamy zgodę na takie przeprojektowanie jednak wiążę się to z dużymi kosztami. Istnieją firmy wykonawcze, które podejmują się zmiany technologii budowy bezpłatnie przy skorzystaniu z ich usług wykonawczych. Zdarza się, że pracownia architektoniczna przygotowuje warianty konkretnego projektu przewidując także inne technologie. Prosimy o sprawdzenie czy istnieje poszukiwana wersja projektu, w zakładce - warianty projektu.
Zwężenie/poszerzenie budynku* to nic innego jak zmiana w projekcie. Istnieje możliwość wprowadzenia takich zmian, we własnym zakresie (podczas adaptacji). *zwężenie/poszerzenie budynku nie powinno stanowić problemu w przypadku domów o dachu dwuspadowym jeśli wiąże się to z wydłużeniem/skróceniem kalenicy dachu.
Poznaj praktyczne porady ekspertów, które ułatwią Ci każdy etap budowy i od wyboru wymarzonego domu po jego wykończenie. Zyskaj pewność, że podejmujesz najlepsze decyzje dzięki sprawdzonym wskazówkom od specjalistów z planz.pl
Wycena szacunkowa, w kwotach netto, nie zawiera instalacji.
bezpłatnie (0zł)
przelew zwykły / PayNow
przy odbiorze
3-5 dni roboczych (jeśli projekt nie wymaga aktualizacji)
Wybierz wygodny dla Ciebie czas kontaktu z naszym Doradcą Technicznym.