L-30 murowany



1. Wiatrołap | 2,34 (2,34) m² |
2. Hall | 3,23 (3,23) m² |
3. Pom.gospodarcze | 2,94 (2,94) m² |
4. Kuchnia | 5,70 (5,70) m² |
5. Pokój dzienny | 20,27 (22,27) m² |
6. Sypialnia | 11,43 (11,43) m² |
7. Sypialnia | 7,25 (7,25) m² |
8. łazienka | 2,93 (2,93) m² |
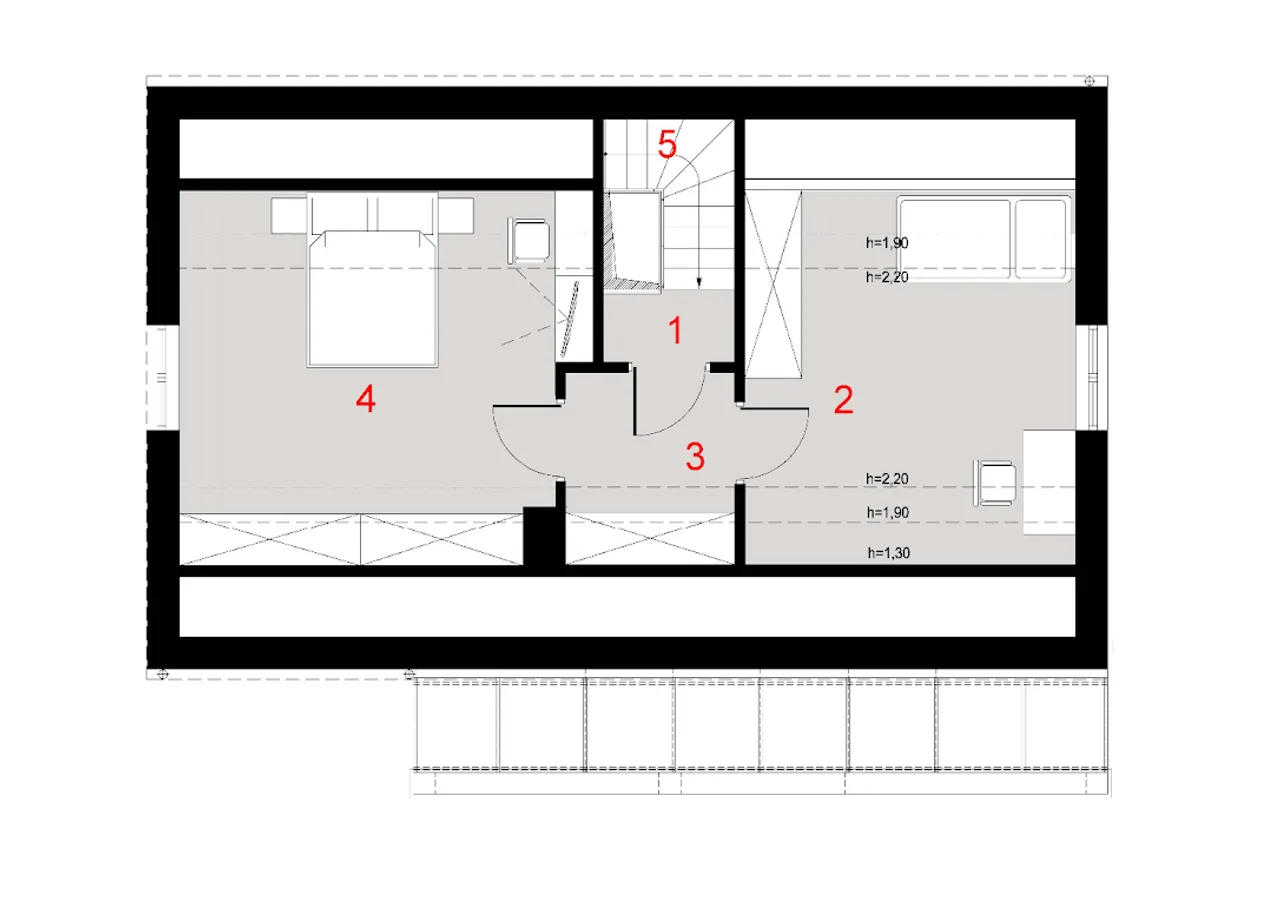
1. Korytarz | 1,23 m² |
2. Sypialnia | 12,81 m² |
3. Korytarz | 3,40 m² |
4. Sypialnia | 15,00 m² |
5. Schody | 2,74 m² |
Wypełnij formularz i otrzymaj rysunki w pdf z dokładnymi wymiarami budynku i pomieszczeń (długość, szerokość, wysokość) dla projektu D178B - Piotr B
Pow. użytkowa 91.27 m² |
Ilość pokoi 5 |
Powierzchnia zabudowy 73.24 m² |
Kondygnacje parterowy+poddasze |
Garaż bez garażu |
Technologia murowany |
Szerokość działki 18.75 m |
Obiekt dom |
Typ domu jednorodzinny całoroczny |
Styl budynku nowoczesny |
Kalenica równoległa do drogi |
Kąt nachylenia dachu 45 ° |
Liczba łazieniek 1 |
Szerokość budynku 10.75 m |
Rodzaj dachu dwuspadowy |
Kominek kominek w projekcie |
Długość budynku 6.42 m |
Piwnica bez podpiwniczenia |
Kubatura 463 m³ |
Bryła budynku prosta bryła |
Wysokość budynku 7.29 m |
Strop żelbetowy |
Długość działki 13.42 m |
Koszty budowy tylko z kosztorysem, 150-200 tys. |
Pow. użytkowa 91.27 m² |
Powierzchnia zabudowy 73.24 m² |
Garaż bez garażu |
Szerokość działki 18.75 m |
Typ domu jednorodzinny całoroczny |
Kalenica równoległa do drogi |
Liczba łazieniek 1 |
Rodzaj dachu dwuspadowy |
Długość budynku 6.42 m |
Kubatura 463 m³ |
Wysokość budynku 7.29 m |
Długość działki 13.42 m |
Ilość pokoi 5 |
Kondygnacje parterowy+poddasze |
Technologia murowany |
Obiekt dom |
Styl budynku nowoczesny |
Kąt nachylenia dachu 45 ° |
Szerokość budynku 10.75 m |
Kominek kominek w projekcie |
Piwnica bez podpiwniczenia |
Bryła budynku prosta bryła |
Strop żelbetowy |
Koszty budowy tylko z kosztorysem, 150-200 tys. |
Kupując projekt w technologii murowanej powinieneś budować dom murowany. Zupełna zmiana technologii na szkieletową wymaga przeprojektowania całego budynku ( zmieniają się obciążenia, fundamenty, konstrukcja dachu). Wydamy zgodę na takie przeprojektowanie jednak wiążę się to z dużymi kosztami. Istnieją firmy wykonawcze, które podejmują się zmiany technologii budowy bezpłatnie przy skorzystaniu z ich usług wykonawczych. Zdarza się, że pracownia architektoniczna przygotowuje warianty konkretnego projektu przewidując także inne technologie. Prosimy o sprawdzenie czy istnieje poszukiwana wersja projektu, w zakładce - warianty projektu.
Zwężenie/poszerzenie budynku* to nic innego jak zmiana w projekcie. Istnieje możliwość wprowadzenia takich zmian, we własnym zakresie (podczas adaptacji). *zwężenie/poszerzenie budynku nie powinno stanowić problemu w przypadku domów o dachu dwuspadowym jeśli wiąże się to z wydłużeniem/skróceniem kalenicy dachu.
Poznaj praktyczne porady ekspertów, które ułatwią Ci każdy etap budowy i od wyboru wymarzonego domu po jego wykończenie. Zyskaj pewność, że podejmujesz najlepsze decyzje dzięki sprawdzonym wskazówkom od specjalistów z planz.pl
Wycena szacunkowa, w kwotach netto, nie zawiera instalacji.
bezpłatnie (0zł)
przelew zwykły / PayNow
przy odbiorze
3-5 dni roboczych (jeśli projekt nie wymaga aktualizacji)
Jestem zafascynowany tym projektem. Wydaje się łączyć w sobie nowoczesność i funkcjonalność, co jest dla mnie kluczowe. Dobrze jest widzieć coś, co wpasowuje się w moje wyobrażenie o idealnym domu.
Wybierz wygodny dla Ciebie czas kontaktu z naszym Doradcą Technicznym.