D170



1. Przedsionek | 4,29 m² |
2. Hall | 4,50 m² |
3. Pokój | 10,89 m² |
4. łazienka | 6,83 m² |
5. Pom. techniczne | 4,46 m² |
6. Salon | 17,67 m² |
7. Kuchnia | 6,35 m² |
8. Spiżarnia | 2,54 m² |
9. Taras | 9,94 m² |
10. Taras | 7,30 m² |
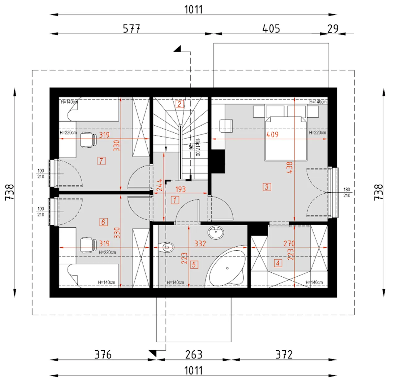
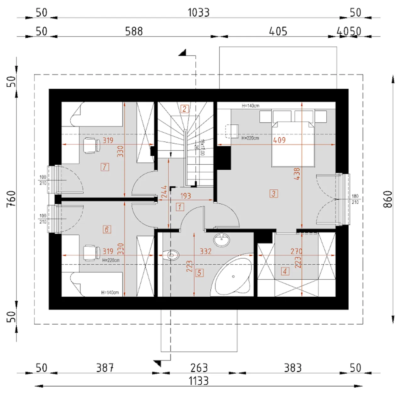
1. Korytarz | 3,67 m² |
2. Schody | 4,65 m² |
3. Sypialnia | 15,05 (17,52) m² |
4. Garderoba | 4,19 (5,81) m² |
5. łazienka | 5,39 (7,39) m² |
6. Pokój | 8,60 (10,53) m² |
7. Pokój | 8,60 (10,53) m² |
Wypełnij formularz i otrzymaj rysunki w pdf z dokładnymi wymiarami budynku i pomieszczeń (długość, szerokość, wysokość) dla projektu D170D - WT2021 wersja drewniana
Ilość pokoi 5 |
Pow. użytkowa 103.22 m² |
Powierzchnia zabudowy 74.6 m² |
Kondygnacje parterowy+poddasze |
Garaż bez garażu |
Technologia szkielet/drewniany |
Szerokość działki 18.11 m |
Obiekt dom |
Typ domu jednorodzinny całoroczny |
Liczba łazieniek 2 |
Kąt nachylenia dachu 35 ° |
Szerokość budynku 10.11 m |
Rodzaj dachu dwuspadowy |
Kominek kominek w projekcie |
Długość budynku 7.38 m |
Piwnica bez podpiwniczenia |
Kubatura 477 m³ |
Wysokość budynku 7.59 m |
Kalenica równoległa do drogi |
Długość działki 15.38 m |
Styl budynku nowoczesny |
Koszty budowy tylko z kosztorysem, 250-300 tys. |
Ilość pokoi 5 |
Powierzchnia zabudowy 74.6 m² |
Garaż bez garażu |
Szerokość działki 18.11 m |
Typ domu jednorodzinny całoroczny |
Kąt nachylenia dachu 35 ° |
Rodzaj dachu dwuspadowy |
Długość budynku 7.38 m |
Kubatura 477 m³ |
Kalenica równoległa do drogi |
Styl budynku nowoczesny |
Pow. użytkowa 103.22 m² |
Kondygnacje parterowy+poddasze |
Technologia szkielet/drewniany |
Obiekt dom |
Liczba łazieniek 2 |
Szerokość budynku 10.11 m |
Kominek kominek w projekcie |
Piwnica bez podpiwniczenia |
Wysokość budynku 7.59 m |
Długość działki 15.38 m |
Koszty budowy tylko z kosztorysem, 250-300 tys. |
Kupując projekt w technologii murowanej powinieneś budować dom murowany. Zupełna zmiana technologii na szkieletową wymaga przeprojektowania całego budynku ( zmieniają się obciążenia, fundamenty, konstrukcja dachu). Wydamy zgodę na takie przeprojektowanie jednak wiążę się to z dużymi kosztami. Istnieją firmy wykonawcze, które podejmują się zmiany technologii budowy bezpłatnie przy skorzystaniu z ich usług wykonawczych. Zdarza się, że pracownia architektoniczna przygotowuje warianty konkretnego projektu przewidując także inne technologie. Prosimy o sprawdzenie czy istnieje poszukiwana wersja projektu, w zakładce - warianty projektu.
Zwężenie/poszerzenie budynku* to nic innego jak zmiana w projekcie. Istnieje możliwość wprowadzenia takich zmian, we własnym zakresie (podczas adaptacji). *zwężenie/poszerzenie budynku nie powinno stanowić problemu w przypadku domów o dachu dwuspadowym jeśli wiąże się to z wydłużeniem/skróceniem kalenicy dachu.
Poznaj praktyczne porady ekspertów, które ułatwią Ci każdy etap budowy i od wyboru wymarzonego domu po jego wykończenie. Zyskaj pewność, że podejmujesz najlepsze decyzje dzięki sprawdzonym wskazówkom od specjalistów z planz.pl
Wycena szacunkowa, w kwotach netto, nie zawiera instalacji.
bezpłatnie (0zł)
przelew zwykły / PayNow
przy odbiorze
3-5 dni roboczych (jeśli projekt nie wymaga aktualizacji)
Wybierz wygodny dla Ciebie czas kontaktu z naszym Doradcą Technicznym.