TK88



Wypełnij formularz i otrzymaj rysunki w pdf z dokładnymi wymiarami budynku i pomieszczeń (długość, szerokość, wysokość) dla projektu D16 - Jan
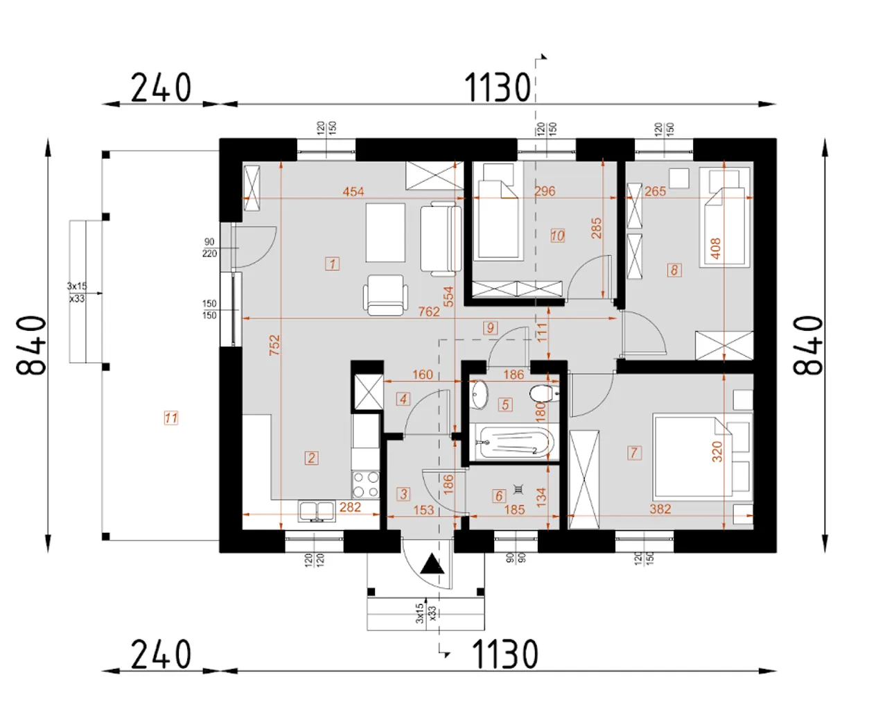
Ilość pokoi 4 |
Pow. użytkowa 73 m² |
Powierzchnia zabudowy 94.42 m² |
Kondygnacje parterowy |
Garaż bez garażu |
Technologia murowany |
Szerokość działki 18.55 m |
Obiekt dom |
Typ domu jednorodzinny całoroczny |
Kominek kominek w projekcie |
Kąt nachylenia dachu 25 ° |
Szerokość budynku 11.3 m |
Taras z tarasem |
Długość budynku 8.4 m |
Rodzaj dachu dwuspadowy |
Piwnica bez podpiwniczenia |
Kubatura 383 m³ |
Wysokość budynku 5.57 m |
Długość działki 16.4 m |
Bryła budynku prosta bryła |
Strop drewniany |
Styl budynku tradycyjny |
Liczba łazieniek 1 |
Kalenica równoległa do drogi |
Koszty budowy tylko z kosztorysem, 150-200 tys. |
Ilość pokoi 4 |
Powierzchnia zabudowy 94.42 m² |
Garaż bez garażu |
Szerokość działki 18.55 m |
Typ domu jednorodzinny całoroczny |
Kąt nachylenia dachu 25 ° |
Taras z tarasem |
Rodzaj dachu dwuspadowy |
Kubatura 383 m³ |
Długość działki 16.4 m |
Strop drewniany |
Liczba łazieniek 1 |
Koszty budowy tylko z kosztorysem, 150-200 tys. |
Pow. użytkowa 73 m² |
Kondygnacje parterowy |
Technologia murowany |
Obiekt dom |
Kominek kominek w projekcie |
Szerokość budynku 11.3 m |
Długość budynku 8.4 m |
Piwnica bez podpiwniczenia |
Wysokość budynku 5.57 m |
Bryła budynku prosta bryła |
Styl budynku tradycyjny |
Kalenica równoległa do drogi |
Kupując projekt w technologii murowanej powinieneś budować dom murowany. Zupełna zmiana technologii na szkieletową wymaga przeprojektowania całego budynku ( zmieniają się obciążenia, fundamenty, konstrukcja dachu). Wydamy zgodę na takie przeprojektowanie jednak wiążę się to z dużymi kosztami. Istnieją firmy wykonawcze, które podejmują się zmiany technologii budowy bezpłatnie przy skorzystaniu z ich usług wykonawczych. Zdarza się, że pracownia architektoniczna przygotowuje warianty konkretnego projektu przewidując także inne technologie. Prosimy o sprawdzenie czy istnieje poszukiwana wersja projektu, w zakładce - warianty projektu.
Zwężenie/poszerzenie budynku* to nic innego jak zmiana w projekcie. Istnieje możliwość wprowadzenia takich zmian, we własnym zakresie (podczas adaptacji). *zwężenie/poszerzenie budynku nie powinno stanowić problemu w przypadku domów o dachu dwuspadowym jeśli wiąże się to z wydłużeniem/skróceniem kalenicy dachu.
Poznaj praktyczne porady ekspertów, które ułatwią Ci każdy etap budowy i od wyboru wymarzonego domu po jego wykończenie. Zyskaj pewność, że podejmujesz najlepsze decyzje dzięki sprawdzonym wskazówkom od specjalistów z planz.pl
Wycena szacunkowa, w kwotach netto, nie zawiera instalacji.
bezpłatnie (0zł)
przelew zwykły / PayNow
przy odbiorze
3-5 dni roboczych (jeśli projekt nie wymaga aktualizacji)
Wybierz wygodny dla Ciebie czas kontaktu z naszym Doradcą Technicznym.