Amber 2



1. Wiatrołap | 2,48 m² |
2. Korytarz/komunikacja | 16,81 m² |
3. Kuchnia | 13,36 m² |
4. Salon | 33,86 m² |
5. Pokój | 14,18 m² |
6. Garderoba | 3,02 m² |
7. łazienka | 3,25 m² |
8. Kotłownia | 6,68 m² |
9. Garaż | 37,20 m² |
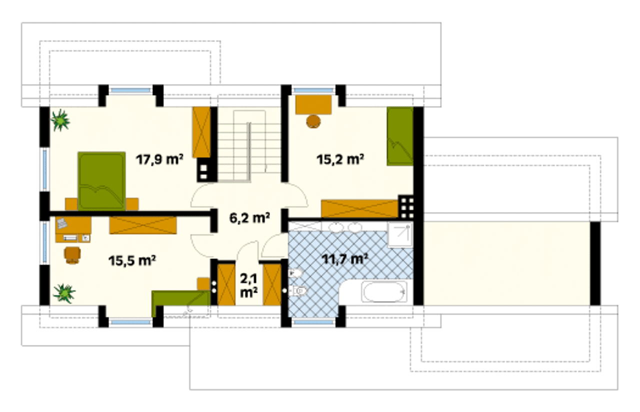
1. Korytarz/komunikacja | 6,01 m² |
2. Sypialnia | 15,10 m² |
3. Sypialnia | 18,00 m² |
4. Sypialnia | 15,63 m² |
5. łazienka | 11,67 m² |
6. Garderoba | 2,06 m² |
Wypełnij formularz i otrzymaj rysunki w pdf z dokładnymi wymiarami budynku i pomieszczeń (długość, szerokość, wysokość) dla projektu Combo 2
Pow. użytkowa 162.11 m² |
Ilość pokoi 4 |
Powierzchnia zabudowy 162.57 m² |
Kondygnacje parterowy+poddasze |
Garaż 2 stanowiska |
Technologia murowany |
Szerokość działki 26.05 m |
Obiekt dom |
Typ domu jednorodzinny całoroczny |
Długość działki 20.25 m |
Wysokość budynku 8.85 m |
Styl budynku tradycyjny |
Liczba łazieniek 2 |
Kominek kominek w projekcie |
Strop żelbetowy |
Szerokość budynku 19.05 m |
Kotłownia duża kotłownia |
Kąt nachylenia dachu 45 ° |
Kalenica równoległa do drogi |
Długość budynku 11.25 m |
Rodzaj garażu przyklejony |
Piwnica bez podpiwniczenia |
Funkcje dodatkowe z lukarnami |
Kubatura 945 m³ |
Rodzaj dachu dwuspadowy |
Powierzchnia dachu 310 m² |
Kąt nachylenia dachu drugiego 27 |
Koszty budowy 400-450 tys., tylko z kosztorysem |
Pow. użytkowa 162.11 m² |
Powierzchnia zabudowy 162.57 m² |
Garaż 2 stanowiska |
Szerokość działki 26.05 m |
Typ domu jednorodzinny całoroczny |
Wysokość budynku 8.85 m |
Liczba łazieniek 2 |
Strop żelbetowy |
Kotłownia duża kotłownia |
Kalenica równoległa do drogi |
Rodzaj garażu przyklejony |
Funkcje dodatkowe z lukarnami |
Rodzaj dachu dwuspadowy |
Kąt nachylenia dachu drugiego 27 |
Ilość pokoi 4 |
Kondygnacje parterowy+poddasze |
Technologia murowany |
Obiekt dom |
Długość działki 20.25 m |
Styl budynku tradycyjny |
Kominek kominek w projekcie |
Szerokość budynku 19.05 m |
Kąt nachylenia dachu 45 ° |
Długość budynku 11.25 m |
Piwnica bez podpiwniczenia |
Kubatura 945 m³ |
Powierzchnia dachu 310 m² |
Koszty budowy 400-450 tys., tylko z kosztorysem |
Kupując projekt w technologii murowanej powinieneś budować dom murowany. Zupełna zmiana technologii na szkieletową wymaga przeprojektowania całego budynku ( zmieniają się obciążenia, fundamenty, konstrukcja dachu). Wydamy zgodę na takie przeprojektowanie jednak wiążę się to z dużymi kosztami. Istnieją firmy wykonawcze, które podejmują się zmiany technologii budowy bezpłatnie przy skorzystaniu z ich usług wykonawczych. Zdarza się, że pracownia architektoniczna przygotowuje warianty konkretnego projektu przewidując także inne technologie. Prosimy o sprawdzenie czy istnieje poszukiwana wersja projektu, w zakładce - warianty projektu.
Zwężenie/poszerzenie budynku* to nic innego jak zmiana w projekcie. Istnieje możliwość wprowadzenia takich zmian, we własnym zakresie (podczas adaptacji). *zwężenie/poszerzenie budynku nie powinno stanowić problemu w przypadku domów o dachu dwuspadowym jeśli wiąże się to z wydłużeniem/skróceniem kalenicy dachu.
Poznaj praktyczne porady ekspertów, które ułatwią Ci każdy etap budowy i od wyboru wymarzonego domu po jego wykończenie. Zyskaj pewność, że podejmujesz najlepsze decyzje dzięki sprawdzonym wskazówkom od specjalistów z planz.pl
Wycena szacunkowa, w kwotach netto, nie zawiera instalacji.
bezpłatnie (0zł)
przelew zwykły / PayNow
przy odbiorze
3-5 dni roboczych (jeśli projekt nie jest koncepcją)
Projekt domu Combo 2 PH MTM Styl wydaje się idealny dla rodziny ceniącej sobie przestrzeń i wygodę. Wzrusza familiarne wzornictwo oraz perfekcyjnie zaprojektowane przestrzenie. Ekologiczne podejście do budowy domu i przemyślane rozmieszczenie pokoi to spore atuty, które tego rodzaju projekt czynią niezmiernie atrakcyjnym.
Wybierz wygodny dla Ciebie czas kontaktu z naszym Doradcą Technicznym.