Budynek usługowy - U19a
 murowany
 murowany                                         brak informacji
 brak informacji                                         parterowy
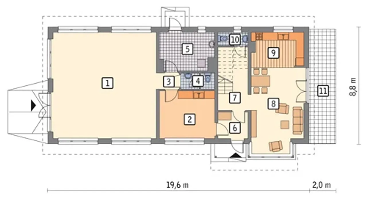
 parterowy                                        | 1. Pom. usługowe | 61,68 (61,68) m² | 
| 2. Pom. socjalne | 14,74 (14,74) m² | 
| 3. Korytarz | 2,09 (2,09) m² | 
| 4. Wc | 2,83 (2,83) m² | 
| 5. Kotłownia | 11,18 (11,18) m² | 
| 6. Przedsionek | 4,39 (4,39) m² | 
| 7. Hol | 7,39 (10,57) m² | 
| 8. Pokój dzienny | 24,95 (24,95) m² | 
| 9. Kuchnia | 9,54 (9,54) m² | 
| 10. Wc | 2,16 (2,16) m² | 
| 11. Taras | 17,58 m² | 
Wypełnij formularz i otrzymaj rysunki w pdf z dokładnymi wymiarami budynku i pomieszczeń (długość, szerokość, wysokość) dla projektu Budynek usługowy - U21
 
                                | Pow. użytkowa 252.24 m² | 
| Powierzchnia zabudowy 177.12 m² | 
| Kondygnacje parterowy | 
| Technologia murowany | 
| Obiekt inny | 
| Rodzaj dachu dwuspadowy | 
| Kubatura 1295.17 m³ | 
| Obiekt inny (szczegóły) domy weselne i hotele | 
| Kąt nachylenia dachu 45 ° | 
| Pow. użytkowa 252.24 m² | 
| Kondygnacje parterowy | 
| Obiekt inny | 
| Kubatura 1295.17 m³ | 
| Kąt nachylenia dachu 45 ° | 
| Powierzchnia zabudowy 177.12 m² | 
| Technologia murowany | 
| Rodzaj dachu dwuspadowy | 
| Obiekt inny (szczegóły) domy weselne i hotele | 
Tak. Projekty dostępne na Planz.pl zawierają pełną dokumentację potrzebną do uzyskania pozwolenia na budowę i stanowią gwarancję sprawnej realizacji budowy.
Jesteśmy oficjalnym partnerem ponad 50 pracowni architektonicznych z całej Polski - dlatego każdy projekt pochodzi wyłącznie od autorów zrzeszonych w Izbie Architektów RP.
Planz.pl to polska firma działającą na rynku od 12 lat. Mamy tysiące zadowolonych klientów, doskonałe opinie i oferujemy wsparcie również po zakupie, doradzamy, pomagamy w adaptacji i pozostajemy w kontakcie na każdym etapie inwestycji.
Dodatkowo do każdego projektu dodajemy tablicę informacyjną, dziennik budowy oraz 16 projektów elektronicznych drewnianej architektury ogrodowej. A dzięki naszej współpracy z markami Blaupunkt i PRIME3 oferujemy możliwość otrzymania sprzętu elektrycznego w formie atrakcyjnego gratisu.
Wybierając Planz.pl, otrzymujesz ten sam oryginalny projekt od autora, wzbogacony o realne dodatki, które ułatwiają rozpoczęcie budowy.
Zwężenie/poszerzenie budynku* to nic innego jak zmiana w projekcie. Istnieje możliwość wprowadzenia takich zmian, we własnym zakresie (podczas adaptacji). *zwężenie/poszerzenie budynku nie powinno stanowić problemu w przypadku domów o dachu dwuspadowym jeśli wiąże się to z wydłużeniem/skróceniem kalenicy dachu.
Poznaj praktyczne porady ekspertów, które ułatwią Ci każdy etap budowy i od wyboru wymarzonego domu po jego wykończenie. Zyskaj pewność, że podejmujesz najlepsze decyzje dzięki sprawdzonym wskazówkom od specjalistów z planz.pl
Dodatki możesz kupić razem z projektem lub dokupić po czasie
 [Planz] Tablica budowlana (0 zł)
            
            [Planz] Tablica budowlana (0 zł)           [Planz] Dziennik budowy (0 zł)
            
            [Planz] Dziennik budowy (0 zł)           [Planz] Wiertarka udarowa (0 zł)
            
            [Planz] Wiertarka udarowa (0 zł)           [Planz] Zgoda na zmiany w projekcie (0 zł)
            
            [Planz] Zgoda na zmiany w projekcie (0 zł)           [Planz] Projekty architektury ogrodowej (0 zł)
            
            [Planz] Projekty architektury ogrodowej (0 zł)           [Planz] Charakterystyka energetyczna, tylko dla domów całorocznych (0 zł)
            
            [Planz] Charakterystyka energetyczna, tylko dla domów całorocznych (0 zł)           
		bezpłatnie (0zł)
 
		
			przelew zwykły / PayNow
			przy odbiorze
 
		3-5 dni roboczych (jeśli projekt nie wymaga aktualizacji)
Wybierz wygodny dla Ciebie czas kontaktu z naszym Doradcą Technicznym.