Figa Neo



1. Wiatrołap | 4,78 m² |
2. Holl | 8,44 m² |
3. Spiżarnia | 1,57 m² |
4. Kuchnia | 7,59 m² |
5. Pokój dzienny + jadalnia | 29,30 m² |
6. Sypialnia | 15,77 m² |
7. Wc | 2,67 m² |
8. Garaż | 29,08 m² |
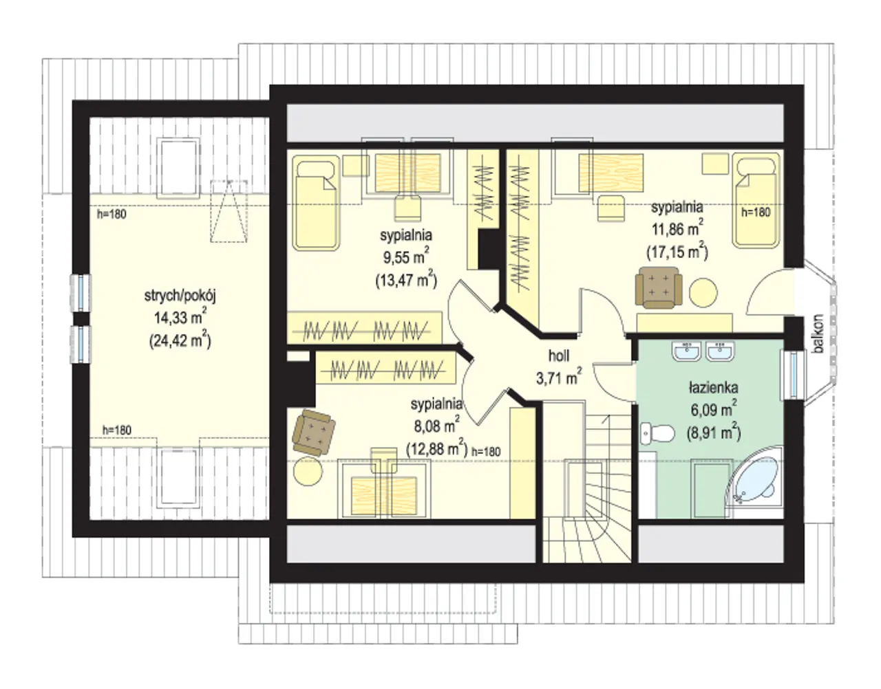
1. Holl | 3,71 m² |
2. Sypialnia | 11,86 (17,15) m² |
3. łazienka | 6,09 (8,91) m² |
4. Sypialnia | 8,08 (12,88) m² |
5. Sypialnia | 9,55 (13,47) m² |
6. Strych / pokój | 14,33 (24,42) m² |
Wypełnij formularz i otrzymaj rysunki w pdf z dokładnymi wymiarami budynku i pomieszczeń (długość, szerokość, wysokość) dla projektu Bryza 6 (MDM)
Pow. użytkowa 109.41 m² |
Ilość pokoi 5 |
Powierzchnia zabudowy 127.02 m² |
Kondygnacje parterowy+poddasze |
Garaż 1 stanowisko |
Technologia murowany |
Szerokość działki 22.26 m |
Obiekt dom |
Typ domu jednorodzinny całoroczny |
Powierzchnia dachu 189.55 m² |
Przechowywanie w kuchni spiżarnia |
Długość działki 17.89 m |
Bryła budynku prosta bryła |
Wysokość budynku 7.5 m |
Styl budynku nowoczesny |
Liczba łazieniek 2 |
Kominek kominek w projekcie |
Kąt nachylenia dachu 38 ° |
Strop gęstożebrowy |
Szerokość budynku 14.26 m |
Taras z tarasem |
Kalenica równoległa do drogi |
Długość budynku 9.89 m |
Rodzaj garażu przyklejony |
Piwnica bez podpiwniczenia |
Funkcje dodatkowe ze strychem |
Kubatura 605 m³ |
Rodzaj dachu dwuspadowy |
Koszty budowy tylko z kosztorysem, 250-300 tys. |
Pow. użytkowa 109.41 m² |
Powierzchnia zabudowy 127.02 m² |
Garaż 1 stanowisko |
Szerokość działki 22.26 m |
Typ domu jednorodzinny całoroczny |
Przechowywanie w kuchni spiżarnia |
Bryła budynku prosta bryła |
Styl budynku nowoczesny |
Kominek kominek w projekcie |
Strop gęstożebrowy |
Taras z tarasem |
Długość budynku 9.89 m |
Piwnica bez podpiwniczenia |
Kubatura 605 m³ |
Koszty budowy tylko z kosztorysem, 250-300 tys. |
Ilość pokoi 5 |
Kondygnacje parterowy+poddasze |
Technologia murowany |
Obiekt dom |
Powierzchnia dachu 189.55 m² |
Długość działki 17.89 m |
Wysokość budynku 7.5 m |
Liczba łazieniek 2 |
Kąt nachylenia dachu 38 ° |
Szerokość budynku 14.26 m |
Kalenica równoległa do drogi |
Rodzaj garażu przyklejony |
Funkcje dodatkowe ze strychem |
Rodzaj dachu dwuspadowy |
Kupując projekt w technologii murowanej powinieneś budować dom murowany. Zupełna zmiana technologii na szkieletową wymaga przeprojektowania całego budynku ( zmieniają się obciążenia, fundamenty, konstrukcja dachu). Wydamy zgodę na takie przeprojektowanie jednak wiążę się to z dużymi kosztami. Istnieją firmy wykonawcze, które podejmują się zmiany technologii budowy bezpłatnie przy skorzystaniu z ich usług wykonawczych. Zdarza się, że pracownia architektoniczna przygotowuje warianty konkretnego projektu przewidując także inne technologie. Prosimy o sprawdzenie czy istnieje poszukiwana wersja projektu, w zakładce - warianty projektu.
Zwężenie/poszerzenie budynku* to nic innego jak zmiana w projekcie. Istnieje możliwość wprowadzenia takich zmian, we własnym zakresie (podczas adaptacji). *zwężenie/poszerzenie budynku nie powinno stanowić problemu w przypadku domów o dachu dwuspadowym jeśli wiąże się to z wydłużeniem/skróceniem kalenicy dachu.
Poznaj praktyczne porady ekspertów, które ułatwią Ci każdy etap budowy i od wyboru wymarzonego domu po jego wykończenie. Zyskaj pewność, że podejmujesz najlepsze decyzje dzięki sprawdzonym wskazówkom od specjalistów z planz.pl
Wycena szacunkowa, w kwotach netto, nie zawiera instalacji.
bezpłatnie (0zł)
przelew zwykły / PayNow
przy odbiorze
3-10 dni roboczych
Wybierz wygodny dla Ciebie czas kontaktu z naszym Doradcą Technicznym.