L-30 murowany



Wypełnij formularz i otrzymaj rysunki w pdf z dokładnymi wymiarami budynku i pomieszczeń (długość, szerokość, wysokość) dla projektu BONSAI
Pow. użytkowa 93.4 m² |
Ilość pokoi 5 |
Powierzchnia zabudowy 74.2 m² |
Kondygnacje parterowy+poddasze |
Garaż bez garażu |
Technologia murowany |
Szerokość działki 17.8 m |
Obiekt dom |
Typ domu jednorodzinny całoroczny |
Kalenica równoległa do drogi |
Kąt nachylenia dachu 40 ° |
Liczba łazieniek 2 |
Szerokość budynku 9.8 m |
Rodzaj dachu dwuspadowy |
Kominek kominek w projekcie |
Długość budynku 7.4 m |
Piwnica bez podpiwniczenia |
Wysokość budynku 7.54 m |
Bryła budynku prosta bryła |
Strop gęstożebrowy |
Długość działki 14.4 m |
Styl budynku tradycyjny |
Koszty budowy tylko z kosztorysem, 150-200 tys. |
Pow. użytkowa 93.4 m² |
Powierzchnia zabudowy 74.2 m² |
Garaż bez garażu |
Szerokość działki 17.8 m |
Typ domu jednorodzinny całoroczny |
Kąt nachylenia dachu 40 ° |
Szerokość budynku 9.8 m |
Kominek kominek w projekcie |
Piwnica bez podpiwniczenia |
Bryła budynku prosta bryła |
Długość działki 14.4 m |
Koszty budowy tylko z kosztorysem, 150-200 tys. |
Ilość pokoi 5 |
Kondygnacje parterowy+poddasze |
Technologia murowany |
Obiekt dom |
Kalenica równoległa do drogi |
Liczba łazieniek 2 |
Rodzaj dachu dwuspadowy |
Długość budynku 7.4 m |
Wysokość budynku 7.54 m |
Strop gęstożebrowy |
Styl budynku tradycyjny |
Projekt domu Bonsai odznacza się niskimi kosztami budowy dzięki prostocie konstrukcji. Poddasze pod dwuspadowym dachem oferuje doskonały stosunek powierzchni użytkowej do wielkości rzutu, co wpływa na efektywność wykorzystania przestrzeni.
Elewacja frontowa przyciąga uwagę reprezentacyjnym narożnikowym wejściem, podkreślonym szczytem ozdobionym plafonem. Ściana szczytowa wyróżnia się dużymi oknami balkonowymi, które łączą salon z owalnym tarasem. Większa część przyziemia to przestronny pokój dzienny z otwartą kuchnią i jadalnią usytuowaną od frontowej strony.
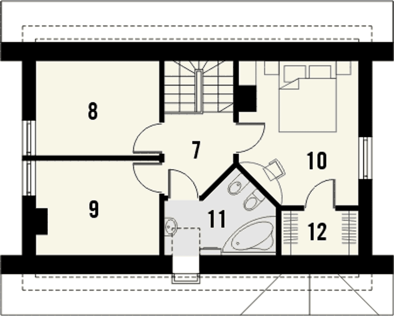
Dodatkowy pokój przy strefie wejściowej sąsiaduje z łazienką i pomieszczeniem gospodarczym. Poddasze zawiera trzy sypialnie, garderobę dostępną z jednego z pokoi oraz łazienkę z wejściem od korytarza.
Ściany domu Bonsai wykonane są z betonu komórkowego ocieplonego styropianem i tynkowane od zewnątrz tynkiem strukturalnym. Cokół również pokryty jest tym samym tynkiem. Dach pokryty jest dachówką ceramiczną lub betonową, a więźba jest drewniana. Strop międzypiętrowy jest gęstożebrowy. Istnieje możliwość zmiany materiałów na etapie adaptacji projektu, który dostępny jest również jako odbicie lustrzane.
Kupując projekt w technologii murowanej powinieneś budować dom murowany. Zupełna zmiana technologii na szkieletową wymaga przeprojektowania całego budynku ( zmieniają się obciążenia, fundamenty, konstrukcja dachu). Wydamy zgodę na takie przeprojektowanie jednak wiążę się to z dużymi kosztami. Istnieją firmy wykonawcze, które podejmują się zmiany technologii budowy bezpłatnie przy skorzystaniu z ich usług wykonawczych. Zdarza się, że pracownia architektoniczna przygotowuje warianty konkretnego projektu przewidując także inne technologie. Prosimy o sprawdzenie czy istnieje poszukiwana wersja projektu, w zakładce - warianty projektu.
Zwężenie/poszerzenie budynku* to nic innego jak zmiana w projekcie. Istnieje możliwość wprowadzenia takich zmian, we własnym zakresie (podczas adaptacji). *zwężenie/poszerzenie budynku nie powinno stanowić problemu w przypadku domów o dachu dwuspadowym jeśli wiąże się to z wydłużeniem/skróceniem kalenicy dachu.
Poznaj praktyczne porady ekspertów, które ułatwią Ci każdy etap budowy i od wyboru wymarzonego domu po jego wykończenie. Zyskaj pewność, że podejmujesz najlepsze decyzje dzięki sprawdzonym wskazówkom od specjalistów z planz.pl
Wycena szacunkowa, w kwotach netto, nie zawiera instalacji.
bezpłatnie (0zł)
przelew zwykły / PayNow
przy odbiorze
3-5 dni roboczych (jeśli projekt nie wymaga aktualizacji)
Wybierz wygodny dla Ciebie czas kontaktu z naszym Doradcą Technicznym.