22 299 20 00 (pn-nd 9.30 do 19.30)

Gotowy projekt domu Bolero (ID: 34058)

6590 2026-01-19
Bolero - 149.44m²
Dostawa w ciągu 3-10 dni
Gwarantujemy najniższą cenę
6590 zł
W cenie projektu:
📣 GRATIS: WIERTARKA UDAROWA
  • Tablica + dziennik budowy
  • 16 projektów ogrodowych
  • Darmowa wysyłka (kurier, paczkomat, pobranie)
  • 30 dni na zwrot
  • Pozwolenie na zmiany z podpisem i pieczęcią autora
  • GRATIS: Wiertarka Udarowa
22 299 20 00 (pn-nd 9.30 do 19.30)

Rzuty gotowego projektu domu Bolero

1. Przedsionek 5,25 m²
2. Holl 10,48 m²
3. Spiżarnia 2,37 m²
4. Kuchnia 9,92 m²
5. Pokój dzienny 34,22 m²
6. łazienka 5,29 m²
7. Pokój / gabinet 13,28 m²
8. Kotłownia 6,88 m²
9. Garaż 33,63 m²
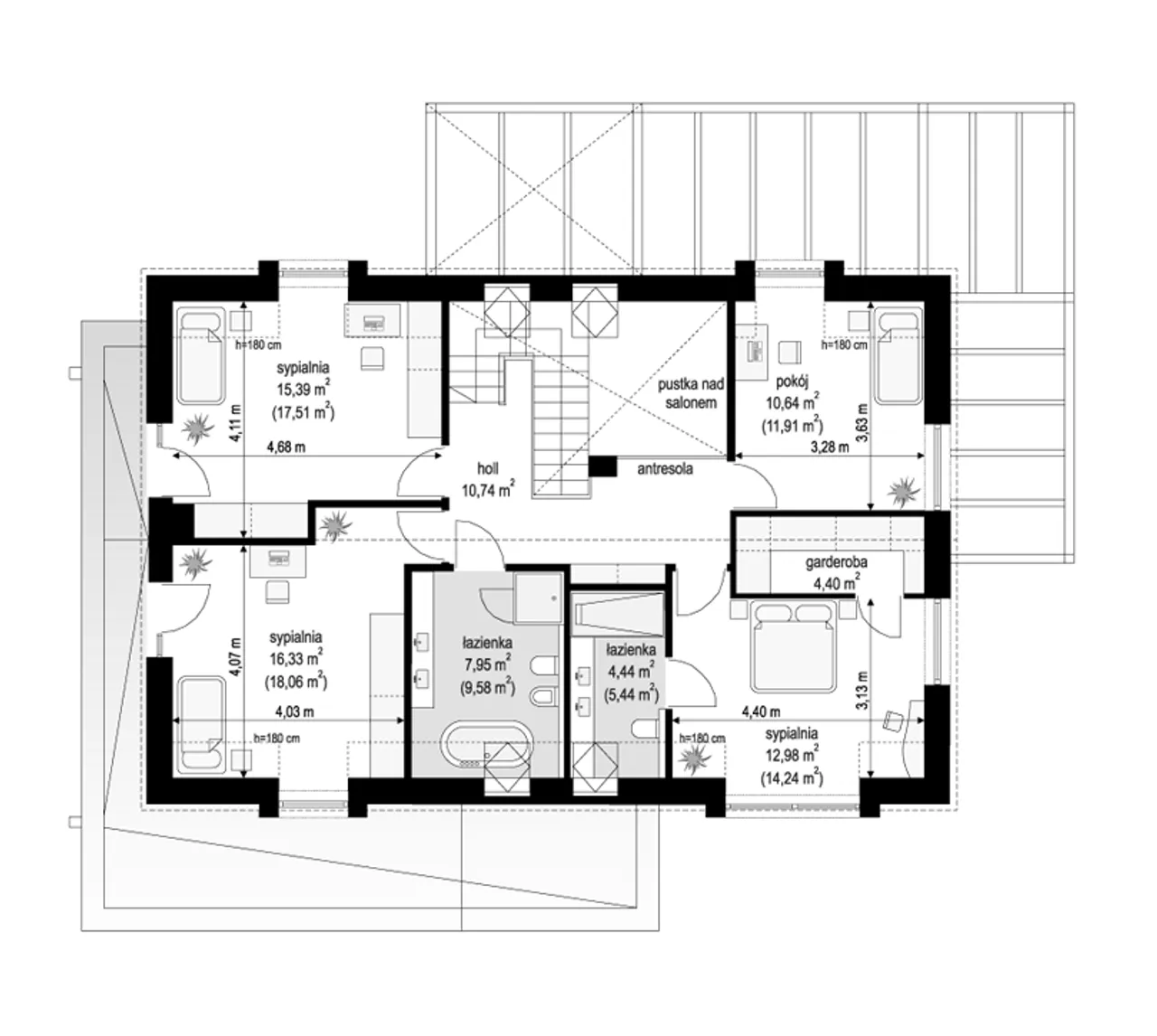
1. Holl 10,74 m²
2. Pokój 15,39 (17,51) m²
3. Pokój 16,33 (18,06) m²
4. łazienka 7,95 (9,58) m²
5. łazienka 4,44 (5,44) m²
6. Sypialnia 12,98 (14,24) m²
7. Garderoba 4,40 m²
8. Pokój 10,64 (11,91) m²

Zapoznaj się ze szczegółami projektu - zamów bezpłatne rysunki do: Bolero

Wypełnij formularz i otrzymaj na podany adres e-mail rysunki w pdf z dokładnymi wymiarami budynku i pomieszczeń (długość, szerokość, wysokość) dla projektu Bolero

Parametry Techniczne gotowego projektu domu Bolero

Ilość pokoi 6
Pow. użytkowa 149.44 m²
Kondygnacje parterowy+poddasze
Garaż 2 stanowiska
Technologia murowany
Szerokość działki 23.32 m
Obiekt dom
Typ domu jednorodzinny całoroczny
Styl budynku nowoczesny
Taras z tarasem
Kubatura 710 m³
Piwnica bez podpiwniczenia
Kąt nachylenia dachu 42 °
Powierzchnia dachu 176.4 m²
Wysokość budynku 8.93 m
Rodzaj dachu dwuspadowy
Długość działki 21.42 m
Ogrzewanie gaz
Liczba łazieniek 3
Ek 52.3
Szerokość budynku 15.16 m
Kominek kominek w projekcie
Kalenica równoległa do drogi
Długość budynku 11.42 m
Koszty budowy 400-450 tys., tylko z kosztorysem

Energia i ogrzewanie gotowego projektu domu Bolero

Źródło ogrzewania:
gaz
Możliwość dokupienia dodatku zmieniającego źródło ciepła:
- Aneks na paliwo stałe
- Powietrzna pompa ciepła
- Gruntowa pompa ciepła
Dodatek dostępny w formularzu zamówienia
Wentylacja: Mechaniczna nawiewno-wywiewna z rekuperacją
Parametry energetyczne:
Ep: 68.9 kWh/(m²rok)
Ek: 52.3 kWh/(m²rok)
Euco: 47.5 kWh/(m²rok)

Wnętrza domu Bolero

Nasze prawdziwe opinie z Google

Opis projektu domu Bolero

Projekt domu Bolero - nowoczesny dom jednorodzinny z dwuspadowym dachem i garażem

Projekt domu Bolero to wyważone połączenie nowoczesnej architektury i funkcjonalności, stworzone z myślą o wymagających rodzinach. Dom parterowy z poddaszem użytkowym i garażem na dwa auta pozwala cieszyć się przestrzenią oraz praktycznymi rozwiązaniami na co dzień. Komfort mieszkania podkreślają dopracowane detale i elegancka forma budynku. Dzięki przemyślanej konstrukcji, Bolero stał się idealnym wyborem dla osób poszukujących solidnego, całorocznego domu jednorodzinnego, którego bryła doskonale wpisuje się w aktualne trendy architektoniczne.

Wyobraź sobie przestronny salon z kominkiem, duży taras oraz sześć ustawnych pokoi - wszystko w domu z gęstożebrowym stropem, murowanymi ścianami i efektowną elewacją z płytek klinkierowych. Projekt domu Bolero pozwala stworzyć azyl pełen światła i ciepła na wiele lat.

Najważniejsze zalety projektu Bolero

  • Garaż na dwa stanowiska: Bezpieczne miejsce dla samochodów i wygodny dostęp do domu - koniec z szukaniem miejsca do parkowania.
  • Funkcjonalny układ - 6 pokoi: Każdy domownik znajdzie dla siebie idealną przestrzeń do odpoczynku lub pracy.
  • Kominek w salonie: Tworzy wyjątkowy klimat oraz strefę relaksu podczas chłodnych wieczorów.
  • Nowoczesna konstrukcja: Budynek murowany z energooszczędnym ociepleniem z pustaków porotherm oraz styropianu pozwala cieszyć się komfortem przez cały rok.
  • Taras przy salonie: Miejsce, gdzie latem można zorganizować rodzinne spotkania albo odpoczywać w otoczeniu zieleni.

Dom Bolero - inwestycja na lata

Dom wybudowany na podstawie projektu Bolero świetnie wpisuje się w potrzeby nowoczesnych rodzin. Stabilne betonowe ławy i ściany fundamentowe tworzą mocne podłoże, dające bezpieczeństwo użytkowania przez dekady. Zewnętrzne ściany powstały z wysokiej jakości pustaków porotherm, które dodatkowo zabezpiecza warstwa styropianu - to rozwiązanie ogranicza straty ciepła, co wpływa na energooszczędność budynku.

Dwuspadowy dach o nachyleniu 42 stopnie pokryty dachówką gwarantuje skuteczne odprowadzanie wody deszczowej oraz trwałość na lata. Stylowa elewacja, łącząca klinkier oraz elementy drewniane, sprawia, że dom Bolero prezentuje się nieszablonowo na tle innych projektów. Garaż na dwa samochody, przestronny salon z kominkiem i praktyczny układ pomieszczeń konsekwentnie zaspokajają różne potrzeby mieszkańców.

Dlaczego projekt domu Bolero to właściwy wybór?

  • Nowoczesna stylistyka - elegancja, która wyróżnia się w każdej okolicy
  • Gęstożebrowy strop - wytrzymałość i stabilność całej konstrukcji
  • Bez podpiwniczenia - szybsza i tańsza realizacja inwestycji
  • Rozbudowany program pomieszczeń - aż sześć pokoi do dyspozycji
  • Możliwość zamontowania wygodnej wentylacji mechanicznej

Przekonaj się, jak dobrze możesz mieszkać

Nie zwlekaj - wybierz projekt Bolero i rozpocznij budowę domu, w którym każda chwila z rodziną nabiera znaczenia. Zamów projekt już dziś i poczuj różnicę inteligentnych rozwiązań przestrzennych w codziennym życiu!



Technologia wykonania:

  • Fundamenty: betonowe ławy i ściany fundamentowe z bloczków betonowych.
  • Ściany zewnętrzne: ściany murowane – pustaki porotherm 25 + styropian.
  • Strop: gęstożebrowy.
  • Elewacje: płytki klinkierowe i elewacja drewniana.
  • Dach: dwuspadowy, kąt nachylenia 42 st.
  • Pokrycie dachu: dachówka.
  • Ogrzewanie: kocioł gazowy.
  • Wentylacja:mechaniczna.

Częste pytania

Czy projekty z Planz.pl są kompletne?

Tak. Projekty dostępne na Planz.pl zawierają pełną dokumentację potrzebną do uzyskania pozwolenia na budowę i stanowią gwarancję sprawnej realizacji budowy.

Jesteśmy oficjalnym partnerem ponad 50 pracowni architektonicznych z całej Polski - dlatego każdy projekt pochodzi wyłącznie od autorów zrzeszonych w Izbie Architektów RP. 

Planz.pl to polska firma działającą na rynku od 15 lat. Mamy tysiące zadowolonych klientów, doskonałe opinie i oferujemy wsparcie również po zakupie, doradzamy, pomagamy w adaptacji i pozostajemy w kontakcie na każdym etapie inwestycji.

Dodatkowo do każdego projektu dodajemy tablicę informacyjną, dziennik budowy oraz 16 projektów elektronicznych drewnianej architektury ogrodowej. A dzięki naszej współpracy z producentami sprzętu elektrycznego, oferujemy możliwość otrzymania np. Wiertarki udarowej w formie atrakcyjnego gratisu.

Wybierając Planz.pl, otrzymujesz ten sam oryginalny projekt od autora, wzbogacony o realne dodatki, które ułatwiają rozpoczęcie budowy.

Czy mogę wprowadzić zmiany w projekcie?

Co zrobić gdy wybrany dom nie mieści się na działce?

Jakie zmiany można wprowadzić w projekcie?

Porady ekspertów

Poznaj praktyczne porady ekspertów, które ułatwią Ci każdy etap budowy i od wyboru wymarzonego domu po jego wykończenie. Zyskaj pewność, że podejmujesz najlepsze decyzje dzięki sprawdzonym wskazówkom od specjalistów z planz.pl

Co zawiera projekt

  • ✓ 3 x projekt architektoniczno-budowlany ➞ szczegóły
  • ✓ Projekty techniczne ➞ szczegóły
  • ✓ charakterystyka energetyczna (do projektów domów)
  • ✓ zgoda na zmiany w projekcie ➞ szczegóły
  • ✓ GRATIS: Wiertarka (do projektów w cenie od 3000 zł)
  • ✓ GRATIS: 16 projektów (drewutni, altany i wiaty)
  • ✓ GRATIS: tablica i dziennik budowy
  • ✓ GRATIS: przesyłka kurierska

Dodatki do projektu Bolero

Dodatki możesz kupić razem z projektem lub dokupić po czasie

[MG] Pakiet energooszczędny (0 zł)

[MG] Pakiet kotłownia na paliwo stałe (550 zł)

[MG] Kosztorys inwestorski (600 zł)

[MG] Pakiet instalacja fotowoltaiczna (550 zł)

[MG] Projekt instalacji odkurzania centralnego (550 zł)

[MG] Wersja elektroniczna projektu (600 zł)

[MG] Pakiet instalacja solarna (550 zł)

[MG] Ogrzewanie podłogowe (550 zł)

[MG] Pakiet pompa ciepła (550 zł)

[MG] Pakiet klimatyzacja (550 zł)

[MG] Pakiet wentylacja mechaniczna i kominek DGP (550 zł)

[MG] Pakiet płaszcz wodny (550 zł)

[MG] Projekt szamba (0 zł)

[MG] Dodatkowy egzemplarz (650 zł)

[Planz] Tablica budowlana (0 zł)

[Planz] Dziennik budowy (0 zł)

[Planz] Wiertarka udarowa (0 zł)

[Planz] Zgoda na zmiany w projekcie (0 zł)

[Planz] Projekty architektury ogrodowej (0 zł)

[Planz] Charakterystyka energetyczna, tylko dla domów całorocznych (0 zł)

Wysyłka i płatność za projekt Bolero

Koszty wysyłki

bezpłatnie (0zł)

Formy płatności

przelew zwykły / PayNow
przy odbiorze

Czas oczekiwania

3-10 dni roboczych

 

Komentarze / pytania do projektu domu Bolero

Marta

Podczas poszukiwań idealnego projektu domu dla rodziny, odkrycie projektu Bolero budzi sporo refleksji. Co sprawia, że ta koncepcja tak przyciąga uwagę? Czy to unikatowe połączenie tradycji i nowoczesności w jednocześnie prostych, a jednak wyrazistych liniach? A może intrygujące rozwiązania architektoniczne, które sprawiają, że każda przestrzeń w domu zdaje się mieć swoją specificzną funkcję i charakter? Jakie wyzwania mogą czekać na etapie realizacji tego budynku, aby w pełni oddać jego pierwotny zamysł? Z pewnością warto zagłębić się w detale, które mogą decydować o końcowym efekcie mieszkania w tak inspirującym miejscu.

FAQ

Czy możliwa jest modyfikacja układu pomieszczeń, na przykład wydzielenie dodatkowego pokoju lub rezygnacja z jednego stanowiska garażowego?

Czy projekt Bolero przewiduje możliwość zainstalowania nowoczesnych rozwiązań takich jak rekuperacja, instalacja fotowoltaiczna czy pompa ciepła?

Czy projekt domu Bolero nadaje się na działkę o nietypowym kształcie lub trudniejszym ukształtowaniu terenu, np. ze skarpą lub spadkiem?

Szacunkowy kosztorys dla projektu Bolero

Stan surowy zamknięty 249000 zł
Stan surowy zamknięty
Stan deweloperski 400000 zł
Stan deweloperski

Wycena szacunkowa, w kwotach netto, nie zawiera instalacji.

PRACOWNIA: MG Projekt