22 299 20 00 (pn-nd 9.30 do 19.30)

Gotowy projekt budynku BK-11 (ID: 32837)

1000 2025-12-23
BK-11 - 35.85m²
Projekt dostępny od ręki
Gwarantujemy najniższą cenę
1000 zł
(1100 zł brutto)
TANIEJ 100 zł
Najniższa cena z 30 dni przed obniżką: 1100 zł
1000 2025-12-23
W cenie projektu:
  • Tablica + dziennik budowy
  • 16 projektów ogrodowych
  • Darmowa wysyłka (kurier, paczkomat, pobranie)
  • 30 dni na zwrot
  • Pozwolenie na zmiany z podpisem i pieczęcią autora
22 299 20 00 (pn-nd 9.30 do 19.30)

 

Zawartość projektu

3 egzemplarze projektu archtektoniczno budowlanego + 3 egzemplarze projektu technicznego.
 
Dokumentacja projektowa zgodnie z nowymi przepisami WT2021 dostarczana jest w formie: 3+3 egzemplarze.
Czyli w dwóch częściach zawierających:
I - projekt architektoniczno-budowlany złożony z opisu technicznego oraz rysunków;
II - projekt techniczny, obejmujący: konstrukcję, instalacje (wodno-kanalizacyjną, c.o., elektryczną, gazową – jeśli występują) ze szczegółowym opisem i rysunkami oraz charakterystykę energetyczną.
 
W branży architektonicznej znajdują się:
- elewacje
- rzuty wszystkich kondygnacji
- więźba wraz z zestawieniem drewna
- rzut dachu oraz zestawienie stolarki otworowej
 
Na rysunkach konstrukcyjnych pokazane są:
- fundamenty wraz z przekrojami szczegółowymi
- rzut konstrukcji i stropu, na którym zlokalizowane są wszystkie elementy 
 
W części instalacji sanitarnych zawarte są:
- rzuty kondygnacji z poszczególnymi instalacjami oraz rozwinięcia
 
Projekt instalacji elektrycznych obejmuje:
- rozdzielnicę budynku
- lokalizację wszystkich gniazd wtykowych, źródeł światła i wyłączników.
 
Zawartość projektu nie dotyczy budynków gospodarczych, garaży oraz obiektów malej architektury.
Zawartość projektów bez rozrysowanej na rzucie kotłowni/łazienki/kuchni może nie obejmować schematów c.o. i wodno-kanalizacyjnych. W przypadku obiektów małej architektury - również może nie zawierać schematów instalacji elektrycznej.

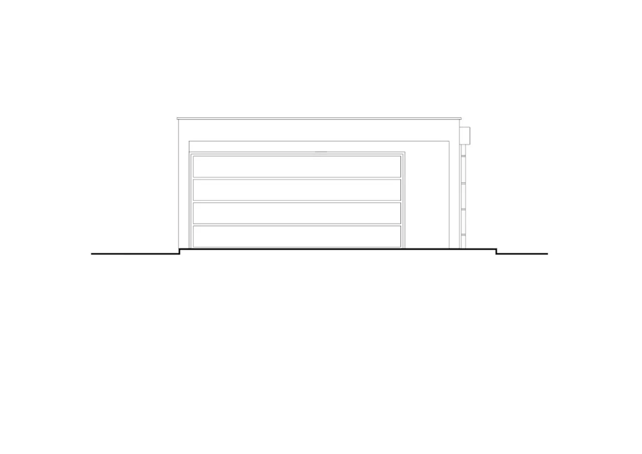
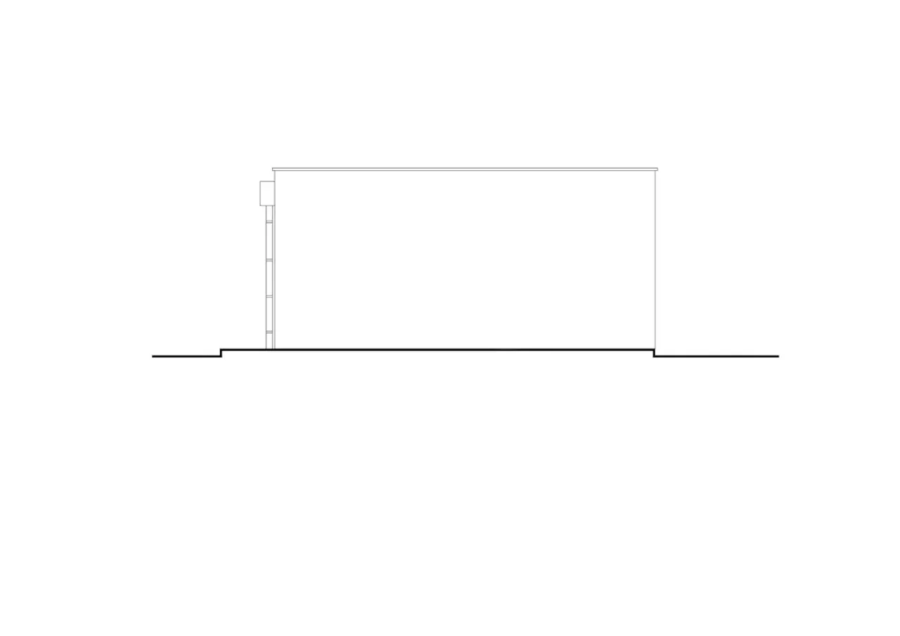
Rzuty gotowego projektu budynku BK-11

1. Garaż 35,85 m²

Zapoznaj się ze szczegółami projektu - pobierz bezpłatne rysunki do: BK-11

Wypełnij formularz i otrzymaj rysunki w pdf z dokładnymi wymiarami budynku i pomieszczeń (długość, szerokość, wysokość) dla projektu BK-11

Parametry Techniczne gotowego projektu domu BK-11

Pow. użytkowa 35.85 m²
Powierzchnia zabudowy 40.42 m²
Kondygnacje parterowy
Garaż 2 stanowiska
Technologia murowany
Obiekt inny
Wysokość budynku 3 m
Rodzaj dachu płaski
Obiekt inny (szczegóły) garaże
Kąt nachylenia dachu 3 °
Szerokość budynku 6.5 m
Długość budynku 6.5 m
Kalenica bez znaczenia
Kubatura 90.34 m³

Nasze prawdziwe opinie z Google

Opis projektu domu BK-11

Technologia wykonania:

  • Fundamenty: ławy fundamentowe żelbetowe monolityczne.
  • Ściany fundamentowe: bloczki betonowe.
  • Ściany konstrukcyjne: cegła silikatowa o gr. 18 cm.
  • Ściany działowe: brak.
  • Strop: żelbetowy monolityczny.
  • Dach płaski: pokryty papą termozgrzewalną.

Dodatki do projektu BK-11

Dodatki możesz kupić razem z projektem lub dokupić po czasie

[Planz] Tablica budowlana (0 zł)

[Planz] Dziennik budowy (0 zł)

[Planz] Wiertarka udarowa (0 zł)

[Planz] Zgoda na zmiany w projekcie (0 zł)

[Planz] Projekty architektury ogrodowej (0 zł)

[Planz] Charakterystyka energetyczna, tylko dla domów całorocznych (0 zł)

Wysyłka i płatność za projekt BK-11

Koszty wysyłki

bezpłatnie (0zł)

Formy płatności

przelew zwykły / PayNow
przy odbiorze

Czas oczekiwania

2-5 dni roboczych (jeśli projekt nie jest koncepcją)

 

Podobne projekty do budynku BK-11

699 zł

GP4 garaż dostawiany dwustanowiskowy

powierzchnia 34.5 m²
technologia murowany
stanowisk w garażu 2 stanowiska
kondygnacja parterowy
Zobacz projekt
TANIEJ O 350 zł
1299 zł 949 zł

MS-G4

powierzchnia 43.2 m²
technologia murowany
stanowisk w garażu 2 stanowiska
kondygnacja parterowy
Zobacz projekt
PRACOWNIA: BK-DOM mgr inż. arch. Jerzy Kołomycki