Orlando



Zawartość projektu
3 egzemplarze projektu archtektoniczno budowlanego + 3 egzemplarze projektu technicznego.
- opisu architektonicznego zawierającego m.in. opis przyjętych rozwiązań, zestawienia powierzchni (użytkowej, zabudowy, netto), kubatury oraz powierzchni poszczególnych pomieszczeń
2. Część rysunkowa projektu architektoniczno-budowlanego składa się między innymi z:
- rzutów kondygnacji użytkowych (parteru i jeśli występują: poddasza, piętra, piwnic)
- rzutu dachu
- przekroi poprzecznych i ewentualnie podłużnych
- elewacji
- zestawienia stolarki okiennej i drzwiowej
W części technicznej znajdują się:
- projekt konstrukcji
- projekt instalacji wodno-kanalizacyjnej
- projekt instalacji centralnego ogrzewania
- projekt instalacji gazowej (jeżeli występuje)
- projekt instalacji elektrycznej i odgromowej
Część opisowa projektu technicznego składa się z:
- opisu konstrukcyjnego zawierającego m.in. opis materiałów, z których wykonane są elementy konstrukcyjne, obliczenia statyczne wraz z przyjętymi obciążeniami, zestawienia drewna konstrukcyjnego i zestawienie stali
- opisu instalacji centralnego ogrzewania, wod-kan, gazowej (jeżeli występuje), elektrycznej i odgromowej precyzującego przyjęte w tych branżach rozwiązania, sposób wykonania instalacji i zapotrzebowania na poszczególne media
Część rysunkowa projektu technicznego składa się między innymi z:
- rzutu fundamentów
- rzutów konstrukcyjnych poszczególnych kondygnacji
- rysunków niezbędnych elementów konstrukcyjnych, zbrojenia płyt oraz innych elementów żelbetowych
- rzutu więźby dachowej
- rzutów instalacji centralnego ogrzewania oraz schematu technologicznego kotłowni (jeżeli występują)
- rzutów instalacji wod-kan
- rzutów oraz rozwinięcia instalacji gazowej (jeżeli występuje)
- rzutów instalacji elektrycznej
- schematu tablicy TM
- rzutu instalacji odgromowej
Do dokumentacji dołączona jest projektowana charakterystyka energetyczna.
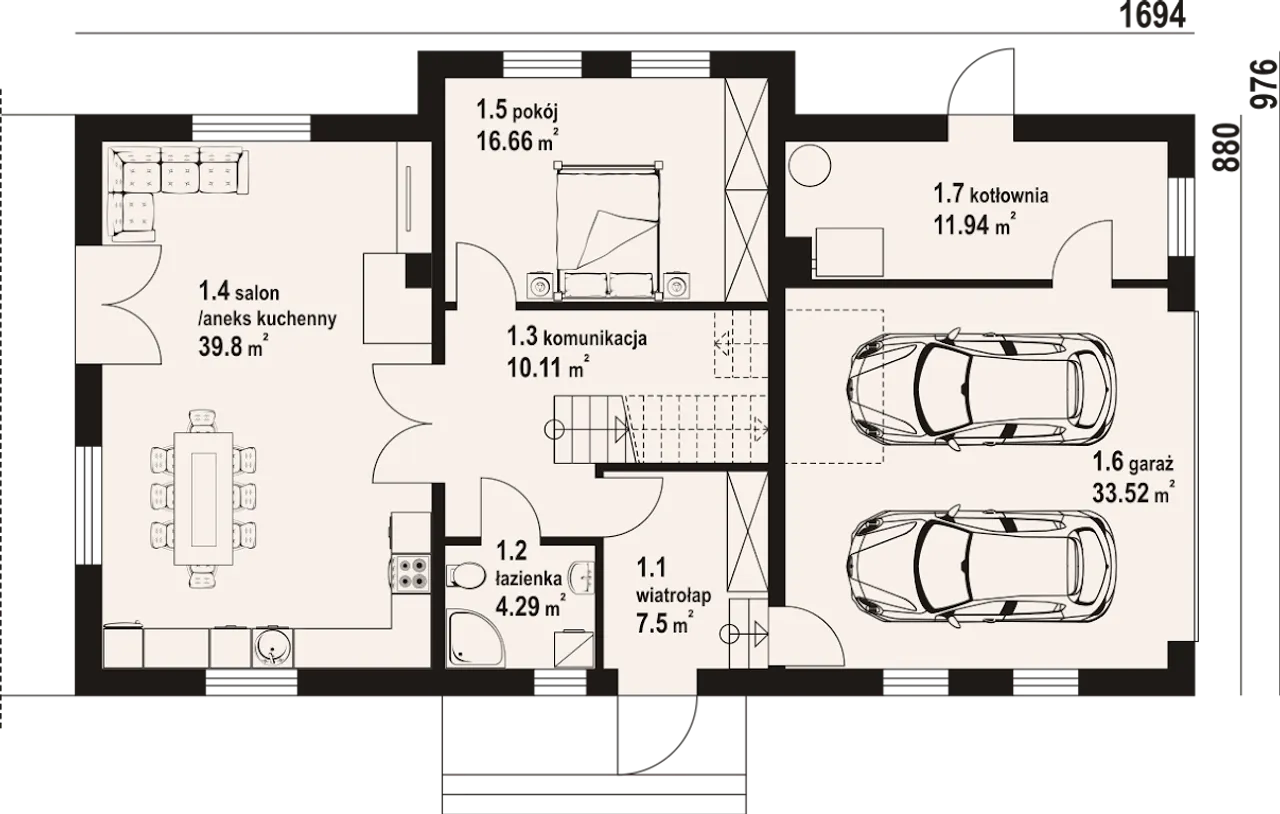
1. Wiatrołap | 7,50 m² |
2. łazienka | 4,29 m² |
3. Komunikacja | 10,11 m² |
4. Salon z aneksem kuchennym | 39,80 m² |
5. Pokój | 16,66 m² |
6. Garaż | 33,52 m² |
7. Kotłownia | 11,94 m² |
1. Komunikacja | 7,26 (7,26) m² |
2. Pokój | 24,29 (26,35) m² |
3. Pokój | 19,15 (21,00) m² |
4. Pokój | 14,10 (14,75) m² |
5. łazienka | 8,18 (8,43) m² |
6. Garderoba | 2,55 (3,35) m² |
7. Pokój rekreacyjny | 34,46 (38,37) m² |
Wypełnij formularz i otrzymaj rysunki w pdf z dokładnymi wymiarami budynku i pomieszczeń (długość, szerokość, wysokość) dla projektu Bielowice
Ilość pokoi 6 |
Pow. użytkowa 185.8 m² |
Powierzchnia zabudowy 154.54 m² |
Kondygnacje parterowy+poddasze |
Garaż 2 stanowiska |
Technologia murowany |
Szerokość działki 24.94 m |
Obiekt dom |
Typ domu jednorodzinny całoroczny |
Funkcje dodatkowe z lukarnami |
Długość budynku 9.76 m |
Piwnica bez podpiwniczenia |
Kubatura 880 m³ |
Rodzaj dachu dwuspadowy |
Powierzchnia dachu 246 m² |
Długość działki 17.76 m |
Ogrzewanie gaz, paliwo stałe |
Liczba łazieniek 2 |
Wysokość budynku 8.37 m |
Kominek kominek w projekcie |
Strop żelbetowy |
Styl budynku nowoczesny |
Kotłownia duża kotłownia |
Kalenica równoległa do drogi |
Szerokość budynku 16.94 m |
Taras z tarasem |
Kąt nachylenia dachu 35 ° |
Koszty budowy 500-550 tys., tylko z kosztorysem |
Ilość pokoi 6 |
Powierzchnia zabudowy 154.54 m² |
Garaż 2 stanowiska |
Szerokość działki 24.94 m |
Typ domu jednorodzinny całoroczny |
Długość budynku 9.76 m |
Kubatura 880 m³ |
Powierzchnia dachu 246 m² |
Ogrzewanie gaz, paliwo stałe |
Wysokość budynku 8.37 m |
Strop żelbetowy |
Kotłownia duża kotłownia |
Szerokość budynku 16.94 m |
Kąt nachylenia dachu 35 ° |
Pow. użytkowa 185.8 m² |
Kondygnacje parterowy+poddasze |
Technologia murowany |
Obiekt dom |
Funkcje dodatkowe z lukarnami |
Piwnica bez podpiwniczenia |
Rodzaj dachu dwuspadowy |
Długość działki 17.76 m |
Liczba łazieniek 2 |
Kominek kominek w projekcie |
Styl budynku nowoczesny |
Kalenica równoległa do drogi |
Taras z tarasem |
Koszty budowy 500-550 tys., tylko z kosztorysem |
Kupując projekt w technologii murowanej powinieneś budować dom murowany. Zupełna zmiana technologii na szkieletową wymaga przeprojektowania całego budynku ( zmieniają się obciążenia, fundamenty, konstrukcja dachu). Wydamy zgodę na takie przeprojektowanie jednak wiążę się to z dużymi kosztami. Istnieją firmy wykonawcze, które podejmują się zmiany technologii budowy bezpłatnie przy skorzystaniu z ich usług wykonawczych. Zdarza się, że pracownia architektoniczna przygotowuje warianty konkretnego projektu przewidując także inne technologie. Prosimy o sprawdzenie czy istnieje poszukiwana wersja projektu, w zakładce - warianty projektu.
Zwężenie/poszerzenie budynku* to nic innego jak zmiana w projekcie. Istnieje możliwość wprowadzenia takich zmian, we własnym zakresie (podczas adaptacji). *zwężenie/poszerzenie budynku nie powinno stanowić problemu w przypadku domów o dachu dwuspadowym jeśli wiąże się to z wydłużeniem/skróceniem kalenicy dachu.
Poznaj praktyczne porady ekspertów, które ułatwią Ci każdy etap budowy i od wyboru wymarzonego domu po jego wykończenie. Zyskaj pewność, że podejmujesz najlepsze decyzje dzięki sprawdzonym wskazówkom od specjalistów z planz.pl
Wycena szacunkowa, w kwotach netto, nie zawiera instalacji.
bezpłatnie (0zł)
przelew zwykły / PayNow
przy odbiorze
2-5 dni roboczych (jeśli projekt nie wymaga aktualizacji)
Wybierz wygodny dla Ciebie czas kontaktu z naszym Doradcą Technicznym.