Koralgol 2G



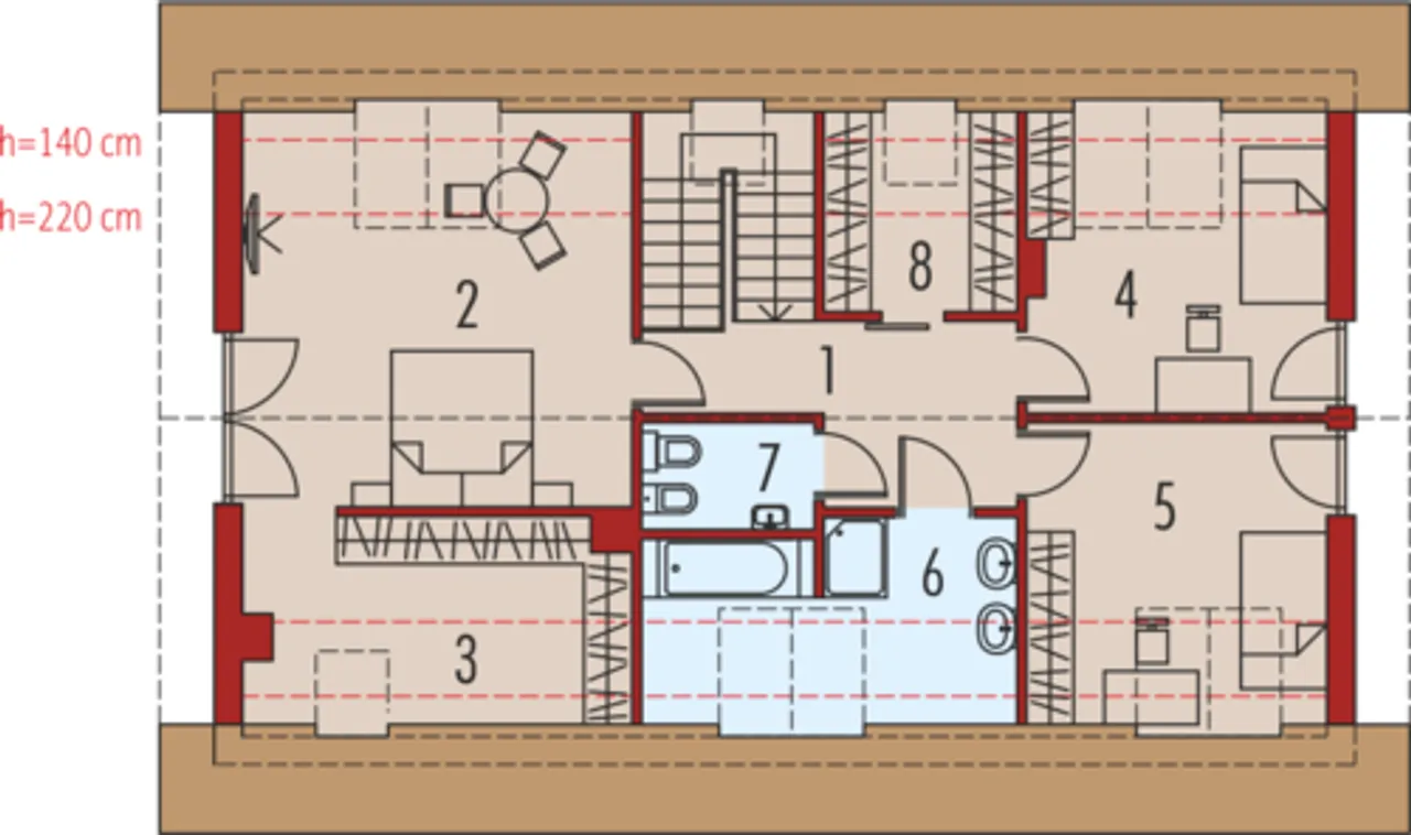
1. Wiatrołap | 2,57 m² |
2. Hol | 16,50 m² |
3. Kuchnia | 11,23 m² |
4. Spiżarnia | 1,67 m² |
5. Pokój dzienny, jadalnia | 30,38 m² |
6. Korytarz | 3,62 m² |
7. łazienka | 2,95 m² |
8. Kotłownia | 12,18 m² |
9. Garaż | 29,20 m² |
Wypełnij formularz i otrzymaj rysunki w pdf z dokładnymi wymiarami budynku i pomieszczeń (długość, szerokość, wysokość) dla projektu Benjamin II G2 Energo
Pow. użytkowa 144.93 m² |
Ilość pokoi 3 |
Powierzchnia zabudowy 140.46 m² |
Kondygnacje parterowy+poddasze |
Garaż 2 stanowiska |
Technologia murowany |
Szerokość działki 24.4 m |
Obiekt dom |
Typ domu jednorodzinny całoroczny |
Piwnica bez podpiwniczenia |
Kubatura 579.21 m³ |
Strop gęstożebrowy |
Powierzchnia dachu 200.71 m² |
Rodzaj garażu w bryle |
Długość działki 23.4 m |
Ogrzewanie gaz, paliwo stałe, pompa ciepła |
Kalenica równoległa do drogi |
Wysokość budynku 8.58 m |
Rodzaj dachu dwuspadowy |
Funkcje dodatkowe z dwoma wejściami |
Liczba łazieniek 2 |
Przechowywanie w kuchni spiżarnia |
Bryła budynku prosta bryła |
Kominek kominek w projekcie |
Szerokość budynku 14.7 m |
Styl budynku nowoczesny |
Kotłownia duża kotłownia |
Kąt nachylenia dachu 40 ° |
Długość budynku 10.1 m |
Koszty budowy 350-400 tys., tylko z kosztorysem |
Pow. użytkowa 144.93 m² |
Powierzchnia zabudowy 140.46 m² |
Garaż 2 stanowiska |
Szerokość działki 24.4 m |
Typ domu jednorodzinny całoroczny |
Kubatura 579.21 m³ |
Powierzchnia dachu 200.71 m² |
Długość działki 23.4 m |
Kalenica równoległa do drogi |
Rodzaj dachu dwuspadowy |
Liczba łazieniek 2 |
Bryła budynku prosta bryła |
Szerokość budynku 14.7 m |
Kotłownia duża kotłownia |
Długość budynku 10.1 m |
Ilość pokoi 3 |
Kondygnacje parterowy+poddasze |
Technologia murowany |
Obiekt dom |
Piwnica bez podpiwniczenia |
Strop gęstożebrowy |
Rodzaj garażu w bryle |
Ogrzewanie gaz, paliwo stałe, pompa ciepła |
Wysokość budynku 8.58 m |
Funkcje dodatkowe z dwoma wejściami |
Przechowywanie w kuchni spiżarnia |
Kominek kominek w projekcie |
Styl budynku nowoczesny |
Kąt nachylenia dachu 40 ° |
Koszty budowy 350-400 tys., tylko z kosztorysem |
Kupując projekt w technologii murowanej powinieneś budować dom murowany. Zupełna zmiana technologii na szkieletową wymaga przeprojektowania całego budynku ( zmieniają się obciążenia, fundamenty, konstrukcja dachu). Wydamy zgodę na takie przeprojektowanie jednak wiążę się to z dużymi kosztami. Istnieją firmy wykonawcze, które podejmują się zmiany technologii budowy bezpłatnie przy skorzystaniu z ich usług wykonawczych. Zdarza się, że pracownia architektoniczna przygotowuje warianty konkretnego projektu przewidując także inne technologie. Prosimy o sprawdzenie czy istnieje poszukiwana wersja projektu, w zakładce - warianty projektu.
Zwężenie/poszerzenie budynku* to nic innego jak zmiana w projekcie. Istnieje możliwość wprowadzenia takich zmian, we własnym zakresie (podczas adaptacji). *zwężenie/poszerzenie budynku nie powinno stanowić problemu w przypadku domów o dachu dwuspadowym jeśli wiąże się to z wydłużeniem/skróceniem kalenicy dachu.
Poznaj praktyczne porady ekspertów, które ułatwią Ci każdy etap budowy i od wyboru wymarzonego domu po jego wykończenie. Zyskaj pewność, że podejmujesz najlepsze decyzje dzięki sprawdzonym wskazówkom od specjalistów z planz.pl
Wycena szacunkowa, w kwotach netto, nie zawiera instalacji.
bezpłatnie (0zł)
przelew zwykły / PayNow
przy odbiorze
3-5 dni roboczych (jeśli projekt nie wymaga aktualizacji)
Wybierz wygodny dla Ciebie czas kontaktu z naszym Doradcą Technicznym.