Tymek AP garaż



1. Wiatrołap | 4,87 m² |
2. Hol | 11,12 m² |
3. Kuchnia | 6,71 m² |
4. Spiżarnia | 2,73 m² |
5. Pokój dzienny, jadalnia | 19,70 m² |
6. Gabinet | 8,56 m² |
7. łazienka | 2,01 m² |
8. Pom. gospodarcze | 4,56 m² |
9. Garaż | 19,37 m² |
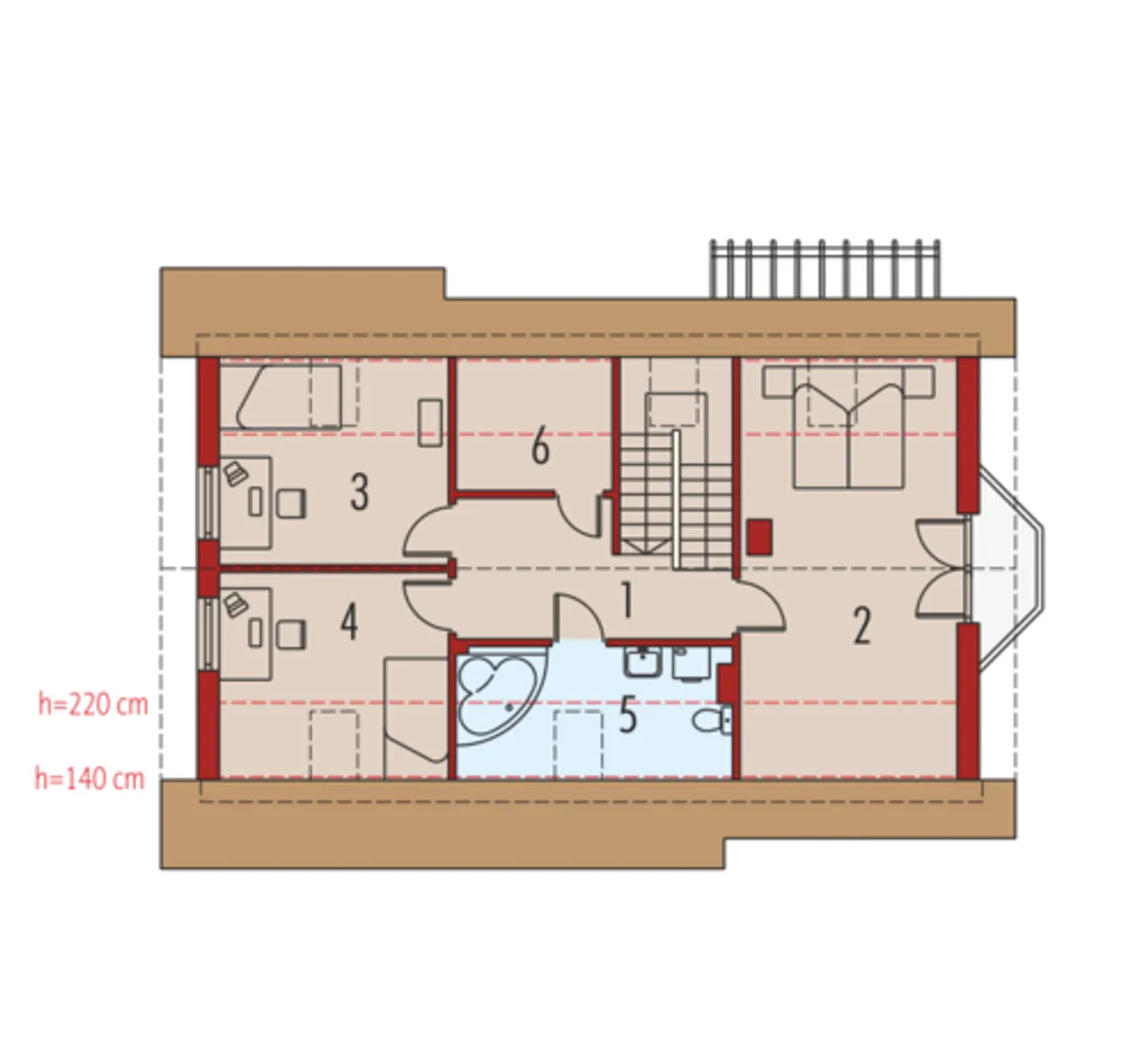
1. Korytarz | 9,11 m² |
2. Sypialnia | 15,56 m² |
3. Garderoba | 3,65 m² |
4. Sypialnia | 9,95 m² |
5. Sypialnia | 10,25 m² |
6. łazienka | 6,60 m² |
7. Garderoba | 3,96 m² |
Wypełnij formularz i otrzymaj rysunki w pdf z dokładnymi wymiarami budynku i pomieszczeń (długość, szerokość, wysokość) dla projektu Ben G1
Pow. użytkowa 119.36 m² |
Ilość pokoi 4 |
Powierzchnia zabudowy 102.28 m² |
Kondygnacje parterowy+poddasze |
Garaż 1 stanowisko |
Technologia murowany |
Szerokość działki 21.9 m |
Obiekt dom |
Typ domu jednorodzinny całoroczny |
Kubatura 422.52 m³ |
Powierzchnia dachu 182.1 m² |
Długość działki 18.2 m |
Styl budynku tradycyjny |
Wysokość budynku 8.7 m |
Kalenica równoległa do drogi |
Liczba łazieniek 1 |
Kąt nachylenia dachu 45 ° |
Szerokość budynku 13.9 m |
Rodzaj dachu dwuspadowy |
Kominek kominek w projekcie |
Długość budynku 7.7 m |
Przechowywanie w kuchni spiżarnia |
Piwnica bez podpiwniczenia |
Koszty budowy tylko z kosztorysem, 250-300 tys. |
Pow. użytkowa 119.36 m² |
Powierzchnia zabudowy 102.28 m² |
Garaż 1 stanowisko |
Szerokość działki 21.9 m |
Typ domu jednorodzinny całoroczny |
Powierzchnia dachu 182.1 m² |
Styl budynku tradycyjny |
Kalenica równoległa do drogi |
Kąt nachylenia dachu 45 ° |
Rodzaj dachu dwuspadowy |
Długość budynku 7.7 m |
Piwnica bez podpiwniczenia |
Ilość pokoi 4 |
Kondygnacje parterowy+poddasze |
Technologia murowany |
Obiekt dom |
Kubatura 422.52 m³ |
Długość działki 18.2 m |
Wysokość budynku 8.7 m |
Liczba łazieniek 1 |
Szerokość budynku 13.9 m |
Kominek kominek w projekcie |
Przechowywanie w kuchni spiżarnia |
Koszty budowy tylko z kosztorysem, 250-300 tys. |
Kupując projekt w technologii murowanej powinieneś budować dom murowany. Zupełna zmiana technologii na szkieletową wymaga przeprojektowania całego budynku ( zmieniają się obciążenia, fundamenty, konstrukcja dachu). Wydamy zgodę na takie przeprojektowanie jednak wiążę się to z dużymi kosztami. Istnieją firmy wykonawcze, które podejmują się zmiany technologii budowy bezpłatnie przy skorzystaniu z ich usług wykonawczych. Zdarza się, że pracownia architektoniczna przygotowuje warianty konkretnego projektu przewidując także inne technologie. Prosimy o sprawdzenie czy istnieje poszukiwana wersja projektu, w zakładce - warianty projektu.
Zwężenie/poszerzenie budynku* to nic innego jak zmiana w projekcie. Istnieje możliwość wprowadzenia takich zmian, we własnym zakresie (podczas adaptacji). *zwężenie/poszerzenie budynku nie powinno stanowić problemu w przypadku domów o dachu dwuspadowym jeśli wiąże się to z wydłużeniem/skróceniem kalenicy dachu.
Poznaj praktyczne porady ekspertów, które ułatwią Ci każdy etap budowy i od wyboru wymarzonego domu po jego wykończenie. Zyskaj pewność, że podejmujesz najlepsze decyzje dzięki sprawdzonym wskazówkom od specjalistów z planz.pl
Wycena szacunkowa, w kwotach netto, nie zawiera instalacji.
bezpłatnie (0zł)
przelew zwykły / PayNow
przy odbiorze
3-5 dni roboczych (jeśli projekt nie wymaga aktualizacji)
Wybierz wygodny dla Ciebie czas kontaktu z naszym Doradcą Technicznym.