22 299 20 00 (pn-nd 9.30 do 19.30)

Gotowy projekt domu Barcice (ID: 34466)

4999 2025-11-24
Barcice - 105.93m²
Projekt dostępny od ręki
Gwarantujemy najniższą cenę
4999 zł
W cenie projektu:
📣 GRATIS: WIERTARKA UDAROWA
  • Tablica + dziennik budowy
  • 16 projektów ogrodowych
  • Darmowa wysyłka (kurier, paczkomat, pobranie)
  • 30 dni na zwrot
  • Pozwolenie na zmiany z podpisem i pieczęcią autora
  • GRATIS: Wiertarka Udarowa
22 299 20 00 (pn-nd 9.30 do 19.30)

Zawartość projektu

3 egzemplarze projektu archtektoniczno budowlanego + 3 egzemplarze projektu technicznego.

 
Dokumentacja projektowa zgodnie z nowymi przepisami WT2021 dostarczana jest w formie: 3+3 egzemplarze.
Czyli w dwóch częściach zawierających:
I - projekt architektoniczno-budowlany złożony z opisu technicznego oraz rysunków;
II - projekt techniczny, obejmujący: konstrukcję, instalacje (wodno-kanalizacyjną, c.o., elektryczną, gazową – jeśli występują) ze szczegółowym opisem i rysunkami oraz charakterystykę energetyczną.
 
W części architektonicznej znajdują się:
 
1. Część opisowa projektu architektoniczno-budowlanego składa się z:

- opisu architektonicznego zawierającego m.in. opis przyjętych rozwiązań, zestawienia powierzchni (użytkowej, zabudowy, netto), kubatury oraz powierzchni poszczególnych pomieszczeń

2. Część rysunkowa projektu architektoniczno-budowlanego składa się między innymi z:

- rzutów kondygnacji użytkowych (parteru i jeśli występują: poddasza, piętra, piwnic)
- rzutu dachu
- przekroi poprzecznych i ewentualnie podłużnych
- elewacji
- zestawienia stolarki okiennej i drzwiowej

W części technicznej znajdują się:

- projekt konstrukcji
- projekt instalacji wodno-kanalizacyjnej
- projekt instalacji centralnego ogrzewania
- projekt instalacji gazowej (jeżeli występuje)
- projekt instalacji elektrycznej i odgromowej

Część opisowa projektu technicznego składa się z:

- opisu konstrukcyjnego zawierającego m.in. opis materiałów, z których wykonane są elementy konstrukcyjne, obliczenia statyczne wraz z przyjętymi obciążeniami, zestawienia drewna konstrukcyjnego i zestawienie stali
- opisu instalacji centralnego ogrzewania, wod-kan, gazowej (jeżeli występuje), elektrycznej i odgromowej precyzującego przyjęte w tych branżach rozwiązania, sposób wykonania instalacji i zapotrzebowania na poszczególne media

Część rysunkowa projektu technicznego składa się między innymi z:

- rzutu fundamentów
- rzutów konstrukcyjnych poszczególnych kondygnacji
- rysunków niezbędnych elementów konstrukcyjnych, zbrojenia płyt oraz innych elementów żelbetowych
- rzutu więźby dachowej
- rzutów instalacji centralnego ogrzewania oraz schematu technologicznego kotłowni (jeżeli występują)
- rzutów instalacji wod-kan
- rzutów oraz rozwinięcia instalacji gazowej (jeżeli występuje)
- rzutów instalacji elektrycznej
- schematu tablicy TM
- rzutu instalacji odgromowej

Do dokumentacji dołączona jest projektowana charakterystyka energetyczna.

Zawartość projektu nie dotyczy budynków gospodarczych, garaży oraz obiektów malej architektury.
Zawartość projektów bez rozrysowanej na rzucie kotłowni/łazienki/kuchni może nie obejmować schematów c.o. i wodno-kanalizacyjnych. W przypadku obiektów małej architektury - również może nie zawierać schematów instalacji elektrycznej.

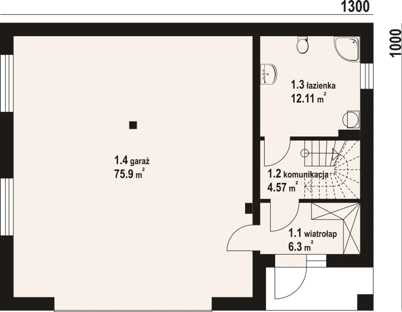
Rzuty gotowego projektu domu Barcice

1. Wiatrołap 6,30 m²
2. Komunikacja 4,57 m²
3. łazienka 12,11 m²
4. Garaż 75,90 m²
1. Salon+kuchnia 65,34 m²
2. łazienka 8,50 m²
3. Pokój 9,11 m²

Zapoznaj się ze szczegółami projektu - pobierz bezpłatne rysunki do: Barcice

Wypełnij formularz i otrzymaj rysunki w pdf z dokładnymi wymiarami budynku i pomieszczeń (długość, szerokość, wysokość) dla projektu Barcice

Parametry Techniczne gotowego projektu domu Barcice

Pow. użytkowa 105.93 m²
Powierzchnia zabudowy 130 m²
Kondygnacje parterowy+poddasze
Garaż 2 stanowiska
Technologia murowany
Szerokość działki 21 m
Obiekt dom
Typ domu jednorodzinny całoroczny
Długość działki 14 m
Kąt nachylenia dachu 38 °
Rodzaj dachu dwuspadowy
Kubatura 760 m³
Kominek kominek opcjonalnie
Ogrzewanie gaz
Powierzchnia dachu 198 m²
Kalenica równoległa do drogi
Piwnica bez podpiwniczenia
Wysokość budynku 8.37 m
Styl budynku nowoczesny

Energia i ogrzewanie gotowego projektu domu Barcice

Źródło ogrzewania:
gaz
Wentylacja: Grawitacyjna

Nasze prawdziwe opinie z Google

Opis projektu domu Barcice

Projekt domu nowoczesnego Barcice - dom jednorodzinny, murowany z garażem 2-stanowiskowym

Odkryj projekt domu, który harmonijnie łączy nowoczesną stylistykę z funkcjonalnością dla całej rodziny. Dom Barcice to idealny wybór dla osób szukających wygodnych rozwiązań i ponadczasowej architektury sprzyjającej codziennemu życiu. Ten efektowny dom parterowy z użytkowym poddaszem i dwuspadowym dachem podkreśla nowoczesny charakter bryły oraz funkcjonalność przestrzeni.

Przemyślany układ wnętrza oraz przestronny, dwustanowiskowy garaż to tylko część atutów, które wyróżniają projekt Barcice na tle innych propozycji dostępnych na rynku.

Dlaczego warto wybrać projekt domu Barcice?

  • Dwustanowiskowy garaż: Swoboda parkowania oraz miejsce na przechowywanie sprzętu gwarantują wygodę i porządek.
  • Nowoczesny styl budynku: Elegancka bryła zachwyca prostą linią, świetnie prezentując się na działkach miejskich i podmiejskich.
  • Kalenica równoległa do drogi: Ułatwia usytuowanie domu na większości działek, nadaje posesji reprezentacyjny charakter.
  • Kąt nachylenia dachu 38°: Pozwala na efektywne wykorzystanie poddasza oraz zapewnia optymalne warunki termoizolacyjne.
  • Możliwość dołożenia kominka: Stwarza okazję do stworzenia przytulnej strefy relaksu w chłodniejsze wieczory.

Dom Barcice - funkcjonalność, styl, przemyślany układ

Projekt domu Barcice przewiduje nowoczesną, murowaną konstrukcję gwarantującą trwałość oraz wysoką odporność na czynniki zewnętrzne. Parter połączony jest z poddaszem użytkowym, co zapewnia elastyczność aranżacji pomieszczeń i umożliwia dostosowanie wnętrz do indywidualnych potrzeb mieszkańców. Brak podpiwniczenia pozwolił na lepszą optymalizację budżetu podczas realizacji inwestycji oraz szybsze tempo prac budowlanych.

Dwuspadowy dach nie tylko podnosi walory estetyczne, lecz także usprawnia gospodarowanie energią oraz doświetlenie wnętrz. Kalenica równoległa do drogi sprawia, że dom Barcice bez trudu wpisuje się w różnorodne plany zabudowy, tworząc spójną, reprezentacyjną linię zabudowy. Duży, dwustanowiskowy garaż zwiększa codzienną wygodę i bezpieczeństwo, zapewniając miejsce zarówno na pojazdy, jak i narzędzia ogrodowe czy rowery.

Decydując się na projekt Barcice, zyskujesz dom rodzinny do całorocznego zamieszkania, osadzony w aktualnych trendach architektonicznych - z opcją adaptacji kominka, funkcjonalnym poddaszem użytkowym i nowoczesną bryłą. Dom wybudowany na podstawie projektu Barcice będzie doskonałą inwestycją na lata.

Zalety projektu domu Barcice - Twoje priorytety pod jednym dachem

  • Nowoczesny styl i czytelny układ funkcjonalny
  • Praktyczny garaż dwustanowiskowy
  • Energooszczędny, dwuspadowy dach
  • Możliwość aranżacji kominka dla klimatycznych wieczorów
  • Elastyczność dopasowania wnętrz do własnych potrzeb

Nie zwlekaj - wybierz projekt domu Barcice i zacznij budować nowoczesną przestrzeń dla swojej rodziny! Sprawdź dostępność dokumentacji i skonsultuj szczegóły realizacji jeszcze dziś.



Częste pytania

Czy projekty z Planz.pl są kompletne?

Tak. Projekty dostępne na Planz.pl zawierają pełną dokumentację potrzebną do uzyskania pozwolenia na budowę i stanowią gwarancję sprawnej realizacji budowy.

Jesteśmy oficjalnym partnerem ponad 50 pracowni architektonicznych z całej Polski - dlatego każdy projekt pochodzi wyłącznie od autorów zrzeszonych w Izbie Architektów RP. 

Planz.pl to polska firma działającą na rynku od 15 lat. Mamy tysiące zadowolonych klientów, doskonałe opinie i oferujemy wsparcie również po zakupie, doradzamy, pomagamy w adaptacji i pozostajemy w kontakcie na każdym etapie inwestycji.

Dodatkowo do każdego projektu dodajemy tablicę informacyjną, dziennik budowy oraz 16 projektów elektronicznych drewnianej architektury ogrodowej. A dzięki naszej współpracy z producentami sprzętu elektrycznego, oferujemy możliwość otrzymania np. Wiertarki udarowej w formie atrakcyjnego gratisu.

Wybierając Planz.pl, otrzymujesz ten sam oryginalny projekt od autora, wzbogacony o realne dodatki, które ułatwiają rozpoczęcie budowy.

Czy mogę wprowadzić zmiany w projekcie?

Co zrobić gdy wybrany dom nie mieści się na działce?

Jakie zmiany można wprowadzić w projekcie?

Porady ekspertów

Poznaj praktyczne porady ekspertów, które ułatwią Ci każdy etap budowy i od wyboru wymarzonego domu po jego wykończenie. Zyskaj pewność, że podejmujesz najlepsze decyzje dzięki sprawdzonym wskazówkom od specjalistów z planz.pl

Co zawiera projekt

  • ✓ 3 x projekt architektoniczno-budowlany ➞ szczegóły
  • ✓ Projekty techniczne ➞ szczegóły
  • ✓ charakterystyka energetyczna (do projektów domów)
  • ✓ zgoda na zmiany w projekcie ➞ szczegóły
  • ✓ GRATIS: Wiertarka (do projektów w cenie od 3000 zł)
  • ✓ GRATIS: 16 projektów (drewutni, altany i wiaty)
  • ✓ GRATIS: tablica i dziennik budowy
  • ✓ GRATIS: przesyłka kurierska

Dodatki do projektu Barcice

Dodatki możesz kupić razem z projektem lub dokupić po czasie

[Planz] Tablica budowlana (0 zł)

[Planz] Dziennik budowy (0 zł)

[Planz] Wiertarka udarowa (0 zł)

[Planz] Zgoda na zmiany w projekcie (0 zł)

[Planz] Projekty architektury ogrodowej (0 zł)

[Planz] Charakterystyka energetyczna, tylko dla domów całorocznych (0 zł)

Wysyłka i płatność za projekt Barcice

Koszty wysyłki

bezpłatnie (0zł)

Formy płatności

przelew zwykły / PayNow
przy odbiorze

Czas oczekiwania

2-5 dni roboczych (jeśli projekt nie wymaga aktualizacji)

 

Komentarze / pytania do projektu domu Barcice

Magdalena

Projekt domu Barcice robi wrażenie. Prosty design przyciąga wzrok. Elewacja jest nowoczesna i elegancka. Duże okna dodają uroku. Projekt z pewnością spełnia oczekiwania rodzin. Funkcjonalność wnętrza imponuje. Przestronność jest jego atutem. Doceniam układ pomieszczeń. Układ jest przemyślany i logiczny. Dach wygląda stylowo. Architektura tego domu zachwyca. Rozważam zakup projektu i budowę tego domu.

FAQ

Czy dom Barcice jest energooszczędny i przystosowany do nowoczesnych instalacji, takich jak pompa ciepła, fotowoltaika czy rekuperacja?

Czy można wprowadzić zmiany w układzie pomieszczeń, np. dodać pokój lub zmienić lokalizację kuchni?

Czy projekt domu Barcice można dostosować do pochyłej lub nietypowej działki, np. z wjazdem od południa?

PRACOWNIA: Dom-Projekt Kinga i Władysław Piwowarczyk