Asymmetricus I PG2



1. Wiatrołap | 4,81 m² |
2. Pom. gospodarcze | 9,20 m² |
3. Garaż | 25,73 m² |
4. łazienka | 3,83 m² |
5. Pokój | 14,70 m² |
6. Komunikacja | 10,19 m² |
7. Pokój dzienny z jadalnią | 31,95 m² |
8. Kuchnia | 7,35 m² |
9. Spiżarnia | 2,65 m² |
1. Komunikacja | 10,40 m² |
2. Pokój | 12,42 (14,83) m² |
3. Garderoba | 4,67 (5,64) m² |
4. Sypialnia | 15,69 (18,74) m² |
5. Pokój | 11,76 (13,80) m² |
6. łazienka | 5,35 (11,07) m² |
7. Pralnia i suszarnia | 4,86 (10,25) m² |
8. Strych | 16,42 (25,73) m² |
Wypełnij formularz i otrzymaj rysunki w pdf z dokładnymi wymiarami budynku i pomieszczeń (długość, szerokość, wysokość) dla projektu Asymmetricus I G1
Pow. użytkowa 133.31 m² |
Ilość pokoi 5 |
Powierzchnia zabudowy 143.8 m² |
Kondygnacje parterowy+poddasze |
Garaż 1 stanowisko |
Technologia murowany |
Szerokość działki 23.65 m |
Obiekt dom |
Typ domu jednorodzinny całoroczny |
Wysokość budynku 8.95 m |
Długość działki 20.45 m |
Styl budynku nowoczesny |
Strop żelbetowy |
Liczba łazieniek 2 |
Kąt nachylenia dachu 40 ° |
Kalenica równoległa do drogi |
Szerokość budynku 15.65 m |
Rodzaj garażu przyklejony |
Kominek kominek w projekcie |
Funkcje dodatkowe z pralnią |
Długość budynku 9.65 m |
Rodzaj dachu dwuspadowy |
Piwnica bez podpiwniczenia |
Kubatura 915.95 m³ |
Przechowywanie w kuchni spiżarnia |
Koszty budowy 300-350 tys., tylko z kosztorysem |
Pow. użytkowa 133.31 m² |
Powierzchnia zabudowy 143.8 m² |
Garaż 1 stanowisko |
Szerokość działki 23.65 m |
Typ domu jednorodzinny całoroczny |
Długość działki 20.45 m |
Strop żelbetowy |
Kąt nachylenia dachu 40 ° |
Szerokość budynku 15.65 m |
Kominek kominek w projekcie |
Długość budynku 9.65 m |
Piwnica bez podpiwniczenia |
Przechowywanie w kuchni spiżarnia |
Ilość pokoi 5 |
Kondygnacje parterowy+poddasze |
Technologia murowany |
Obiekt dom |
Wysokość budynku 8.95 m |
Styl budynku nowoczesny |
Liczba łazieniek 2 |
Kalenica równoległa do drogi |
Rodzaj garażu przyklejony |
Funkcje dodatkowe z pralnią |
Rodzaj dachu dwuspadowy |
Kubatura 915.95 m³ |
Koszty budowy 300-350 tys., tylko z kosztorysem |
Wybierz projekt Asymmetricus I G1, by zrealizować wizję nowoczesnego, funkcjonalnego domu dla całej rodziny. Ten elegancki projekt jednorodzinny łączy aktualne trendy architektoniczne z przemyślaną organizacją przestrzeni. Dom na solidnej, murowanej konstrukcji z energooszczędnymi rozwiązaniami sprawdzi się dla osób stawiających na jakość i wygodę codziennego życia.
Wyróżniający się dwuspadowym dachem, przylegającym garażem na jedno stanowisko oraz przestronną strefą dzienną, projekt Asymmetricus I G1 to odpowiedź na potrzeby nowoczesnych rodzin. Przejrzysty układ pozwala na wygodne aranżowanie wnętrza i bezproblemowe funkcjonowanie mieszkańców przez cały rok.
Dom Asymmetricus I G1 to konstrukcja wykorzystująca nowatorską monolityczną płytę żelbetową jako strop, gwarantującą niezwykłą stabilność. Zastosowanie ścian z pustaka ceramicznego o grubości 25 cm, ocieplonych 20-centymetrowym styropianem marki Termo Organika oraz kompletnym wykończeniem tynkiem, pozwala na zachowanie optymalnego mikroklimatu we wnętrzu przez cały rok.
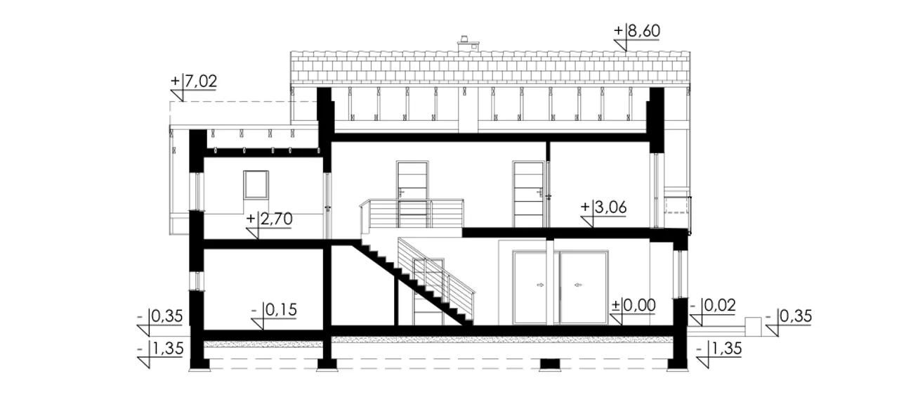
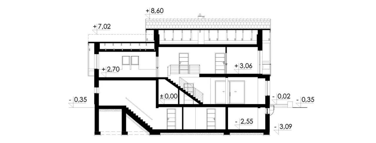
Wnętrza rozmieszczono na dwóch kondygnacjach: parter i użytkowe poddasze. Do dyspozycji domowników jest wygodna, dwubiegowa klatka schodowa żelbetowa ze spocznikiem, a nad częścią mieszkalną zastosowano ścianę kolankową o wysokości 126,5 cm. Dach o kącie nachylenia 40° wykonano z drewna i przykryto solidną dachówką ceramiczną - trwałość i estetyka idą tu w parze.
W projekcie przewidziano stolarkę okienną i drzwi PVC z roletami zewnętrznymi oraz nowoczesną bramę segmentową do garażu. Budynek nie posiada podpiwniczenia, co upraszcza budowę i ogranicza jej koszty. Kocioł gazowy to nowoczesne i praktyczne rozwiązanie do ogrzewania.
Nie zwlekaj: zamów projekt Asymmetricus I G1 i ciesz się nowoczesnym domem, który stanie się sercem rodzinnego życia! Skorzystaj z dopracowanych rozwiązań i postaw budynek, który połączy trwałość, funkcjonalność i estetykę. Przekonaj się, jak praktycznie i wygodnie można mieszkać we własnym domu.
Kupując projekt w technologii murowanej powinieneś budować dom murowany. Zupełna zmiana technologii na szkieletową wymaga przeprojektowania całego budynku ( zmieniają się obciążenia, fundamenty, konstrukcja dachu). Wydamy zgodę na takie przeprojektowanie jednak wiążę się to z dużymi kosztami. Istnieją firmy wykonawcze, które podejmują się zmiany technologii budowy bezpłatnie przy skorzystaniu z ich usług wykonawczych. Zdarza się, że pracownia architektoniczna przygotowuje warianty konkretnego projektu przewidując także inne technologie. Prosimy o sprawdzenie czy istnieje poszukiwana wersja projektu, w zakładce - warianty projektu.
Zwężenie/poszerzenie budynku* to nic innego jak zmiana w projekcie. Istnieje możliwość wprowadzenia takich zmian, we własnym zakresie (podczas adaptacji). *zwężenie/poszerzenie budynku nie powinno stanowić problemu w przypadku domów o dachu dwuspadowym jeśli wiąże się to z wydłużeniem/skróceniem kalenicy dachu.
Poznaj praktyczne porady ekspertów, które ułatwią Ci każdy etap budowy i od wyboru wymarzonego domu po jego wykończenie. Zyskaj pewność, że podejmujesz najlepsze decyzje dzięki sprawdzonym wskazówkom od specjalistów z planz.pl
Wycena szacunkowa, w kwotach netto, nie zawiera instalacji.
bezpłatnie (0zł)
przelew zwykły / PayNow
przy odbiorze
3-5 dni roboczych
Wybierz wygodny dla Ciebie czas kontaktu z naszym Doradcą Technicznym.