Szkwał



1. Wiatrołap | 3,05 m² |
2. Korytarz | 12,43 m² |
3. Salon + jadalnia + kuchnia | 38,09 m² |
4. Schowek | 6,10 m² |
5. Kotłownia | 2,34 m² |
6. łazienka | 4,75 m² |
7. Garaż | 27,15 m² |
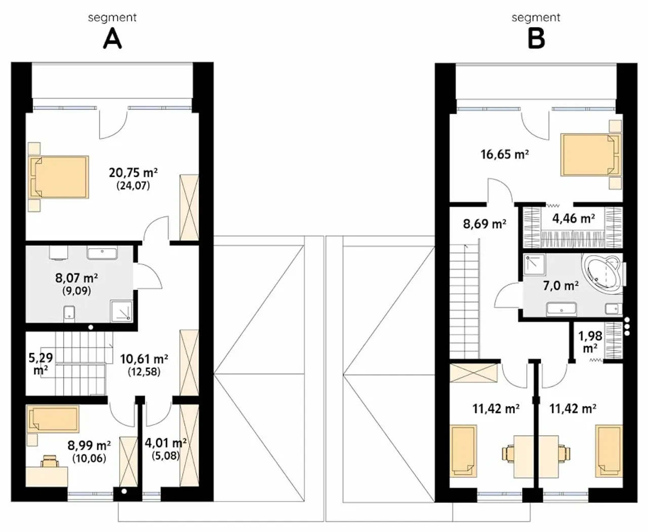
1. Schody | 5,29 m² |
2. Przedpokój | 10,61 (12,58) m² |
3. Sypialnia | 20,75 (24,07) m² |
4. łazienka | 8,07 (9,09) m² |
5. Pokój | 8,99 (10,06) m² |
6. Garderoba | 4,01 (5,08) m² |
Wypełnij formularz i otrzymaj rysunki w pdf z dokładnymi wymiarami budynku i pomieszczeń (długość, szerokość, wysokość) dla projektu Aspen
Ilość pokoi 3 |
Pow. użytkowa 124.48 m² |
Powierzchnia zabudowy 130.13 m² |
Kondygnacje parterowy+poddasze |
Garaż 1 stanowisko |
Technologia murowany |
Szerokość działki 28.56 m |
Obiekt dom |
Typ domu bliźniak i dwurodzinny |
Wysokość budynku 8.23 m |
Styl budynku nowoczesny |
Szerokość budynku 20.56 m |
Liczba łazieniek 2 |
Kąt nachylenia dachu 43 ° |
Strop żelbetowy |
Długość budynku 15.04 m |
Rodzaj garażu przyklejony |
Piwnica bez podpiwniczenia |
Kalenica prostopadła do drogi |
Kubatura 496 m³ |
Rodzaj dachu dwuspadowy |
Funkcje dodatkowe z dwoma wejściami |
Powierzchnia dachu 169.13 m² |
Długość działki 24.04 m |
Koszty budowy tylko z kosztorysem, 250-300 tys. |
Ilość pokoi 3 |
Powierzchnia zabudowy 130.13 m² |
Garaż 1 stanowisko |
Szerokość działki 28.56 m |
Typ domu bliźniak i dwurodzinny |
Styl budynku nowoczesny |
Liczba łazieniek 2 |
Strop żelbetowy |
Rodzaj garażu przyklejony |
Kalenica prostopadła do drogi |
Rodzaj dachu dwuspadowy |
Powierzchnia dachu 169.13 m² |
Koszty budowy tylko z kosztorysem, 250-300 tys. |
Pow. użytkowa 124.48 m² |
Kondygnacje parterowy+poddasze |
Technologia murowany |
Obiekt dom |
Wysokość budynku 8.23 m |
Szerokość budynku 20.56 m |
Kąt nachylenia dachu 43 ° |
Długość budynku 15.04 m |
Piwnica bez podpiwniczenia |
Kubatura 496 m³ |
Funkcje dodatkowe z dwoma wejściami |
Długość działki 24.04 m |
Kupując projekt w technologii murowanej powinieneś budować dom murowany. Zupełna zmiana technologii na szkieletową wymaga przeprojektowania całego budynku ( zmieniają się obciążenia, fundamenty, konstrukcja dachu). Wydamy zgodę na takie przeprojektowanie jednak wiążę się to z dużymi kosztami. Istnieją firmy wykonawcze, które podejmują się zmiany technologii budowy bezpłatnie przy skorzystaniu z ich usług wykonawczych. Zdarza się, że pracownia architektoniczna przygotowuje warianty konkretnego projektu przewidując także inne technologie. Prosimy o sprawdzenie czy istnieje poszukiwana wersja projektu, w zakładce - warianty projektu.
Zwężenie/poszerzenie budynku* to nic innego jak zmiana w projekcie. Istnieje możliwość wprowadzenia takich zmian, we własnym zakresie (podczas adaptacji). *zwężenie/poszerzenie budynku nie powinno stanowić problemu w przypadku domów o dachu dwuspadowym jeśli wiąże się to z wydłużeniem/skróceniem kalenicy dachu.
Poznaj praktyczne porady ekspertów, które ułatwią Ci każdy etap budowy i od wyboru wymarzonego domu po jego wykończenie. Zyskaj pewność, że podejmujesz najlepsze decyzje dzięki sprawdzonym wskazówkom od specjalistów z planz.pl
Wycena szacunkowa, w kwotach netto, nie zawiera instalacji.
bezpłatnie (0zł)
przelew zwykły / PayNow
przy odbiorze
3-5 dni roboczych (jeśli projekt nie jest koncepcją)
Wybierz wygodny dla Ciebie czas kontaktu z naszym Doradcą Technicznym.