Tymek AP garaż



1. Wiatrołap | 4,16 m² |
2. Hol | 12,81 m² |
3. Kuchnia | 11,51 m² |
4. Spiżarnia | 2,36 m² |
5. Pokój dzienny, jadalnia | 24,95 m² |
6. Toaleta | 2,76 m² |
7. Kotłownia | 7,11 m² |
8. Garaż | 21,00 m² |
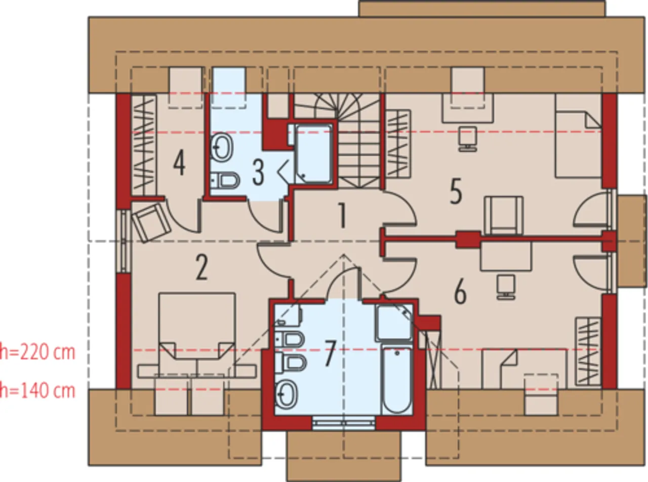
1. Korytarz | 5,23 m² |
2. Sypialnia | 12,77 m² |
3. łazienka | 3,77 m² |
4. Garderoba | 2,74 m² |
5. Sypialnia | 12,91 m² |
6. Sypialnia | 11,93 m² |
7. łazienka | 8,60 m² |
Wypełnij formularz i otrzymaj rysunki w pdf z dokładnymi wymiarami budynku i pomieszczeń (długość, szerokość, wysokość) dla projektu Arizona II G1
Pow. użytkowa 116.5 m² |
Ilość pokoi 3 |
Powierzchnia zabudowy 109.45 m² |
Kondygnacje parterowy+poddasze |
Garaż 1 stanowisko |
Technologia murowany |
Szerokość działki 20.6 m |
Obiekt dom |
Typ domu jednorodzinny całoroczny |
Długość budynku 9 m |
Piwnica bez podpiwniczenia |
Strop gęstożebrowy |
Kubatura 434.71 m³ |
Rodzaj garażu w bryle |
Ogrzewanie gaz, paliwo stałe |
Kalenica równoległa do drogi |
Powierzchnia dachu 181 m² |
Rodzaj dachu dwuspadowy |
Długość działki 21.9 m |
Funkcje dodatkowe z lukarnami |
Wysokość budynku 7.9 m |
Przechowywanie w kuchni spiżarnia |
Bryła budynku prosta bryła |
Liczba łazieniek 2 |
Styl budynku nowoczesny |
Kominek kominek w projekcie |
Kąt nachylenia dachu 40 ° |
Szerokość budynku 12.6 m |
Kotłownia duża kotłownia |
Koszty budowy tylko z kosztorysem, 250-300 tys. |
Pow. użytkowa 116.5 m² |
Powierzchnia zabudowy 109.45 m² |
Garaż 1 stanowisko |
Szerokość działki 20.6 m |
Typ domu jednorodzinny całoroczny |
Piwnica bez podpiwniczenia |
Kubatura 434.71 m³ |
Ogrzewanie gaz, paliwo stałe |
Powierzchnia dachu 181 m² |
Długość działki 21.9 m |
Wysokość budynku 7.9 m |
Bryła budynku prosta bryła |
Styl budynku nowoczesny |
Kąt nachylenia dachu 40 ° |
Kotłownia duża kotłownia |
Ilość pokoi 3 |
Kondygnacje parterowy+poddasze |
Technologia murowany |
Obiekt dom |
Długość budynku 9 m |
Strop gęstożebrowy |
Rodzaj garażu w bryle |
Kalenica równoległa do drogi |
Rodzaj dachu dwuspadowy |
Funkcje dodatkowe z lukarnami |
Przechowywanie w kuchni spiżarnia |
Liczba łazieniek 2 |
Kominek kominek w projekcie |
Szerokość budynku 12.6 m |
Koszty budowy tylko z kosztorysem, 250-300 tys. |
Kupując projekt w technologii murowanej powinieneś budować dom murowany. Zupełna zmiana technologii na szkieletową wymaga przeprojektowania całego budynku ( zmieniają się obciążenia, fundamenty, konstrukcja dachu). Wydamy zgodę na takie przeprojektowanie jednak wiążę się to z dużymi kosztami. Istnieją firmy wykonawcze, które podejmują się zmiany technologii budowy bezpłatnie przy skorzystaniu z ich usług wykonawczych. Zdarza się, że pracownia architektoniczna przygotowuje warianty konkretnego projektu przewidując także inne technologie. Prosimy o sprawdzenie czy istnieje poszukiwana wersja projektu, w zakładce - warianty projektu.
Zwężenie/poszerzenie budynku* to nic innego jak zmiana w projekcie. Istnieje możliwość wprowadzenia takich zmian, we własnym zakresie (podczas adaptacji). *zwężenie/poszerzenie budynku nie powinno stanowić problemu w przypadku domów o dachu dwuspadowym jeśli wiąże się to z wydłużeniem/skróceniem kalenicy dachu.
Poznaj praktyczne porady ekspertów, które ułatwią Ci każdy etap budowy i od wyboru wymarzonego domu po jego wykończenie. Zyskaj pewność, że podejmujesz najlepsze decyzje dzięki sprawdzonym wskazówkom od specjalistów z planz.pl
Wycena szacunkowa, w kwotach netto, nie zawiera instalacji.
bezpłatnie (0zł)
przelew zwykły / PayNow
przy odbiorze
3-5 dni roboczych (jeśli projekt nie wymaga aktualizacji)
Wybierz wygodny dla Ciebie czas kontaktu z naszym Doradcą Technicznym.