Tymek AP garaż



1. Wiatrołap | 3,86 m² |
2. Hol + schody | 6,03 m² |
3. Kuchnia | 8,07 m² |
4. Spiżarnia | 1,81 m² |
5. Pokój dzienny, jadalnia | 30,63 m² |
6. Korytarz | 12,27 m² |
7. Sypialnia | 16,13 m² |
8. łazienka | 3,52 m² |
9. Kotłownia | 12,80 m² |
10. Garaż | 21,33 m² |
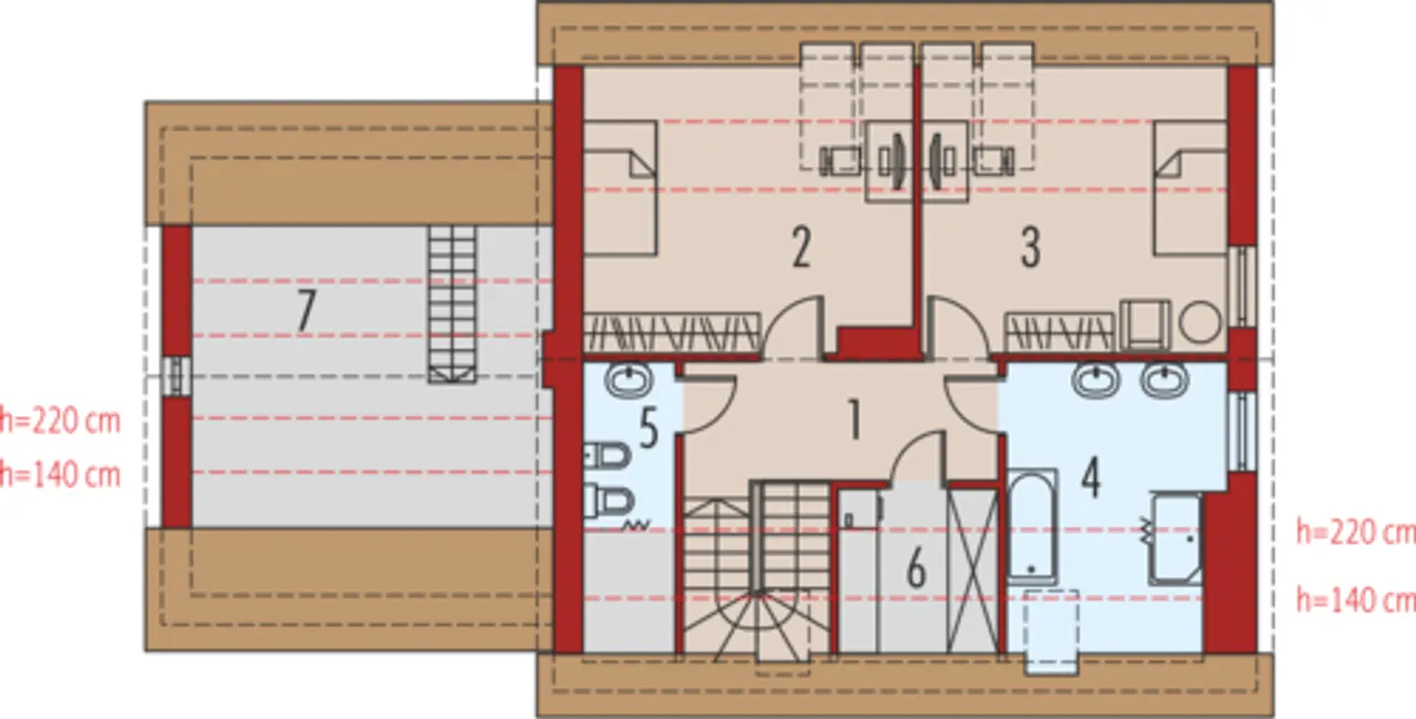
1. Korytarz | 8,57 m² |
2. Sypialnia | 13,66 m² |
3. Sypialnia | 14,08 m² |
4. łazienka | 9,64 m² |
5. Toaleta | 4,13 m² |
6. Pom. gospodarcze | 2,56 m² |
7. Strych | 8,85 m² |
Wypełnij formularz i otrzymaj rysunki w pdf z dokładnymi wymiarami budynku i pomieszczeń (długość, szerokość, wysokość) dla projektu Ariel G1 Energo
Pow. użytkowa 134.3 m² |
Ilość pokoi 3 |
Powierzchnia zabudowy 150.98 m² |
Kondygnacje parterowy+poddasze |
Garaż 1 stanowisko |
Technologia murowany |
Szerokość działki 24.4 m |
Obiekt dom |
Typ domu jednorodzinny całoroczny |
Szerokość budynku 16.4 m |
Taras z tarasem |
Kąt nachylenia dachu 38 ° |
Długość budynku 9.9 m |
Piwnica bez podpiwniczenia |
Strop gęstożebrowy |
Kubatura 557.59 m³ |
Rodzaj garażu przyklejony |
Kalenica równoległa do drogi |
Powierzchnia dachu 204 m² |
Rodzaj dachu dwuspadowy |
Długość działki 23.2 m |
Ogrzewanie gaz, paliwo stałe |
Liczba łazieniek 2 |
Funkcje dodatkowe ze strychem |
Wysokość budynku 8.35 m |
Przechowywanie w kuchni spiżarnia |
Kominek kominek w projekcie |
Styl budynku nowoczesny |
Kotłownia duża kotłownia |
Koszty budowy 300-350 tys., tylko z kosztorysem |
Pow. użytkowa 134.3 m² |
Powierzchnia zabudowy 150.98 m² |
Garaż 1 stanowisko |
Szerokość działki 24.4 m |
Typ domu jednorodzinny całoroczny |
Taras z tarasem |
Długość budynku 9.9 m |
Strop gęstożebrowy |
Rodzaj garażu przyklejony |
Powierzchnia dachu 204 m² |
Długość działki 23.2 m |
Liczba łazieniek 2 |
Wysokość budynku 8.35 m |
Kominek kominek w projekcie |
Kotłownia duża kotłownia |
Ilość pokoi 3 |
Kondygnacje parterowy+poddasze |
Technologia murowany |
Obiekt dom |
Szerokość budynku 16.4 m |
Kąt nachylenia dachu 38 ° |
Piwnica bez podpiwniczenia |
Kubatura 557.59 m³ |
Kalenica równoległa do drogi |
Rodzaj dachu dwuspadowy |
Ogrzewanie gaz, paliwo stałe |
Funkcje dodatkowe ze strychem |
Przechowywanie w kuchni spiżarnia |
Styl budynku nowoczesny |
Koszty budowy 300-350 tys., tylko z kosztorysem |
Kupując projekt w technologii murowanej powinieneś budować dom murowany. Zupełna zmiana technologii na szkieletową wymaga przeprojektowania całego budynku ( zmieniają się obciążenia, fundamenty, konstrukcja dachu). Wydamy zgodę na takie przeprojektowanie jednak wiążę się to z dużymi kosztami. Istnieją firmy wykonawcze, które podejmują się zmiany technologii budowy bezpłatnie przy skorzystaniu z ich usług wykonawczych. Zdarza się, że pracownia architektoniczna przygotowuje warianty konkretnego projektu przewidując także inne technologie. Prosimy o sprawdzenie czy istnieje poszukiwana wersja projektu, w zakładce - warianty projektu.
Zwężenie/poszerzenie budynku* to nic innego jak zmiana w projekcie. Istnieje możliwość wprowadzenia takich zmian, we własnym zakresie (podczas adaptacji). *zwężenie/poszerzenie budynku nie powinno stanowić problemu w przypadku domów o dachu dwuspadowym jeśli wiąże się to z wydłużeniem/skróceniem kalenicy dachu.
Poznaj praktyczne porady ekspertów, które ułatwią Ci każdy etap budowy i od wyboru wymarzonego domu po jego wykończenie. Zyskaj pewność, że podejmujesz najlepsze decyzje dzięki sprawdzonym wskazówkom od specjalistów z planz.pl
Wycena szacunkowa, w kwotach netto, nie zawiera instalacji.
bezpłatnie (0zł)
przelew zwykły / PayNow
przy odbiorze
3-5 dni roboczych (jeśli projekt nie wymaga aktualizacji)
Wybierz wygodny dla Ciebie czas kontaktu z naszym Doradcą Technicznym.