Aria II bez garażu bliźniak B-BL1



Wypełnij formularz i otrzymaj rysunki w pdf z dokładnymi wymiarami budynku i pomieszczeń (długość, szerokość, wysokość) dla projektu Aria II bez garażu szeregówka B-SZ
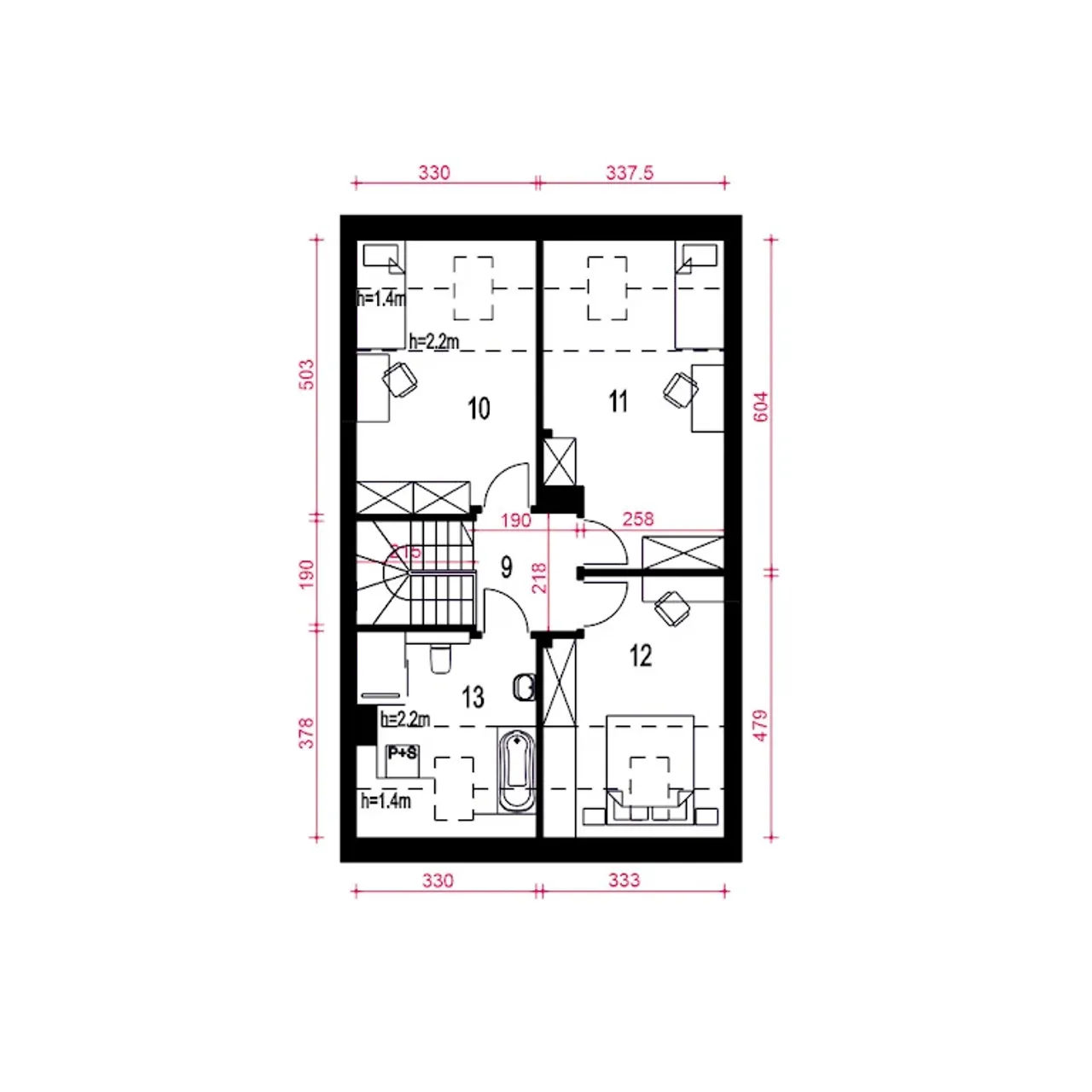
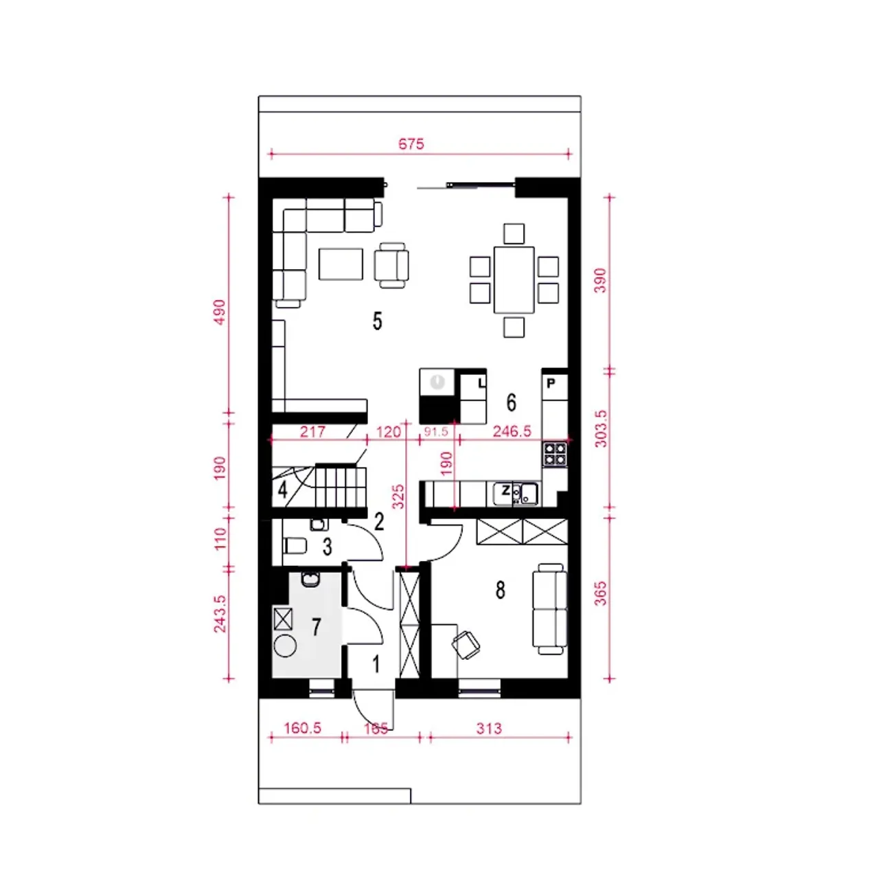
Pow. użytkowa 112.7 m² |
Ilość pokoi 5 |
Powierzchnia zabudowy 86.5 m² |
Kondygnacje parterowy+poddasze |
Garaż bez garażu |
Technologia murowany |
Szerokość działki 7.5 m |
Obiekt dom |
Typ domu szeregowy |
Kalenica równoległa do drogi |
Liczba łazieniek 1 |
Kąt nachylenia dachu 35 ° |
Szerokość budynku 7.5 m |
Rodzaj dachu dwuspadowy |
Kominek kominek w projekcie |
Długość budynku 12 m |
Piwnica bez podpiwniczenia |
Powierzchnia dachu 115.5 m² |
Wysokość budynku 8.6 m |
Długość działki 20 m |
Styl budynku nowoczesny |
Koszty budowy 450-500 tys., tylko z kosztorysem |
Pow. użytkowa 112.7 m² |
Powierzchnia zabudowy 86.5 m² |
Garaż bez garażu |
Szerokość działki 7.5 m |
Typ domu szeregowy |
Liczba łazieniek 1 |
Szerokość budynku 7.5 m |
Kominek kominek w projekcie |
Piwnica bez podpiwniczenia |
Wysokość budynku 8.6 m |
Styl budynku nowoczesny |
Ilość pokoi 5 |
Kondygnacje parterowy+poddasze |
Technologia murowany |
Obiekt dom |
Kalenica równoległa do drogi |
Kąt nachylenia dachu 35 ° |
Rodzaj dachu dwuspadowy |
Długość budynku 12 m |
Powierzchnia dachu 115.5 m² |
Długość działki 20 m |
Koszty budowy 450-500 tys., tylko z kosztorysem |
Kupując projekt w technologii murowanej powinieneś budować dom murowany. Zupełna zmiana technologii na szkieletową wymaga przeprojektowania całego budynku ( zmieniają się obciążenia, fundamenty, konstrukcja dachu). Wydamy zgodę na takie przeprojektowanie jednak wiążę się to z dużymi kosztami. Istnieją firmy wykonawcze, które podejmują się zmiany technologii budowy bezpłatnie przy skorzystaniu z ich usług wykonawczych. Zdarza się, że pracownia architektoniczna przygotowuje warianty konkretnego projektu przewidując także inne technologie. Prosimy o sprawdzenie czy istnieje poszukiwana wersja projektu, w zakładce - warianty projektu.
Zwężenie/poszerzenie budynku* to nic innego jak zmiana w projekcie. Istnieje możliwość wprowadzenia takich zmian, we własnym zakresie (podczas adaptacji). *zwężenie/poszerzenie budynku nie powinno stanowić problemu w przypadku domów o dachu dwuspadowym jeśli wiąże się to z wydłużeniem/skróceniem kalenicy dachu.
Poznaj praktyczne porady ekspertów, które ułatwią Ci każdy etap budowy i od wyboru wymarzonego domu po jego wykończenie. Zyskaj pewność, że podejmujesz najlepsze decyzje dzięki sprawdzonym wskazówkom od specjalistów z planz.pl
Wycena szacunkowa, w kwotach netto, nie zawiera instalacji.
bezpłatnie (0zł)
przelew zwykły / PayNow
przy odbiorze
3-5 dni roboczych (jeśli projekt nie jest koncepcją)
Projekt domu Aria II bez garażu szeregówka B-SZ jawi się jako prawdziwa perła wśród nowoczesnych domów szeregowych. Urokliwa elewacja z subtelnymi elementami architektonicznymi przyciąga wzrok, tworząc przytulne i eleganckie wrażenie. Przestronne wnętrze otwiera szerokie możliwości dla kreatywnej aranżacji, zachęcając do wkładania osobistego charakteru w każdy kąt. Idealna harmonia pomiędzy funkcjonalnością a estetyką czyni go wymarzonym miejscem dla rodziny szukającej spokoju bez rezygnacji z miejskiego stylu życia. Intymność i komfort, jakie oferuje, są odpowiedzią na potrzeby współczesnych domowników, marzących o oazie spokoju w dynamicznym świecie.
Wybierz wygodny dla Ciebie czas kontaktu z naszym Doradcą Technicznym.