APS 164



1. Wiatrołap | 4,60 m² |
2. Hol | 7,90 m² |
3. Pokój | 11,80 m² |
4. Kuchnia | 13,00 m² |
5. Spiżarnia | 3,00 m² |
6. Pokój dzienny z jadalnią | 32,50 m² |
7. Kotłownia | 4,00 m² |
8. łazienka | 3,30 m² |
9. Garaż | 24,00 m² |
10. Schody | 4,20 m² |
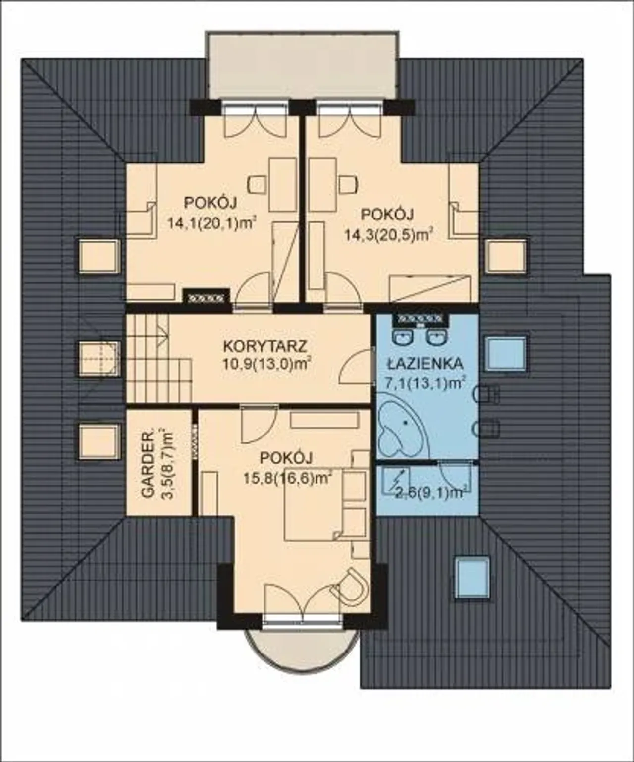
1. Pokój | 15,00 (15,30) m² |
2. Garderoba | 4,50 (10,10) m² |
3. Schody | 4,00 (6,10) m² |
4. Pokój | 14,30 (20,50) m² |
5. Pokój | 14,30 (20,50) m² |
6. łazienka | 6,10 (9,20) m² |
7. Pralnia | 3,30 (8,00) m² |
8. Korytarz | 7,00 m² |
Wypełnij formularz i otrzymaj rysunki w pdf z dokładnymi wymiarami budynku i pomieszczeń (długość, szerokość, wysokość) dla projektu APS 164 new
Ilość pokoi 5 |
Pow. użytkowa 145.5 m² |
Powierzchnia zabudowy 141.8 m² |
Kondygnacje parterowy+poddasze |
Garaż 1 stanowisko |
Technologia murowany |
Szerokość działki 19.64 m |
Obiekt dom |
Typ domu jednorodzinny całoroczny |
Liczba łazieniek 2 |
Kąt nachylenia dachu 38 ° |
Szerokość budynku 11.64 m |
Rodzaj dachu wielospadowy |
Kominek kominek w projekcie |
Długość budynku 14.04 m |
Piwnica bez podpiwniczenia |
Powierzchnia dachu 221.2 m² |
Wysokość budynku 8.71 m |
Kalenica bez znaczenia |
Długość działki 22.04 m |
Styl budynku tradycyjny |
Koszty budowy 350-400 tys., tylko z kosztorysem |
Ilość pokoi 5 |
Powierzchnia zabudowy 141.8 m² |
Garaż 1 stanowisko |
Szerokość działki 19.64 m |
Typ domu jednorodzinny całoroczny |
Kąt nachylenia dachu 38 ° |
Rodzaj dachu wielospadowy |
Długość budynku 14.04 m |
Powierzchnia dachu 221.2 m² |
Kalenica bez znaczenia |
Styl budynku tradycyjny |
Pow. użytkowa 145.5 m² |
Kondygnacje parterowy+poddasze |
Technologia murowany |
Obiekt dom |
Liczba łazieniek 2 |
Szerokość budynku 11.64 m |
Kominek kominek w projekcie |
Piwnica bez podpiwniczenia |
Wysokość budynku 8.71 m |
Długość działki 22.04 m |
Koszty budowy 350-400 tys., tylko z kosztorysem |
Kupując projekt w technologii murowanej powinieneś budować dom murowany. Zupełna zmiana technologii na szkieletową wymaga przeprojektowania całego budynku ( zmieniają się obciążenia, fundamenty, konstrukcja dachu). Wydamy zgodę na takie przeprojektowanie jednak wiążę się to z dużymi kosztami. Istnieją firmy wykonawcze, które podejmują się zmiany technologii budowy bezpłatnie przy skorzystaniu z ich usług wykonawczych. Zdarza się, że pracownia architektoniczna przygotowuje warianty konkretnego projektu przewidując także inne technologie. Prosimy o sprawdzenie czy istnieje poszukiwana wersja projektu, w zakładce - warianty projektu.
Zwężenie/poszerzenie budynku* to nic innego jak zmiana w projekcie. Istnieje możliwość wprowadzenia takich zmian, we własnym zakresie (podczas adaptacji). *zwężenie/poszerzenie budynku nie powinno stanowić problemu w przypadku domów o dachu dwuspadowym jeśli wiąże się to z wydłużeniem/skróceniem kalenicy dachu.
Poznaj praktyczne porady ekspertów, które ułatwią Ci każdy etap budowy i od wyboru wymarzonego domu po jego wykończenie. Zyskaj pewność, że podejmujesz najlepsze decyzje dzięki sprawdzonym wskazówkom od specjalistów z planz.pl
Wycena szacunkowa, w kwotach netto, nie zawiera instalacji.
bezpłatnie (0zł)
przelew zwykły / PayNow
przy odbiorze
3-5 dni roboczych
Wybierz wygodny dla Ciebie czas kontaktu z naszym Doradcą Technicznym.