Jaworowo 17 kw



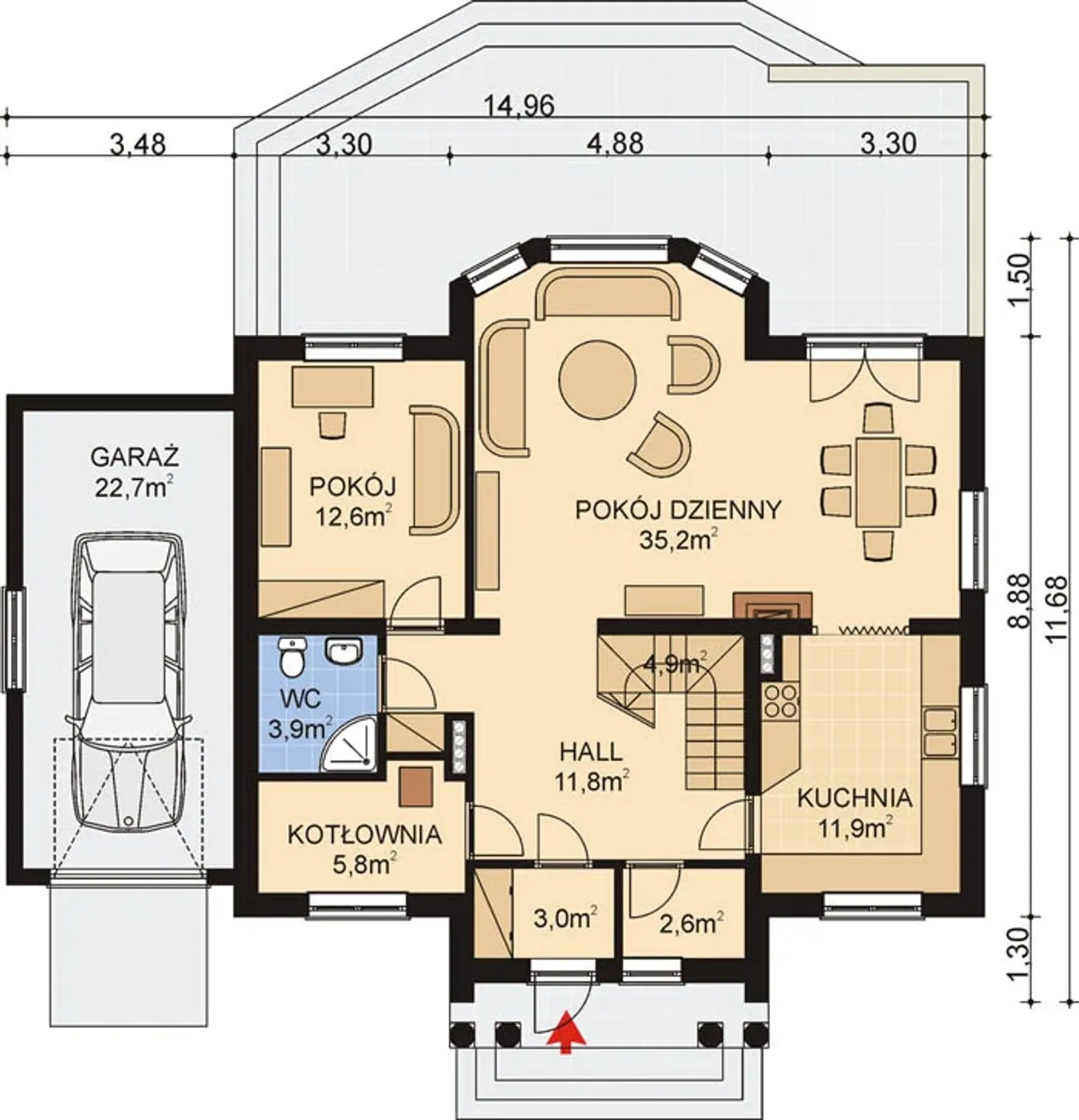
1. Wiatrołap | 3,00 m² |
2. Hall | 11,80 m² |
3. Schody | 4,90 m² |
4. Garderoba | 2,60 m² |
5. Kuchnia | 11,90 m² |
6. Pokój dzienny | 35,20 m² |
7. Pokój | 12,60 m² |
8. łazienka | 3,90 m² |
9. Kotłownia | 5,80 m² |
10. Garaż | 22,70 m² |
1. Hall | 14,90 m² |
2. Pokój | 11,10 m² |
3. Pokój | 15,20 (18,10) m² |
4. Garderoba | 4,30 (7,10) m² |
5. Pokój | 16,50 m² |
6. Pokój | 9,80 (12,60) m² |
7. łazienka | 7,80 (10,50) m² |
Wypełnij formularz i otrzymaj rysunki w pdf z dokładnymi wymiarami budynku i pomieszczeń (długość, szerokość, wysokość) dla projektu APS 120
Pow. użytkowa 165.5 m² |
Ilość pokoi 6 |
Powierzchnia zabudowy 144.1 m² |
Kondygnacje parterowy+poddasze |
Garaż 1 stanowisko |
Technologia murowany |
Szerokość działki 23 m |
Obiekt dom |
Typ domu jednorodzinny całoroczny |
Liczba łazieniek 2 |
Kąt nachylenia dachu 40 ° |
Szerokość budynku 14.96 m |
Rodzaj dachu dwuspadowy |
Kominek kominek w projekcie |
Długość budynku 11.68 m |
Piwnica bez podpiwniczenia |
Kubatura 806.8 m³ |
Powierzchnia dachu 256.9 m² |
Kalenica równoległa do drogi |
Długość działki 19.7 m |
Styl budynku tradycyjny |
Wysokość budynku 8.31 m |
Koszty budowy 400-450 tys., tylko z kosztorysem |
Pow. użytkowa 165.5 m² |
Powierzchnia zabudowy 144.1 m² |
Garaż 1 stanowisko |
Szerokość działki 23 m |
Typ domu jednorodzinny całoroczny |
Kąt nachylenia dachu 40 ° |
Rodzaj dachu dwuspadowy |
Długość budynku 11.68 m |
Kubatura 806.8 m³ |
Kalenica równoległa do drogi |
Styl budynku tradycyjny |
Koszty budowy 400-450 tys., tylko z kosztorysem |
Ilość pokoi 6 |
Kondygnacje parterowy+poddasze |
Technologia murowany |
Obiekt dom |
Liczba łazieniek 2 |
Szerokość budynku 14.96 m |
Kominek kominek w projekcie |
Piwnica bez podpiwniczenia |
Powierzchnia dachu 256.9 m² |
Długość działki 19.7 m |
Wysokość budynku 8.31 m |
Kupując projekt w technologii murowanej powinieneś budować dom murowany. Zupełna zmiana technologii na szkieletową wymaga przeprojektowania całego budynku ( zmieniają się obciążenia, fundamenty, konstrukcja dachu). Wydamy zgodę na takie przeprojektowanie jednak wiążę się to z dużymi kosztami. Istnieją firmy wykonawcze, które podejmują się zmiany technologii budowy bezpłatnie przy skorzystaniu z ich usług wykonawczych. Zdarza się, że pracownia architektoniczna przygotowuje warianty konkretnego projektu przewidując także inne technologie. Prosimy o sprawdzenie czy istnieje poszukiwana wersja projektu, w zakładce - warianty projektu.
Zwężenie/poszerzenie budynku* to nic innego jak zmiana w projekcie. Istnieje możliwość wprowadzenia takich zmian, we własnym zakresie (podczas adaptacji). *zwężenie/poszerzenie budynku nie powinno stanowić problemu w przypadku domów o dachu dwuspadowym jeśli wiąże się to z wydłużeniem/skróceniem kalenicy dachu.
Poznaj praktyczne porady ekspertów, które ułatwią Ci każdy etap budowy i od wyboru wymarzonego domu po jego wykończenie. Zyskaj pewność, że podejmujesz najlepsze decyzje dzięki sprawdzonym wskazówkom od specjalistów z planz.pl
Wycena szacunkowa, w kwotach netto, nie zawiera instalacji.
bezpłatnie (0zł)
przelew zwykły / PayNow
przy odbiorze
3-5 dni roboczych
Wybierz wygodny dla Ciebie czas kontaktu z naszym Doradcą Technicznym.