APS 107 dwulokalowy



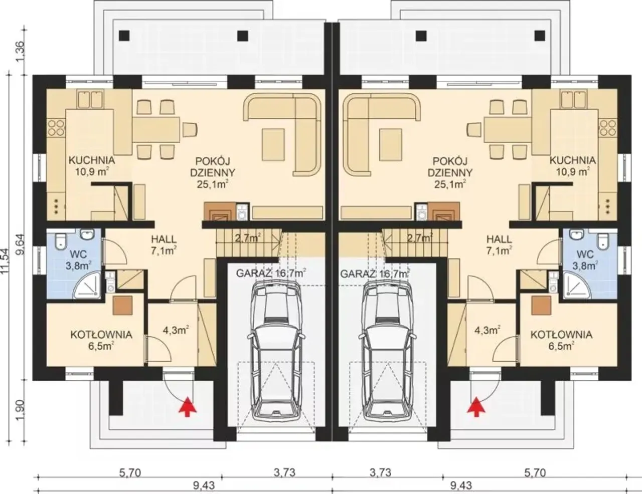
1. Wiatrołap | 3,40 m² |
2. Hol | 10,40 m² |
3. Kuchnia | 12,30 m² |
4. Pokój dzienny z jadalnią | 24,00 m² |
5. łazienka | 4,10 m² |
6. Kotłownia | 6,30 m² |
7. Garaż | 17,20 m² |
1. Pokój | 15,60 (17,70) m² |
2. Pokój | 16,40 (18,10) m² |
3. Pokój | 13,70 (15,20) m² |
4. Garderoba | 2,30 (3,80) m² |
5. łazienka | 7,10 (9,10) m² |
6. Korytarz | 11,70 m² |
Wypełnij formularz i otrzymaj rysunki w pdf z dokładnymi wymiarami budynku i pomieszczeń (długość, szerokość, wysokość) dla projektu APS 107
Ilość pokoi 4 |
Pow. użytkowa 120.5 m² |
Powierzchnia zabudowy 102.2 m² |
Kondygnacje parterowy+poddasze |
Garaż 1 stanowisko |
Technologia murowany |
Szerokość działki 13.43 m |
Obiekt dom |
Typ domu bliźniak i dwurodzinny |
Długość budynku 11.54 m |
Piwnica bez podpiwniczenia |
Kubatura 630 m³ |
Powierzchnia dachu 162.1 m² |
Kalenica równoległa do drogi |
Długość działki 19.54 m |
Styl budynku tradycyjny |
Wysokość budynku 8.39 m |
Liczba łazieniek 2 |
Kąt nachylenia dachu 37 ° |
Szerokość budynku 9.43 m |
Rodzaj dachu dwuspadowy |
Kominek kominek w projekcie |
Koszty budowy 300-350 tys., tylko z kosztorysem |
Ilość pokoi 4 |
Powierzchnia zabudowy 102.2 m² |
Garaż 1 stanowisko |
Szerokość działki 13.43 m |
Typ domu bliźniak i dwurodzinny |
Piwnica bez podpiwniczenia |
Powierzchnia dachu 162.1 m² |
Długość działki 19.54 m |
Wysokość budynku 8.39 m |
Kąt nachylenia dachu 37 ° |
Rodzaj dachu dwuspadowy |
Koszty budowy 300-350 tys., tylko z kosztorysem |
Pow. użytkowa 120.5 m² |
Kondygnacje parterowy+poddasze |
Technologia murowany |
Obiekt dom |
Długość budynku 11.54 m |
Kubatura 630 m³ |
Kalenica równoległa do drogi |
Styl budynku tradycyjny |
Liczba łazieniek 2 |
Szerokość budynku 9.43 m |
Kominek kominek w projekcie |
Kupując projekt w technologii murowanej powinieneś budować dom murowany. Zupełna zmiana technologii na szkieletową wymaga przeprojektowania całego budynku ( zmieniają się obciążenia, fundamenty, konstrukcja dachu). Wydamy zgodę na takie przeprojektowanie jednak wiążę się to z dużymi kosztami. Istnieją firmy wykonawcze, które podejmują się zmiany technologii budowy bezpłatnie przy skorzystaniu z ich usług wykonawczych. Zdarza się, że pracownia architektoniczna przygotowuje warianty konkretnego projektu przewidując także inne technologie. Prosimy o sprawdzenie czy istnieje poszukiwana wersja projektu, w zakładce - warianty projektu.
Zwężenie/poszerzenie budynku* to nic innego jak zmiana w projekcie. Istnieje możliwość wprowadzenia takich zmian, we własnym zakresie (podczas adaptacji). *zwężenie/poszerzenie budynku nie powinno stanowić problemu w przypadku domów o dachu dwuspadowym jeśli wiąże się to z wydłużeniem/skróceniem kalenicy dachu.
Poznaj praktyczne porady ekspertów, które ułatwią Ci każdy etap budowy i od wyboru wymarzonego domu po jego wykończenie. Zyskaj pewność, że podejmujesz najlepsze decyzje dzięki sprawdzonym wskazówkom od specjalistów z planz.pl
Wycena szacunkowa, w kwotach netto, nie zawiera instalacji.
bezpłatnie (0zł)
przelew zwykły / PayNow
przy odbiorze
3-5 dni roboczych
Wybierz wygodny dla Ciebie czas kontaktu z naszym Doradcą Technicznym.