Szeherezada



1. Wiatrołap | 3,40 m² |
2. Hall | 9,90 m² |
3. Schody | 4,70 m² |
4. łazienka | 5,30 m² |
5. Pokój | 12,00 m² |
6. Kuchnia | 11,90 m² |
7. Garderoba | 2,40 m² |
8. Pokój dzienny | 26,50 m² |
9. Kotłownia | 4,50 m² |
10. Garaż | 22,10 m² |
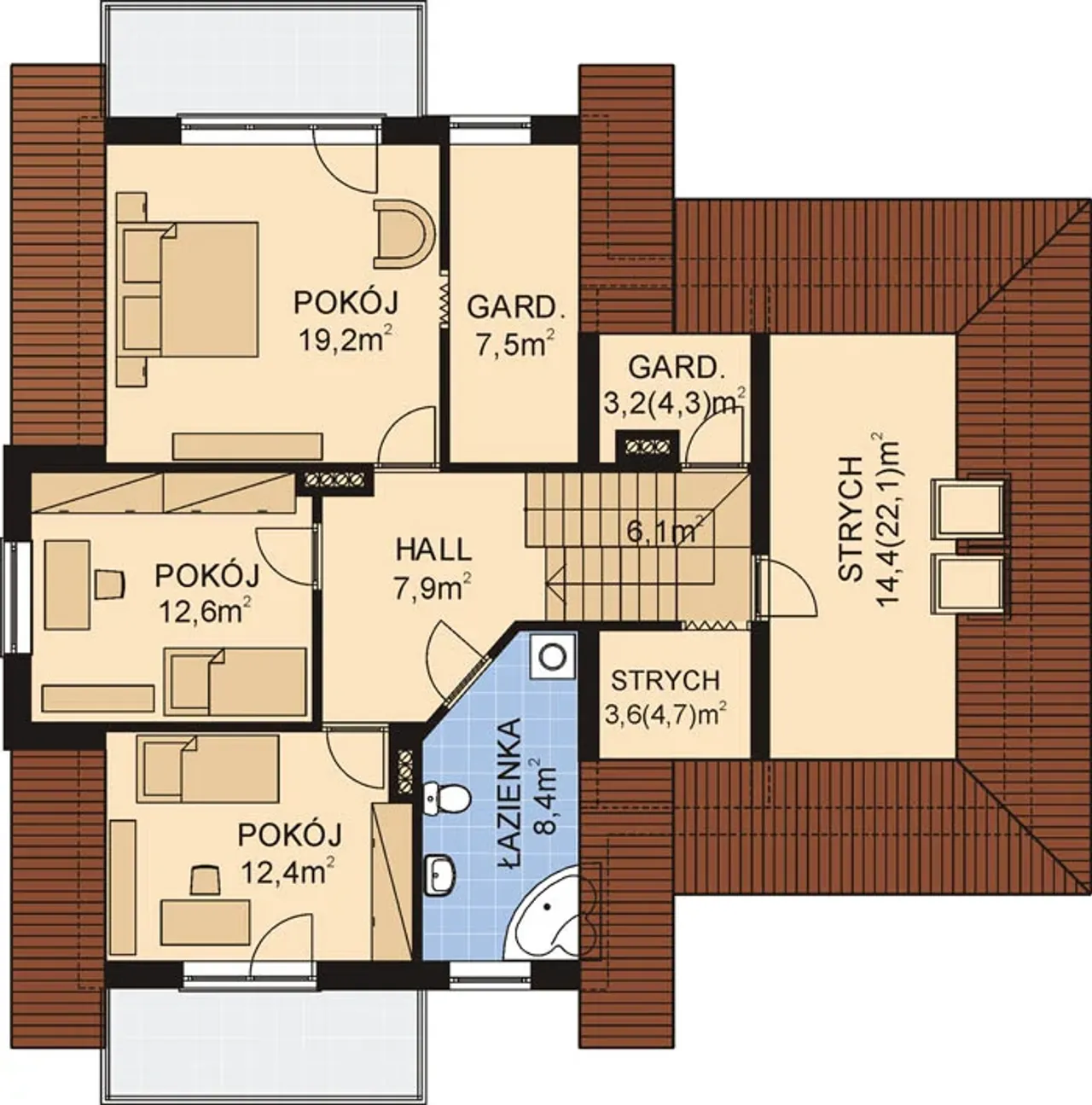
1. Schody | 6,10 m² |
2. Hall | 7,90 m² |
3. łazienka | 8,40 m² |
4. Pokój | 12,40 m² |
5. Pokój | 12,60 m² |
6. Pokój | 19,20 m² |
7. Garderoba | 7,50 m² |
8. Garderoba | 3,20 (4,30) m² |
9. Strych | 14,40 (22,10) m² |
10. Strych | 3,60 (4,70) m² |
Wypełnij formularz i otrzymaj rysunki w pdf z dokładnymi wymiarami budynku i pomieszczeń (długość, szerokość, wysokość) dla projektu APS 080
Ilość pokoi 5 |
Pow. użytkowa 150.2 m² |
Powierzchnia zabudowy 164.8 m² |
Kondygnacje parterowy+poddasze |
Garaż 1 stanowisko |
Technologia murowany |
Szerokość działki 20.8 m |
Obiekt dom |
Typ domu jednorodzinny całoroczny |
Kubatura 830 m³ |
Powierzchnia dachu 220.6 m² |
Kalenica prostopadła do drogi |
Długość działki 20 m |
Styl budynku nowoczesny |
Wysokość budynku 8.11 m |
Liczba łazieniek 2 |
Kominek kominek w projekcie |
Kąt nachylenia dachu 35 ° |
Szerokość budynku 13.78 m |
Rodzaj dachu wielospadowy |
Taras z tarasem |
Długość budynku 11.68 m |
Piwnica bez podpiwniczenia |
Koszty budowy 400-450 tys., tylko z kosztorysem |
Ilość pokoi 5 |
Powierzchnia zabudowy 164.8 m² |
Garaż 1 stanowisko |
Szerokość działki 20.8 m |
Typ domu jednorodzinny całoroczny |
Powierzchnia dachu 220.6 m² |
Długość działki 20 m |
Wysokość budynku 8.11 m |
Kominek kominek w projekcie |
Szerokość budynku 13.78 m |
Taras z tarasem |
Piwnica bez podpiwniczenia |
Pow. użytkowa 150.2 m² |
Kondygnacje parterowy+poddasze |
Technologia murowany |
Obiekt dom |
Kubatura 830 m³ |
Kalenica prostopadła do drogi |
Styl budynku nowoczesny |
Liczba łazieniek 2 |
Kąt nachylenia dachu 35 ° |
Rodzaj dachu wielospadowy |
Długość budynku 11.68 m |
Koszty budowy 400-450 tys., tylko z kosztorysem |
Kupując projekt w technologii murowanej powinieneś budować dom murowany. Zupełna zmiana technologii na szkieletową wymaga przeprojektowania całego budynku ( zmieniają się obciążenia, fundamenty, konstrukcja dachu). Wydamy zgodę na takie przeprojektowanie jednak wiążę się to z dużymi kosztami. Istnieją firmy wykonawcze, które podejmują się zmiany technologii budowy bezpłatnie przy skorzystaniu z ich usług wykonawczych. Zdarza się, że pracownia architektoniczna przygotowuje warianty konkretnego projektu przewidując także inne technologie. Prosimy o sprawdzenie czy istnieje poszukiwana wersja projektu, w zakładce - warianty projektu.
Zwężenie/poszerzenie budynku* to nic innego jak zmiana w projekcie. Istnieje możliwość wprowadzenia takich zmian, we własnym zakresie (podczas adaptacji). *zwężenie/poszerzenie budynku nie powinno stanowić problemu w przypadku domów o dachu dwuspadowym jeśli wiąże się to z wydłużeniem/skróceniem kalenicy dachu.
Poznaj praktyczne porady ekspertów, które ułatwią Ci każdy etap budowy i od wyboru wymarzonego domu po jego wykończenie. Zyskaj pewność, że podejmujesz najlepsze decyzje dzięki sprawdzonym wskazówkom od specjalistów z planz.pl
Wycena szacunkowa, w kwotach netto, nie zawiera instalacji.
bezpłatnie (0zł)
przelew zwykły / PayNow
przy odbiorze
3-5 dni roboczych
Wybierz wygodny dla Ciebie czas kontaktu z naszym Doradcą Technicznym.