Szeherezada



1. Garaż | 20,70 m² |
2. Komunikacja | 10,90 m² |
3. Pomieszczenie gospodarcze | 6,40 m² |
4. Pomieszczenie gospodarcze | 13,40 m² |
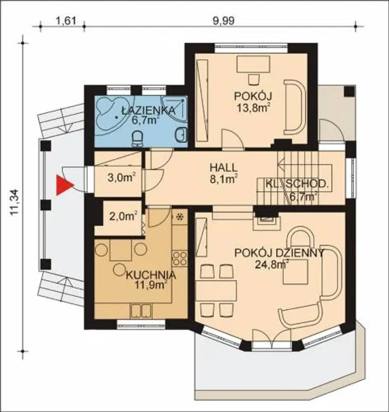
1. Wiatrołap | 3,00 m² |
2. Hall | 8,10 m² |
3. Klatka schodowa | 6,70 m² |
4. Pokój dzienny | 24,80 m² |
5. Kuchnia | 11,90 m² |
6. Spiżarnia | 2,00 m² |
7. łazienka | 6,70 m² |
8. Pokój | 13,80 m² |
1. Klatka schodowa | 6,00 m² |
2. Hall | 7,40 m² |
3. Garderoba | 3,20 (4,70) m² |
4. Pokój | 14,50 (17,50) m² |
5. Pokój | 13,80 m² |
6. łazienka | 7,80 (11,60) m² |
7. Pokój | 14,20 m² |
8. Garderoba | 1,00 (2,20) m² |
Wypełnij formularz i otrzymaj rysunki w pdf z dokładnymi wymiarami budynku i pomieszczeń (długość, szerokość, wysokość) dla projektu APS 061
Pow. użytkowa 144.9 m² |
Ilość pokoi 5 |
Powierzchnia zabudowy 100.4 m² |
Kondygnacje parterowy+poddasze |
Garaż 1 stanowisko |
Technologia murowany |
Szerokość działki 19.6 m |
Obiekt dom |
Typ domu jednorodzinny całoroczny |
Powierzchnia dachu 184.2 m² |
Długość działki 19.35 m |
Wysokość budynku 8.07 m |
Kalenica równoległa do drogi |
Styl budynku nowoczesny |
Liczba łazieniek 2 |
Kominek kominek w projekcie |
Szerokość budynku 9.99 m |
Taras z tarasem |
Kąt nachylenia dachu 37 ° |
Długość budynku 11.34 m |
Rodzaj dachu wielospadowy |
Piwnica bez podpiwniczenia |
Kubatura 827.5 m³ |
Koszty budowy 450-500 tys., tylko z kosztorysem |
Pow. użytkowa 144.9 m² |
Powierzchnia zabudowy 100.4 m² |
Garaż 1 stanowisko |
Szerokość działki 19.6 m |
Typ domu jednorodzinny całoroczny |
Długość działki 19.35 m |
Kalenica równoległa do drogi |
Liczba łazieniek 2 |
Szerokość budynku 9.99 m |
Kąt nachylenia dachu 37 ° |
Rodzaj dachu wielospadowy |
Kubatura 827.5 m³ |
Ilość pokoi 5 |
Kondygnacje parterowy+poddasze |
Technologia murowany |
Obiekt dom |
Powierzchnia dachu 184.2 m² |
Wysokość budynku 8.07 m |
Styl budynku nowoczesny |
Kominek kominek w projekcie |
Taras z tarasem |
Długość budynku 11.34 m |
Piwnica bez podpiwniczenia |
Koszty budowy 450-500 tys., tylko z kosztorysem |
Kupując projekt w technologii murowanej powinieneś budować dom murowany. Zupełna zmiana technologii na szkieletową wymaga przeprojektowania całego budynku ( zmieniają się obciążenia, fundamenty, konstrukcja dachu). Wydamy zgodę na takie przeprojektowanie jednak wiążę się to z dużymi kosztami. Istnieją firmy wykonawcze, które podejmują się zmiany technologii budowy bezpłatnie przy skorzystaniu z ich usług wykonawczych. Zdarza się, że pracownia architektoniczna przygotowuje warianty konkretnego projektu przewidując także inne technologie. Prosimy o sprawdzenie czy istnieje poszukiwana wersja projektu, w zakładce - warianty projektu.
Zwężenie/poszerzenie budynku* to nic innego jak zmiana w projekcie. Istnieje możliwość wprowadzenia takich zmian, we własnym zakresie (podczas adaptacji). *zwężenie/poszerzenie budynku nie powinno stanowić problemu w przypadku domów o dachu dwuspadowym jeśli wiąże się to z wydłużeniem/skróceniem kalenicy dachu.
Poznaj praktyczne porady ekspertów, które ułatwią Ci każdy etap budowy i od wyboru wymarzonego domu po jego wykończenie. Zyskaj pewność, że podejmujesz najlepsze decyzje dzięki sprawdzonym wskazówkom od specjalistów z planz.pl
Wycena szacunkowa, w kwotach netto, nie zawiera instalacji.
bezpłatnie (0zł)
przelew zwykły / PayNow
przy odbiorze
3-5 dni roboczych
Wybierz wygodny dla Ciebie czas kontaktu z naszym Doradcą Technicznym.