Dom Na Medal - Bliźniak



1. Klatka schodowa | 11,00 m² |
2. Pomieszczenie gospodarcze | 30,80 m² |
3. Pomieszczenie gospodarcze | 11,50 m² |
4. Pomieszczenie gospodarcze | 12,40 m² |
5. Kotłownia | 11,90 m² |
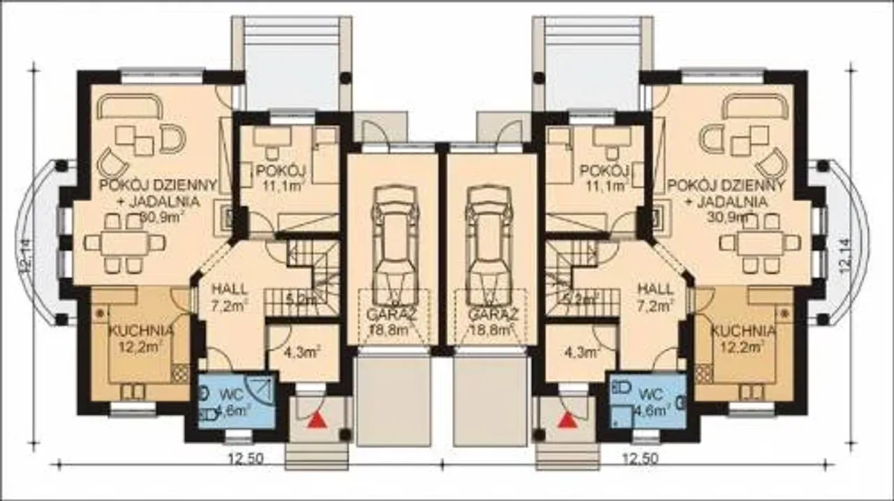
1. Wiatrołap | 4,30 m² |
2. Hall | 7,20 m² |
3. Schody | 5,20 m² |
4. Wc | 4,60 m² |
5. Kuchnia | 12,20 m² |
6. Pokój dzienny + jadalnia | 30,90 m² |
7. Pokój | 11,10 m² |
1. Korytarz | 11,40 m² |
2. Pokój | 13,60 (15,60) m² |
3. Pokój | 14,60 (17,20) m² |
4. Pokój | 21,30 (22,90) m² |
5. łazienka | 8,90 (10,30) m² |
6. Suszarnia | 3,10 (4,90) m² |
7. Strych | 6,00 (18,80) m² |
Wypełnij formularz i otrzymaj rysunki w pdf z dokładnymi wymiarami budynku i pomieszczeń (długość, szerokość, wysokość) dla projektu APS 050
Pow. użytkowa 148.4 m² |
Ilość pokoi 5 |
Powierzchnia zabudowy 128.3 m² |
Kondygnacje parterowy+poddasze |
Garaż 1 stanowisko |
Technologia murowany |
Szerokość działki 16.65 m |
Obiekt dom |
Typ domu bliźniak i dwurodzinny |
Powierzchnia dachu 218.4 m² |
Długość działki 20.15 m |
Wysokość budynku 8.93 m |
Kalenica prostopadła do drogi |
Styl budynku tradycyjny |
Liczba łazieniek 2 |
Szerokość budynku 12.5 m |
Kominek kominek w projekcie |
Kąt nachylenia dachu 41 ° |
Długość budynku 12.14 m |
Rodzaj dachu wielospadowy |
Piwnica z podpiwniczeniem |
Kubatura 908.3 m³ |
Koszty budowy 450-500 tys., tylko z kosztorysem |
Pow. użytkowa 148.4 m² |
Powierzchnia zabudowy 128.3 m² |
Garaż 1 stanowisko |
Szerokość działki 16.65 m |
Typ domu bliźniak i dwurodzinny |
Długość działki 20.15 m |
Kalenica prostopadła do drogi |
Liczba łazieniek 2 |
Kominek kominek w projekcie |
Długość budynku 12.14 m |
Piwnica z podpiwniczeniem |
Koszty budowy 450-500 tys., tylko z kosztorysem |
Ilość pokoi 5 |
Kondygnacje parterowy+poddasze |
Technologia murowany |
Obiekt dom |
Powierzchnia dachu 218.4 m² |
Wysokość budynku 8.93 m |
Styl budynku tradycyjny |
Szerokość budynku 12.5 m |
Kąt nachylenia dachu 41 ° |
Rodzaj dachu wielospadowy |
Kubatura 908.3 m³ |
Kupując projekt w technologii murowanej powinieneś budować dom murowany. Zupełna zmiana technologii na szkieletową wymaga przeprojektowania całego budynku ( zmieniają się obciążenia, fundamenty, konstrukcja dachu). Wydamy zgodę na takie przeprojektowanie jednak wiążę się to z dużymi kosztami. Istnieją firmy wykonawcze, które podejmują się zmiany technologii budowy bezpłatnie przy skorzystaniu z ich usług wykonawczych. Zdarza się, że pracownia architektoniczna przygotowuje warianty konkretnego projektu przewidując także inne technologie. Prosimy o sprawdzenie czy istnieje poszukiwana wersja projektu, w zakładce - warianty projektu.
Zwężenie/poszerzenie budynku* to nic innego jak zmiana w projekcie. Istnieje możliwość wprowadzenia takich zmian, we własnym zakresie (podczas adaptacji). *zwężenie/poszerzenie budynku nie powinno stanowić problemu w przypadku domów o dachu dwuspadowym jeśli wiąże się to z wydłużeniem/skróceniem kalenicy dachu.
Poznaj praktyczne porady ekspertów, które ułatwią Ci każdy etap budowy i od wyboru wymarzonego domu po jego wykończenie. Zyskaj pewność, że podejmujesz najlepsze decyzje dzięki sprawdzonym wskazówkom od specjalistów z planz.pl
Wycena szacunkowa, w kwotach netto, nie zawiera instalacji.
bezpłatnie (0zł)
przelew zwykły / PayNow
przy odbiorze
3-5 dni roboczych
Wybierz wygodny dla Ciebie czas kontaktu z naszym Doradcą Technicznym.