Andrea segment środkowy



Wypełnij formularz i otrzymaj rysunki w pdf z dokładnymi wymiarami budynku i pomieszczeń (długość, szerokość, wysokość) dla projektu Andrea segment prawy
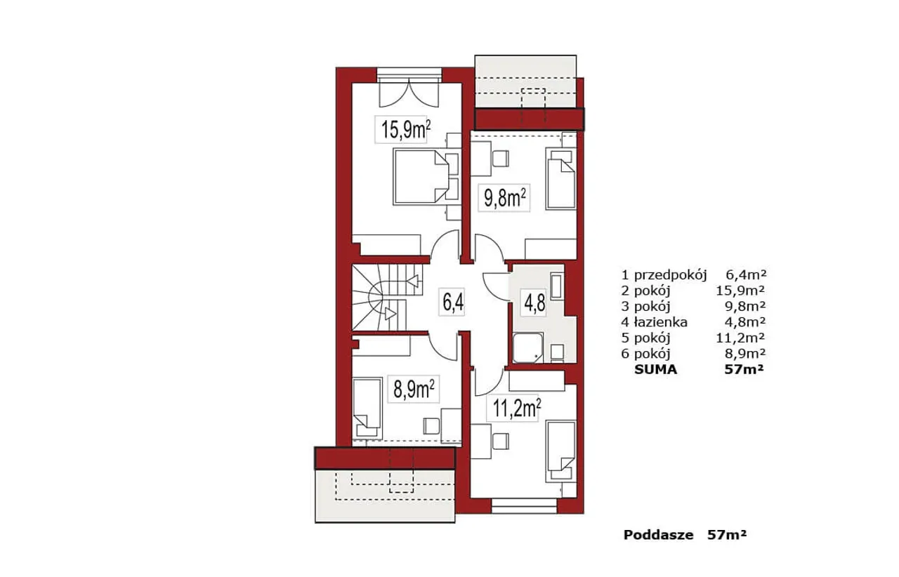
Pow. użytkowa 95.9 m² |
Ilość pokoi 5 |
Powierzchnia zabudowy 90.3 m² |
Kondygnacje parterowy+poddasze |
Garaż 1 stanowisko |
Technologia murowany |
Szerokość działki 10.15 m |
Obiekt dom |
Typ domu szeregowy |
Kubatura 380 m³ |
Wysokość budynku 8.5 m |
Długość działki 20.9 m |
Styl budynku nowoczesny |
Kalenica równoległa do drogi |
Liczba łazieniek 1 |
Kąt nachylenia dachu 35 ° |
Funkcje dodatkowe z lukarnami |
Szerokość budynku 7.15 m |
Rodzaj garażu w bryle |
Kominek kominek w projekcie |
Długość budynku 12.9 m |
Rodzaj dachu dwuspadowy |
Piwnica bez podpiwniczenia |
Koszty budowy tylko z kosztorysem, 200-250 tys. |
Pow. użytkowa 95.9 m² |
Powierzchnia zabudowy 90.3 m² |
Garaż 1 stanowisko |
Szerokość działki 10.15 m |
Typ domu szeregowy |
Wysokość budynku 8.5 m |
Styl budynku nowoczesny |
Liczba łazieniek 1 |
Funkcje dodatkowe z lukarnami |
Rodzaj garażu w bryle |
Długość budynku 12.9 m |
Piwnica bez podpiwniczenia |
Ilość pokoi 5 |
Kondygnacje parterowy+poddasze |
Technologia murowany |
Obiekt dom |
Kubatura 380 m³ |
Długość działki 20.9 m |
Kalenica równoległa do drogi |
Kąt nachylenia dachu 35 ° |
Szerokość budynku 7.15 m |
Kominek kominek w projekcie |
Rodzaj dachu dwuspadowy |
Koszty budowy tylko z kosztorysem, 200-250 tys. |
Kupując projekt w technologii murowanej powinieneś budować dom murowany. Zupełna zmiana technologii na szkieletową wymaga przeprojektowania całego budynku ( zmieniają się obciążenia, fundamenty, konstrukcja dachu). Wydamy zgodę na takie przeprojektowanie jednak wiążę się to z dużymi kosztami. Istnieją firmy wykonawcze, które podejmują się zmiany technologii budowy bezpłatnie przy skorzystaniu z ich usług wykonawczych. Zdarza się, że pracownia architektoniczna przygotowuje warianty konkretnego projektu przewidując także inne technologie. Prosimy o sprawdzenie czy istnieje poszukiwana wersja projektu, w zakładce - warianty projektu.
Zwężenie/poszerzenie budynku* to nic innego jak zmiana w projekcie. Istnieje możliwość wprowadzenia takich zmian, we własnym zakresie (podczas adaptacji). *zwężenie/poszerzenie budynku nie powinno stanowić problemu w przypadku domów o dachu dwuspadowym jeśli wiąże się to z wydłużeniem/skróceniem kalenicy dachu.
Poznaj praktyczne porady ekspertów, które ułatwią Ci każdy etap budowy i od wyboru wymarzonego domu po jego wykończenie. Zyskaj pewność, że podejmujesz najlepsze decyzje dzięki sprawdzonym wskazówkom od specjalistów z planz.pl
Wycena szacunkowa, w kwotach netto, nie zawiera instalacji.
bezpłatnie (0zł)
przelew zwykły / PayNow
przy odbiorze
3-5 dni roboczych (jeśli projekt nie jest koncepcją)
Projekt domu "Andrea Segment Prawy" wyróżnia się nowoczesnym designem, który zapewne przypadnie do gustu miłośnikom prostych, minimalistycznych form. Widać, że przemyślano tu zarówno funkcjonalność pomieszczeń, jak i komfort mieszkańców, dzięki czemu nasza rodzina na pewno czułaby się w nim dobrze. Plus na pewno dla dużej ilości przeszkleń, które wpuszczą do wnętrza dużo naturalnego światła.
Wybierz wygodny dla Ciebie czas kontaktu z naszym Doradcą Technicznym.