Tymek AP garaż



Zawartość projektu
3 egzemplarze projektu archtektoniczno budowlanego + 3 egzemplarze projektu technicznego.
2. Elewacje – pokazujące dokładny wygląd budynku ze wszystkich czterech stron wraz z opisem proponowanych materiałów wykończeniowych.
3. Rzut parteru i pozostałych kondygnacji (w zależności od projektu) – dokładnie zwymiarowane, z podanymi powierzchniami poszczególnych pomieszczeń, rozmieszczeniem ścian, detalami rozwiązań, wyposażeniem, technologią, itp.
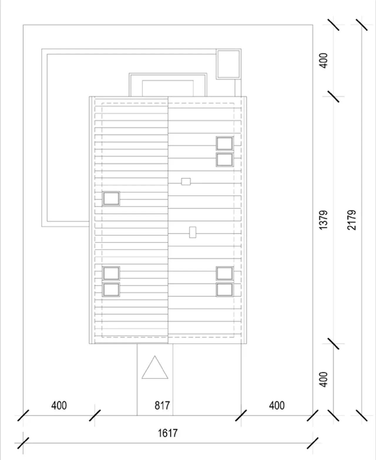
4. Rzut dachu – dokładnie zwymiarowany pokazujący kształt dachu i jego kąt nachylenia ,rozmieszczenie okien połaciowych, lukarn oraz rur spustowych.
5. Przekroje – dokładnie wykonane i zwymiarowane pokazują sposób rozwiązania strategicznych części budynku, warstwy ścian, posadzek i dachu, wieńce, okapy, detale itp .
6. Zestawienia stolarki – wykaz i wymiary okien i drzwi zastosowanych w projekcie.
7. Rzut fundamentów – z pokazaniem niezbędnych detali ław i stóp fundamentowych .
8. Rzut stropów – przedstawiający zwymiarowany układ stropów, rozmieszczenie i rozstawy belek stropowych, detale wieńców itp.
9. Rzut więźby dachowej – z dokładnie określonym układem elementów konstrukcyjnych dachu, ich przekrojami, rozstawem, sposobami łączenia.
10. Rysunki Instalacji wewnętrznych – pokazujące rozmieszczenie i sposób wykonania instalacji wewnątrz domu (wodnej, kanalizacyjnej, gazowej, c.o., elektrycznej).
Zawartość projektu nie dotyczy budynków gospodarczych, garaży oraz obiektów malej architektury.
Wypełnij formularz i otrzymaj rysunki w pdf z dokładnymi wymiarami budynku i pomieszczeń (długość, szerokość, wysokość) dla projektu Alfi
Pow. użytkowa 132.4 m² |
Powierzchnia zabudowy 105.4 m² |
Kondygnacje parterowy+poddasze |
Garaż 1 stanowisko |
Technologia murowany |
Szerokość działki 16.17 m |
Obiekt dom |
Typ domu jednorodzinny całoroczny |
Kąt nachylenia dachu 45 ° |
Rodzaj garażu w bryle |
Szerokość budynku 8.17 m |
Rodzaj dachu dwuspadowy |
Kominek kominek w projekcie |
Długość budynku 13.79 m |
Piwnica bez podpiwniczenia |
Kubatura 560 m³ |
Styl budynku nowoczesny |
Wysokość budynku 8.6 m |
Kalenica prostopadła do drogi |
Długość działki 21.7 m |
Funkcje dodatkowe z dwoma wejściami |
Koszty budowy 300-350 tys., tylko z kosztorysem |
Pow. użytkowa 132.4 m² |
Kondygnacje parterowy+poddasze |
Technologia murowany |
Obiekt dom |
Kąt nachylenia dachu 45 ° |
Szerokość budynku 8.17 m |
Kominek kominek w projekcie |
Piwnica bez podpiwniczenia |
Styl budynku nowoczesny |
Kalenica prostopadła do drogi |
Funkcje dodatkowe z dwoma wejściami |
Powierzchnia zabudowy 105.4 m² |
Garaż 1 stanowisko |
Szerokość działki 16.17 m |
Typ domu jednorodzinny całoroczny |
Rodzaj garażu w bryle |
Rodzaj dachu dwuspadowy |
Długość budynku 13.79 m |
Kubatura 560 m³ |
Wysokość budynku 8.6 m |
Długość działki 21.7 m |
Koszty budowy 300-350 tys., tylko z kosztorysem |
Projekt domu Alfi przedstawia dom parterowy w nowoczesnym stylu z wbudowanym jednostanowiskowym garażem. Elewację domu zdobią ciekawe drewniane elementy. Parter składa się z wiatrołapu, hallu, kotłowni i wc, oraz bardzo przestronnego salonu połączonego z jadalnią i kuchnią. Salon wychodzi na bardzo ładny, duży taras. Na poddaszu domu znajdują się trzy sypialnie, w tym dwie z własną garderobą oraz duża łazienka. Projekt domu Alfi charakteryzuje funkcjonalność i prosta nowoczesna forma.
Kupując projekt w technologii murowanej powinieneś budować dom murowany. Zupełna zmiana technologii na szkieletową wymaga przeprojektowania całego budynku ( zmieniają się obciążenia, fundamenty, konstrukcja dachu). Wydamy zgodę na takie przeprojektowanie jednak wiążę się to z dużymi kosztami. Istnieją firmy wykonawcze, które podejmują się zmiany technologii budowy bezpłatnie przy skorzystaniu z ich usług wykonawczych. Zdarza się, że pracownia architektoniczna przygotowuje warianty konkretnego projektu przewidując także inne technologie. Prosimy o sprawdzenie czy istnieje poszukiwana wersja projektu, w zakładce - warianty projektu.
Zwężenie/poszerzenie budynku* to nic innego jak zmiana w projekcie. Istnieje możliwość wprowadzenia takich zmian, we własnym zakresie (podczas adaptacji). *zwężenie/poszerzenie budynku nie powinno stanowić problemu w przypadku domów o dachu dwuspadowym jeśli wiąże się to z wydłużeniem/skróceniem kalenicy dachu.
Poznaj praktyczne porady ekspertów, które ułatwią Ci każdy etap budowy i od wyboru wymarzonego domu po jego wykończenie. Zyskaj pewność, że podejmujesz najlepsze decyzje dzięki sprawdzonym wskazówkom od specjalistów z planz.pl
Wycena szacunkowa, w kwotach netto, nie zawiera instalacji.
bezpłatnie (0zł)
przelew zwykły / PayNow
przy odbiorze
2-14 dni roboczych (jeśli projekt nie wymaga aktualizacji)
Wybierz wygodny dla Ciebie czas kontaktu z naszym Doradcą Technicznym.