Alcudia B



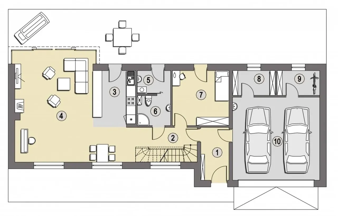
1. Wiatrołap | 6,50 m² |
2. Hol | 7,10 m² |
3. Kuchnia + jadalnia | 16,40 m² |
4. Pokój dzienny | 38,40 m² |
5. Pom. gospodarcze | 3,40 m² |
6. łazienka | 4,40 m² |
7. Pokój | 13,60 m² |
8. Pom. gospodarcze | 5,00 m² |
9. Garaż | 16,60 m² |
1. Hol | 11,80 (13,90) m² |
2. łazienka | 3,00 (5,50) m² |
3. Pokój | 11,50 (16,20) m² |
4. Pokój | 11,50 (16,20) m² |
5. łazienka | 5,90 (8,40) m² |
6. Pokój | 14,20 (18,90) m² |
Wypełnij formularz i otrzymaj rysunki w pdf z dokładnymi wymiarami budynku i pomieszczeń (długość, szerokość, wysokość) dla projektu Alcudia A
Pow. użytkowa 149.28 m² |
Powierzchnia zabudowy 139.83 m² |
Kondygnacje parterowy+poddasze |
Garaż 1 stanowisko |
Technologia murowany |
Szerokość działki 25.34 m |
Obiekt dom |
Typ domu jednorodzinny całoroczny |
Szerokość budynku 18.34 m |
Długość budynku 9.2 m |
Piwnica bez podpiwniczenia |
Styl budynku nowoczesny |
Wysokość budynku 7.89 m |
Kalenica równoległa do drogi |
Długość działki 17.2 m |
Kąt nachylenia dachu 45 ° |
Rodzaj garażu przyklejony |
Rodzaj dachu dwuspadowy |
Koszty budowy 350-400 tys., tylko z kosztorysem |
Pow. użytkowa 149.28 m² |
Kondygnacje parterowy+poddasze |
Technologia murowany |
Obiekt dom |
Szerokość budynku 18.34 m |
Piwnica bez podpiwniczenia |
Wysokość budynku 7.89 m |
Długość działki 17.2 m |
Rodzaj garażu przyklejony |
Koszty budowy 350-400 tys., tylko z kosztorysem |
Powierzchnia zabudowy 139.83 m² |
Garaż 1 stanowisko |
Szerokość działki 25.34 m |
Typ domu jednorodzinny całoroczny |
Długość budynku 9.2 m |
Styl budynku nowoczesny |
Kalenica równoległa do drogi |
Kąt nachylenia dachu 45 ° |
Rodzaj dachu dwuspadowy |
Kupując projekt w technologii murowanej powinieneś budować dom murowany. Zupełna zmiana technologii na szkieletową wymaga przeprojektowania całego budynku ( zmieniają się obciążenia, fundamenty, konstrukcja dachu). Wydamy zgodę na takie przeprojektowanie jednak wiążę się to z dużymi kosztami. Istnieją firmy wykonawcze, które podejmują się zmiany technologii budowy bezpłatnie przy skorzystaniu z ich usług wykonawczych. Zdarza się, że pracownia architektoniczna przygotowuje warianty konkretnego projektu przewidując także inne technologie. Prosimy o sprawdzenie czy istnieje poszukiwana wersja projektu, w zakładce - warianty projektu.
Zwężenie/poszerzenie budynku* to nic innego jak zmiana w projekcie. Istnieje możliwość wprowadzenia takich zmian, we własnym zakresie (podczas adaptacji). *zwężenie/poszerzenie budynku nie powinno stanowić problemu w przypadku domów o dachu dwuspadowym jeśli wiąże się to z wydłużeniem/skróceniem kalenicy dachu.
Poznaj praktyczne porady ekspertów, które ułatwią Ci każdy etap budowy i od wyboru wymarzonego domu po jego wykończenie. Zyskaj pewność, że podejmujesz najlepsze decyzje dzięki sprawdzonym wskazówkom od specjalistów z planz.pl
Wycena szacunkowa, w kwotach netto, nie zawiera instalacji.
bezpłatnie (0zł)
przelew zwykły / PayNow
przy odbiorze
3-5 dni roboczych (jeśli projekt nie wymaga aktualizacji)
Wybierz wygodny dla Ciebie czas kontaktu z naszym Doradcą Technicznym.