Gotowy projekt domu Ajaks 6 B (ID: 35066)
Ajaks 6 B
4499
2026-01-24
Możliwy dłuzszy czas realizacji
Gwarantujemy najniższą cenę
Ajaks 6 B - 120m²
Możliwy dłuzszy czas realizacji
Gwarantujemy najniższą cenę
4499 zł
W cenie projektu:
📣 GRATIS: WIERTARKA UDAROWA
- Tablica + dziennik budowy
- 16 projektów ogrodowych
- Darmowa wysyłka (kurier, paczkomat, pobranie)
- 30 dni na zwrot
- Pozwolenie na zmiany z podpisem i pieczęcią autora
- GRATIS: Wiertarka Udarowa
22 299 20 00 (pn-nd 9.30 do 19.30)
Zawartość projektu
Dokumentacja projektowa zgodnie z nowymi przepisami WT2021 dostarczana jest w formie: 3+3 egzemplarze.
Czyli w dwóch częściach zawierających:
I - projekt architektoniczno-budowlany (opis i rysunki, charakterystyka energetyczna)
II - projekt techniczny, obejmujący:opracowanie konstrukcyjne, projekt wewnętrznych instalacji sanitarnych (wodnej, kanalizacyjnej, gazowej lub/i instalacji na paliwo stałe, c. o.), projekt wewnętrznej instalacji elektrycznej oraz instalację odgromową, zestawienie stali oraz drewna na więźbę dachową.
W części architektonicznej znajdują się:
1. Opis architektoniczno-budowlany
2. Charakterystyka energetyczna
3. Część rysunkowa:
- Schemat usytuowania domu na minimalnej działce
- Aranżacja wnętrza parteru i poddasza.
- Elewacje
- Rzuty kondygnacji
- Rzut dachu
- Dwa przekroje [minimum]
- Zestawienie stolarki okiennej i drzwiowej
2. Charakterystyka energetyczna
3. Część rysunkowa:
- Schemat usytuowania domu na minimalnej działce
- Aranżacja wnętrza parteru i poddasza.
- Elewacje
- Rzuty kondygnacji
- Rzut dachu
- Dwa przekroje [minimum]
- Zestawienie stolarki okiennej i drzwiowej
Projekt techniczny zawiera:
1. Opis konstrukcji
2. Zestawienie stali oraz drewna na więźbę dachową
3. Część rysunkową:
- Część rysunków architektury (rzuty, przekroje, elewacje)
- Rzut fundamentów
- Rzut stropów i nadproży
- Rzut więźby dachowej
- Rysunki elementów żelbetowych
4. Opis instalacji
5. Część rysunkową instalacji w budynku:
- Instalację c.o. - gazową lub/i instalację na paliwo stałe
- Instalację wody ciepłej, zimnej i kanalizacji
- Instalację elektryczną
- Instalację odgromową
- Alternatywą wentylację mechaniczną z rekuperacją
1. Opis konstrukcji
2. Zestawienie stali oraz drewna na więźbę dachową
3. Część rysunkową:
- Część rysunków architektury (rzuty, przekroje, elewacje)
- Rzut fundamentów
- Rzut stropów i nadproży
- Rzut więźby dachowej
- Rysunki elementów żelbetowych
4. Opis instalacji
5. Część rysunkową instalacji w budynku:
- Instalację c.o. - gazową lub/i instalację na paliwo stałe
- Instalację wody ciepłej, zimnej i kanalizacji
- Instalację elektryczną
- Instalację odgromową
- Alternatywą wentylację mechaniczną z rekuperacją
Zawartość projektu nie dotyczy budynków gospodarczych, garaży oraz obiektów malej architektury.
Zawartość projektów bez rozrysowanej na rzucie kotłowni/łazienki/kuchni może nie obejmować schematów c.o. i wodno-kanalizacyjnych. W przypadku obiektów małej architektury - również może nie zawierać schematów instalacji elektrycznej.
Rzuty gotowego projektu domu Ajaks 6 B
| 1. Wiatrołap | 7,45 m² |
| 2. Spiżarnia | 1,70 m² |
| 3. Kuchnia | 10,80 m² |
| 4. Salon z jadalnią | 31,40 m² |
| 5. Gabinet | 9,80 m² |
| 6. Komunikacja | 2,95 m² |
| 7. łazienka | 4,00 m² |
| 8. Kotłownia | 11,10 m² |
| 9. Garaż | 24,80 m² |
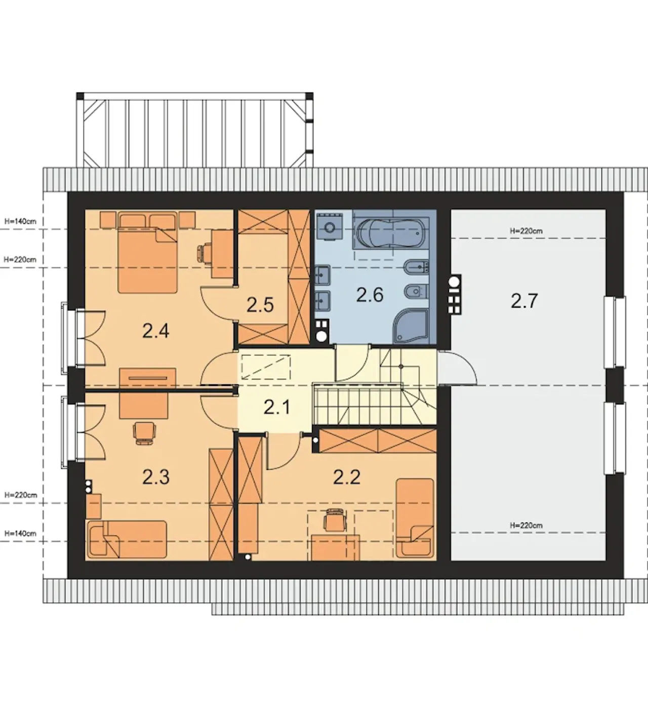
| 1. Komunikacja | 5,30 (5,30) m² |
| 2. Pokój | 11,05 (15,77) m² |
| 3. Pokój | 11,85 (15,42) m² |
| 4. Pokój | 12,85 (16,38) m² |
| 5. Garderoba | 4,30 (6,02) m² |
| 6. łazienka | 6,55 (9,95) m² |
| 7. Strych | 30,59 (33,28) m² |
Zapoznaj się ze szczegółami projektu - zamów bezpłatne rysunki do: Ajaks 6 B
Wypełnij formularz i otrzymaj na podany adres e-mail rysunki w pdf z dokładnymi wymiarami budynku i pomieszczeń (długość, szerokość, wysokość) dla projektu Ajaks 6 B
Parametry Techniczne gotowego projektu domu Ajaks 6 B
| Pow. użytkowa 120 m² |
| Ilość pokoi 5 |
| Powierzchnia zabudowy 142.63 m² |
| Kondygnacje parterowy+poddasze |
| Garaż 1 stanowisko |
| Technologia murowany |
| Szerokość działki 21.84 m |
| Obiekt dom |
| Typ domu jednorodzinny całoroczny |
| Kubatura 899.97 m³ |
| Powierzchnia dachu 212.82 m² |
| Długość działki 19.99 m |
| Wysokość budynku 8.77 m |
| Styl budynku nowoczesny |
| Kalenica równoległa do drogi |
| Liczba łazieniek 2 |
| Szerokość budynku 13.84 m |
| Kominek kominek w projekcie |
| Kąt nachylenia dachu 40 ° |
| Długość budynku 10.54 m |
| Rodzaj dachu dwuspadowy |
| Piwnica bez podpiwniczenia |
| Pow. użytkowa 120 m² |
| Powierzchnia zabudowy 142.63 m² |
| Garaż 1 stanowisko |
| Szerokość działki 21.84 m |
| Typ domu jednorodzinny całoroczny |
| Powierzchnia dachu 212.82 m² |
| Wysokość budynku 8.77 m |
| Kalenica równoległa do drogi |
| Szerokość budynku 13.84 m |
| Kąt nachylenia dachu 40 ° |
| Rodzaj dachu dwuspadowy |
| Ilość pokoi 5 |
| Kondygnacje parterowy+poddasze |
| Technologia murowany |
| Obiekt dom |
| Kubatura 899.97 m³ |
| Długość działki 19.99 m |
| Styl budynku nowoczesny |
| Liczba łazieniek 2 |
| Kominek kominek w projekcie |
| Długość budynku 10.54 m |
| Piwnica bez podpiwniczenia |
Nasze prawdziwe opinie z Google
Opis projektu domu Ajaks 6 B
Technologia wykonania:
- Fundamenty: betonowe.
- Ściany zewnętrzne: dwuwarstwowe z betonu komórkowego 24cm + 20cm styropianu.
- Ściany wewnętrzne: z betonu komórkowego jak i z płyty gipsowo-kartonowej (na ruszcie).
- Strop: żelbetowy-wylewany.
- Więźba dachowa: drewniana.
- Pokrycie dachu: dachówka ceramiczna lub cementowa.
- Wentylacja: grawitacyjna + wentylacja mechaniczna z rekuperacją (do wyboru na etapie adaptacji).
- Ogrzewanie: pompa ciepła z instalacją fotowoltaiczną + biomasa (do wyboru na etapie adaptacji projektu).
Dodatki do projektu Ajaks 6 B
Dodatki możesz kupić razem z projektem lub dokupić po czasie
[Archiportal] Zestawienie materiałów (0 zł)
Pełny wykaz podstawowych materiałów i prac potrzebnych do realizacji projektu domu. To tzw. ślepy kosztorys, który ułatwia przygotowanie budowy, stanowi podstawę do wyceny kosztów robocizny i materiałów oraz jest nieocenionym wsparciem w rozmowach z wykonawcami.
[Archiportal] kosztorys w wersji papierowej (500 zł)
Kompletny kosztorys inwestorski od „stanu zero” do stanu developerskiego.
[Archiportal] Dodatkowy egzemplarz projektu (450 zł)
W sytuacji, w której jest to niezbędne, inwestor ma możliwość zakupienia dodatkowego egzemplarza projektu.
[Archiportal] Pakiet energo+ (650 zł)
Dostępny tylko dla projektów: Fabian 3, Fabian 2, Fabian, Tracja 6, Tryton Teriva, Tryton 3 WZ, Tryton 3 B, Tryton 3 Teriva, Tryton 3, Tracja 2, Tracja 2 Teriva, Tryton
Pakiet energooszczędny, w skład którego wchodzi: ogrzewanie pompą ciepła, projekt ogrzewania podłogowego, projekt instalacji fotowoltaicznej i charakterystyka energetyczna.
[Archiportal] Wersja elektroniczna projektu (700 zł)
Elektroniczna wersja projektu to wygodne uzupełnienie dokumentacji papierowej. Przydaje się na etapie adaptacji u architekta oraz wtedy, gdy projekt jest już złożony w urzędzie, a potrzebujesz materiałów do współpracy z wykonawcami.
Pliki przesyłane są mailowo po zakupie pełnej wersji papierowej. Ze względu na specyfikę produktu nie ma możliwości zwrotu, dlatego rekomendujemy wcześniejsze konsultacje z architektem adaptującym. Każda wersja posiada indywidualny numer ewidencyjny przypisany do kupującego.
Zawartość wersji elektronicznej:
Opis architektoniczno-budowlany (edytowalny),
Architektura budynku: pliki DWG (rzut działki, rzuty kondygnacji, elewacje, przekroje), pliki PDF (rzuty kondygnacji, elewacje, rzut dachu, przekroje, zestawienia stolarki, warstw i materiałów),
Konstrukcja budynku (PDF): rzut fundamentów, rzut stropu, rzut więźby dachowej.
[Planz] Tablica budowlana (0 zł)
Decydując się na zakup projektu domu w planz.pl, każdy nasz klient otrzyma wyjątkowy bonus, elastyczną i odporną na warunki atmosferyczne tablicę budowlaną o wymiarach 90x70 cm. Ta praktyczna tablica jest niezbędnym elementem na każdym placu budowy. Dzięki swojej elastyczności i odporności, tablica ta stanie się trwałym i widocznym punktem orientacyjnym dla ekipy budowlanej oraz inspektorów. Wybierz planz.pl i ciesz się nie tylko profesjonalnym projektem, ale i dodatkami, które ułatwią realizację Twojej budowy.
[Planz] Dziennik budowy (0 zł)
Przy zakupie projektu domu na planz.pl otrzymasz dziennik budowy gratis – niezbędny dokument urzędowy, który szczegółowo rejestruje przebieg prac budowlanych. Jest on wymagany przez Prawo Budowlane i służy nie tylko do porządkowania procesu budowy, ale również jako dowód w ewentualnych sporach. Dziennik w formacie A4 z ponumerowanymi stronami ułatwia chronologiczne dokonywanie wpisów. Każdy egzemplarz posiada unikatowy numer i jest urzędowo rejestrowany. Nasz dziennik budowy jest do tego atrakcyjny wizualnie, w twardej okładce.
[Planz] Wiertarka udarowa (0 zł)
Wybierając projekt domu na planz.pl, otrzymasz praktyczny prezent. Dla każdego, kto zdecyduje się na zakup projektu o wartości przekraczającej 3000 zł, przygotowaliśmy specjalny bonus: wiertarkę gratis! To doskonałe narzędzie, które z pewnością przyda się podczas prac wykończeniowych lub drobnych napraw w nowym domu.
[Planz] Zgoda na zmiany w projekcie (0 zł)
Do każdego projektu załączamy zgodę na podstawowe zmiany (np. rodzaj i umiejscowienie okien i drzwi, przestawienie ścian działowych, zmiana materiałów wykończeniowych). Rozszerzona zgoda na zmiany jest również bezpłatna, szczegółowy zakres dodatkowych zmian w projekcie prosimy podać na formularzu zamówienia, w polu komentarz. GRATIS!!!
[Planz] Projekty architektury ogrodowej (0 zł)
16 gotowych projektów drewnianej architektury ogrodowej w wersji elektronicznej. Wśród nich:
Altana 3x3m, Zadaszenie 2,34x1,2m (typ 1,typ 2, typ 3), Drewutnia 2,78x1,44 m, Domek ogrodowy 2,78x1,44 m, Garaż Jodła 6,01x3,76 m, Garaż, Sosna 6,01x6,27 m, Ambona myśliwska (typ 1,typ 2), Wiata Grillowa 5x5 m, Wiata Grillowa 6x4 m, Brama (typ 1, typ 2, typ 3), Szoposzklarnia.
Cena: 0zł
[Planz] Charakterystyka energetyczna, tylko dla domów całorocznych (0 zł)
Dotyczy tylko projektów domów całorocznych. Charakterystyka energetyczna w projekcie domu, znana również jako świadectwo charakterystyki energetycznej lub certyfikat energetyczny, to dokument oceniający efektywność energetyczną budynku. Określa ona, ile energii (na ogrzewanie, wentylację, ciepłą wodę użytkową i oświetlenie) będzie potrzebował dany budynek do prawidłowego funkcjonowania w standardowych warunkach użytkowania. Charakterystyka ta jest wyrażana w kWh na metr kwadratowy powierzchni użytkowej budynku na rok (kWh/(m²·rok)).
Opracowanie charakterystyki energetycznej jest wymagane, zarówno dla nowo budowanych domów, jak i przy sprzedaży nieruchomości.
Wysyłka i płatność za projekt Ajaks 6 B
Koszty wysyłki
bezpłatnie (0zł)
Formy płatności
przelew zwykły / PayNow
przy odbiorze
Czas oczekiwania
1-2 dni roboczych (jeśli projekt nie jest koncepcją)
Projekt w kategoriach
Zamów rozmowę
Wybierz wygodny dla Ciebie czas kontaktu z naszym Doradcą Technicznym.
parterowy+poddasze
1 stanowisko
murowany
[Archiportal] kosztorys w wersji papierowej (500 zł)
[Archiportal] Pakiet energo+ (650 zł)
[Planz] Tablica budowlana (0 zł)
[Planz] Wiertarka udarowa (0 zł)
[Planz] Projekty architektury ogrodowej (0 zł)